住宅医の改修事例 №147 「丁寧に暮らす家」築26年 1階部分の改修
芦田 成人(住宅医 / 一級建築士事務所 芦田成人建築設計事務所 / 兵庫県)
概要
築26年の住まいの1階部分を改修した事例です。一期工事は「1階のいつもいる場所」を中心に行い、その成果を受け二期工事「洗面脱衣と浴室」の改修、三期工事は隣地に建物が建ち「外構と植栽」が行われた。
背 景:建売住宅を新築時に購入され、20数年暮らされたご夫婦
ご要望:住まいの暑い寒いを何とかしたい。将来、足腰が衰えても1階で生活が完結するようにしたい。
■■▼ 一期工事:1階床面積の2/3(1階のいつもいる場所)
■■■▼二期工事: 洗面脱衣と浴室
■■■▼▼ 三期工事:外構と植栽
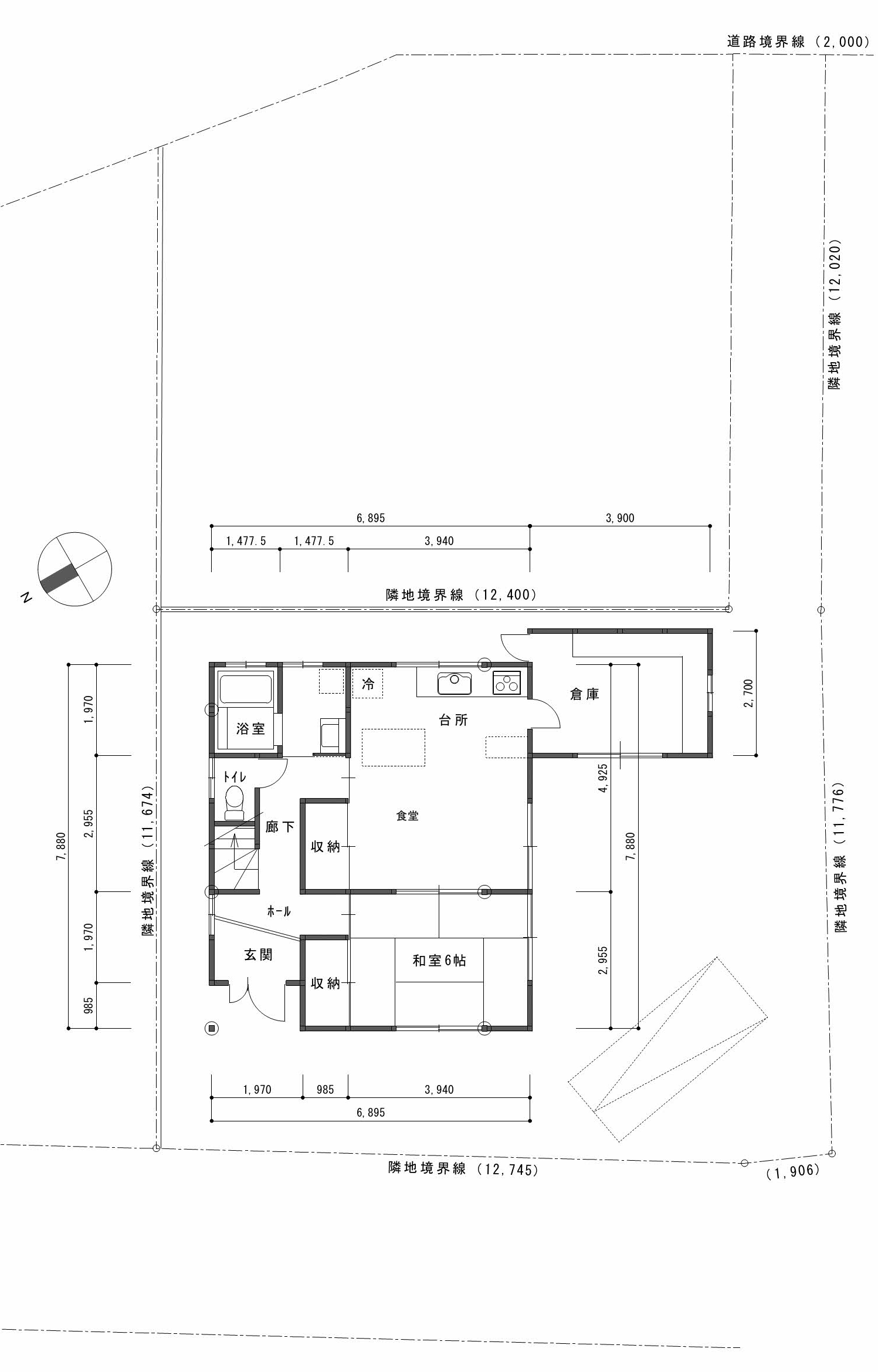
| 準工業地域内の敷地は メイン道路よりも奥まっているため交通量は少なく比較的静かな環境 ![]() 既存 配置図 |
■ 敷地の状況 ![]() 敷地南側:専用通路として接道している部分(普段こちらは使っていない) ■ ![]() 敷地西側:共用通路として普段車が出入りしている部分 |
既存建物調査
【 外部劣化 】
建物詳細調査は外観や設備機器、外部基礎周りを中心に目視にて調査。小庇や破風鼻隠しの塗装や外部コーキング等に一部劣化が見られた。
![]() 小庇の劣化 |
![]() 破風板の劣化 |
![]() コーキングの一部に劣化 |
![]() コーキング劣化 |
【 内部劣化 】
事前調査で確認出来なかった部分は解体工事時に確認した。土台の広範囲に蟻害を発見。土台及び梁材は米松、柱は桧が使用されている。
![]() 土台の広範囲に蟻害 |
![]() 土台の蟻害 |
【 屋根裏 】
小屋裏は断熱材の施工が横架材まで届いていたり、いなかったりする状況。下屋の天井裏には断熱材が施工されていない。
![]() 断熱材施工状況:横架材まで届いている箇所と無い箇所 |
![]() 下屋天井裏に断熱なし |
1階部分の改修 : 一期工事「いつも居る場所」・二期「浴室と洗面」
●一期工事 改修方針
1. 生活対応・・・間仕切壁を取り払い、一つながりの空間とする
2. 温熱対策・・・断熱、気密、気流留めを行う
3. バリアフリー対策・・・トイレ、洗面への通路幅を確保する
4. 耐久性・・・防露対策として床下へ防湿措置を施す
5. 耐震性・・・壁量規定をクリア出来るように筋交いを追加をする
Plan
■
| 改修計画 1階平面図 ■ピンク:一期工事 , ■ブルー:二期 , ■グリーン:三期 ©Ashida Narito |
改修後:敷地・平面クリックでPDFを表示 三期工事は環境(周辺建物や敷地)の変化に対応 |
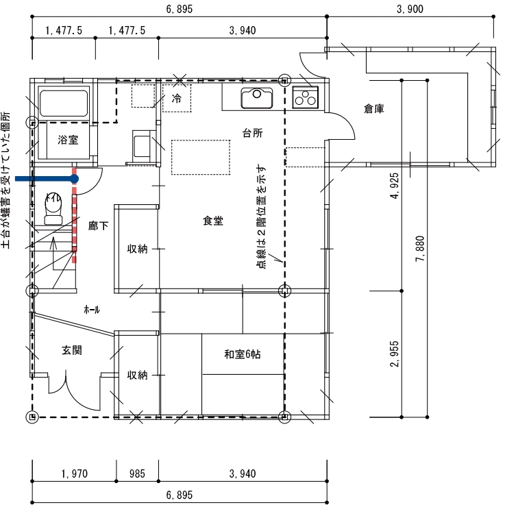
改修前の元和室 ■ ![]() |
改修前 1階平面図![]() |
その後、性能向上改修に満足いただき「二期工事(洗面脱衣、浴室の改修)」を行う
●二期工事 改修方針
・ ご要望:冬は寒すぎて(洗面脱衣、浴室に)長居することが出来ないので改善したい
・ 方 針:一期工事同様に床、壁、天井に断熱施工
・ 収納を確保し、室内に溢れる物が減るようにする
・ 出来る事が限定されるが構造面の補強を行う
一期工事「いつも居る場所」施工写真
耐震性の向上
![]() 居室:筋交いによる構造補強 |
![]() 土台に蟻害があった箇所:トイレ間仕切り壁を受けるだけのため添え土台とした |
断熱・気密性能の向上
温熱環境の向上を目指し断熱、気密、気流留めの丁寧な施工と材料の選択を行う。根太床のため床及び天井面からの気流に留意し乾燥木材による気流留めを外周壁及び間仕切壁に施工した。
![]() 床:断熱材(押出法ポリスチレンフォームⅢb 50㎜敷) |
![]() 床:台所配管貫通部に現場発泡ウレタンにて気密処理 |
![]() 壁:スイッチコンセント周りには気密ボックスを使用(高性能GW 16K 105㎜) |
![]() 壁:台所と洗面界壁部への断熱施工 |
壁断熱材 高性能GW16K 105㎜ 裸品の方が施工性が良いのでいつも裸品を使用(一旦、天井高さに設けた気流留めまでを施工、この後、胴差下まで施工)
![]() 下屋天井断熱(胴差側面に押出法ポリスチレンフォーム留め付け) |
![]() 下屋天井(水平面に高性能GW16K 200㎜敷き) |
| 防湿気密シート施工 | 防湿気密シート施工 |
外装工事
外壁は1階工事範囲を窯業系サイディングを張り替えた上で全体の色を統一する為に2階外壁も含め再塗装を施した。1階のサッシを交換した。
![]() 庇:塗替え |
![]() 鼻隠し:塗替え |
![]() 外壁:1階部分のサイディングを張替え1,2階を塗装 |
![]() 窓:アルミ樹脂複合サッシ + Low-eペアガラスに変更 |
二期工事「洗面脱衣・浴室」
ご要望:冬は寒すぎて(洗面脱衣・浴室に)長居することが出来ないので改善したい
方 針:一期工事同様、床、壁、天井の断熱施工と収納を確保し、室内に溢れる物が減るようにする
耐震補強![]() 下屋水平構面に鋼製火打の設置 |
断熱材施工![]() 浴室壁面断熱施工(トイレ界壁面も断熱) |
断熱材施工![]() 浴室床断熱(押出法ポリスチレンフォームⅢb 50㎜) |
気流止め施工![]() 洗面脱衣と台所界壁の気流止め(一期工事の断熱材が見える) |
維持管理・メンテナンス性の向上![]() 浴室~洗面脱衣(人通口 断熱蓋)(ヘッダー工法による架橋ポリエチレン管) |
浴室床下には 全面防湿シート+コンクリート打ちとし断熱材を敷き詰めた。又洗面と浴室の人通口部分で断熱欠損するため市販の断熱蓋を採用した。配管をヘッダー工法による架橋ポリエチレン管に更新した。一期工事同様に床、壁、天井の断熱補強を適宜行う。壁、天井は外気に面する部分よりも少し部屋内まで断熱補強を伸ばす。
考察(エネルギー)
●Ua値 改修前 1.67 W/㎡K → 改修後 1.14 W/㎡K
2階を改修していないため建物全体の数値だけを見るとあまり改善していないように見える
冷房期日射熱取得率 ηAC 値 4.1% → 改修後3.0%
暖房期日射熱取得率 ηAH値 5.1% → 改修後 3.2%
暖房区画のみを対象にすると
● 区画熱損失係数Q*値 4.0 W/㎡K < 温暖地基準 6.4 W/㎡K
● 一次エネルギー消費量 改修前99.4GJ → 二期工事 改修後 85.4GJ
室温(実測結果)
一期工事終了後、暫く経って断熱の効果を確認するために冬季室温測定を実施させていただきました 。
1階と2階で測定に使用した機器が異なるためグラフ表現に相違があります。1階のグラフは縦軸が左右に分かれ、左側に室温が、右側に湿度が表示されてます。一方、2階のグラフでは縦軸は左側のみに温度、湿度がまとめて表示されているので、それぞれのグラフで青と赤の表示が離れていたり、交錯していたります。いずれも、室温を表現する赤の折れ線の平均室温と最低室温にご注目下さい。
改修工事を行った1階では平均室温が 16.2℃、最低室温が 10.3℃であるのに対し、工事をしていない2階では平均室温が 12.2℃、最低室温が4.5℃でした。こちらのお住まいは、人が起きている時のみ暖房器具を稼働させる部分間けつ暖房方式であるため暖房をオフにすると室温も自然に下がっていきます。冬季は朝、人が起きて暖房をオンにする直前頃が一番室温が下がることになります。その時間帯の室温が今回は工事をしていない2階では 4.5℃ですので、布団から抜け出した途端に何か上に羽織る物がないと、とても過ごすことが出来ない寒さです。一方、工事をした1階では 10.3℃あります。暖房をオンにすればたちまち、室内も暖まるため寒い冬の朝も快適に過ごすことが出来ます。
改修前の暖房は灯油ファンヒーターを使用されていましたので、改修後はエアコンでの冷暖房をご提案しました。「エアコンは風ばかりが強くて一向に快適にならないイメージがある」との事でしたが、改修後は断熱の効果を御感じいただけているとともに、エアコンに対するイメージは一転し年間を通し、エアコンで冷暖房されています。そして内障子の効果について窓はアルミ樹脂複合サッシ(Low-e ペアガラス)に変更しているものの、内障子を開けただけで窓付近の冷たい空気を感じるため、1枚 内障子があるだけで窓付近の環境が変わることも御感じいただいています。
レーダーチャート(改修前後と参考)
改修前 建物性能![]() |
![]() |
改修後 建物性能![]() |
![]() |
2階の工事をしていないため、総合的に飛び抜けて改善した項目が少ないが 温熱性は、183%向上
【参考】1 階部分で評価![]() ■ ※2階を含まない1階部分の性能 |
![]() |
耐震性の評価は工事をした1階と工事をしていない2階を併せた建物全体での評価となります。最も不利となる2階の点数が全体の評価として採用されて66点ですが、参考までに工事をした1階のみで耐震性を評価すると 95点となります。同様に温熱性についても1階のみで評価すると93点となります。1階には工事未施工部分もあるため、それらも施工対象とすれば全ての項目について、もう少し高い点数も望めます。
一期工事
■■
二期工事
三期工事(外構と植栽)
⾧年、空地だった隣地に建ったアパート。住まいの目の前はその駐車場となり、今まで気兼ねなく窓や内障子の開け閉めが出来ていましたが、そうもいかなくなりました。そこでプライバシーを確保すべく目隠し塀を設置することになりました。自敷地内からのメンテナンスは出来たとしても隣地側からのメンテナンスは不可能となるため、塀に使用する素材も限定され、結局ガルバリウム鋼板を採用しています。
隣地側の地盤が 40㎝ほど高いため塀の高さも高くなりましたが、圧迫感を感じることは無く、逆に「以前よりも広くなったように感じる」と言うのが住まい手、工事関係者ともに口にした言葉です。
当初、庭に木は不要とのことでしたが、折角庭を綺麗にするんだし、今後は家での時間も増えてくることを見越し、植樹の提案をしました。木の面倒をみることへの不安もあるとのことでしたので、「最初は小さく始めてみませんか?」と造園業者さんからの後押しもあり、一先ずコンパクトにまとめています。植えた樹種は、ドウダンツツジとヤマボウシです。どちらも5月頃に見頃になる種類です。又、その時期に御伺いしてみようと思っています。
まとめ
ご夫婦が初めて事務所にお見えになった時、私は九州に出張中でした。お住まいから比較的近いこともあり、ふらっと立ち寄られたそうです。
出張から戻り、改めてお会いさせていただいたのが 2019年の春のことです。
そこから数え、三期工事が終了したのが今年 2024年3月末です。途中、間が空いてはいますが、およそ5年にも及び「工事」で携わらせていただいたのは後にも先にも、今回が初めてのことです。(点検等で数年後に御伺いさせていただくことはよくあります。)当初、二期工事までは予定されていたことでしたが、隣地の思わぬ環境の変化で⾧くなった、ご夫婦の理想の住まいづくりが、これにて、ひと段落したことと思います。
工事業者さんも私と同じ「芦田姓」(兄弟でも親戚でもありませんが、この地域は芦田姓が多いのです。)であることから、住まい手さんはいつの間にか我々を「チーム芦田」と名付け、お互いの呼び分けは下の名前で呼ばれるようになりました。例えば、私を呼ぶ場合は「成人(なりと)さん」です。
これだけ、お付き合いが⾧くなると我々も、こちらのお住まいにお伺いするのがすっかり楽しみになりました。
一期工事で玄関に設けたニッチも上手に活用されていて、御伺いする度に変わるディスプレイは奥様のセンスで季節ごとに模様替えされていきます。今年のお正月に御伺いした際には「龍」と書かれたセンスの良いカラフルなデザインの色紙が飾られていました。この色紙は奥様のセンスで自書されたとのこと、チーム芦田揃って「え~、凄いですね!どのようにして書かれたんですか?」と感嘆の声をあげました。
三期工事着手前の訪問では写真のお内裏様とお雛様が上品に我々を迎えてくれました。このニッチのディスプレイを拝見するだけでも「丁寧に暮らす」の一端を垣間見ることが出来ます。
家の居心地が変わったことで、ご家族やご近所さん、友人知人もお住まいに集まる機会が増えたそうです。これからは庭の緑も増え、人ばかりでなく鳥や小さな虫たちも集まって来て、より生活に潤いを与えてくれることでしょう。
LINK
・ 一級建築士事務所 芦田成人建築設計事務所 https://www.ashida-as.com/





























































