住宅医の改修事例 №142 今あるものを活かす建築技術者をめざして~中古住宅の資産価値を高めるリノベ「ゆっくりばこ」
西 恭利(住宅医 / 西紋建匠株式会社 / 大阪府堺市)
泉北ニュータウンでの住み開きの実践「ゆっくりばこ」
築55年 古民家型在来構法中古物件を、耐震補強、ZEH申請を経てよみがえらせ、住まいと、コワーキングスペース等、地域拠点となる住宅にリノベーション。2024年度グッドデザイン賞受賞
建築物のプロセス
令和元年(2019)9月 中古住宅付き土地を購入
■▼
令和元年(2019)11月~ 木造平屋を耐震断熱リノベーション着工
■▼
令和2年(2020)3月竣工
■▼
令和2年(2020)4月~ 『ゆっくりばこ』地域拠点として使用開始。
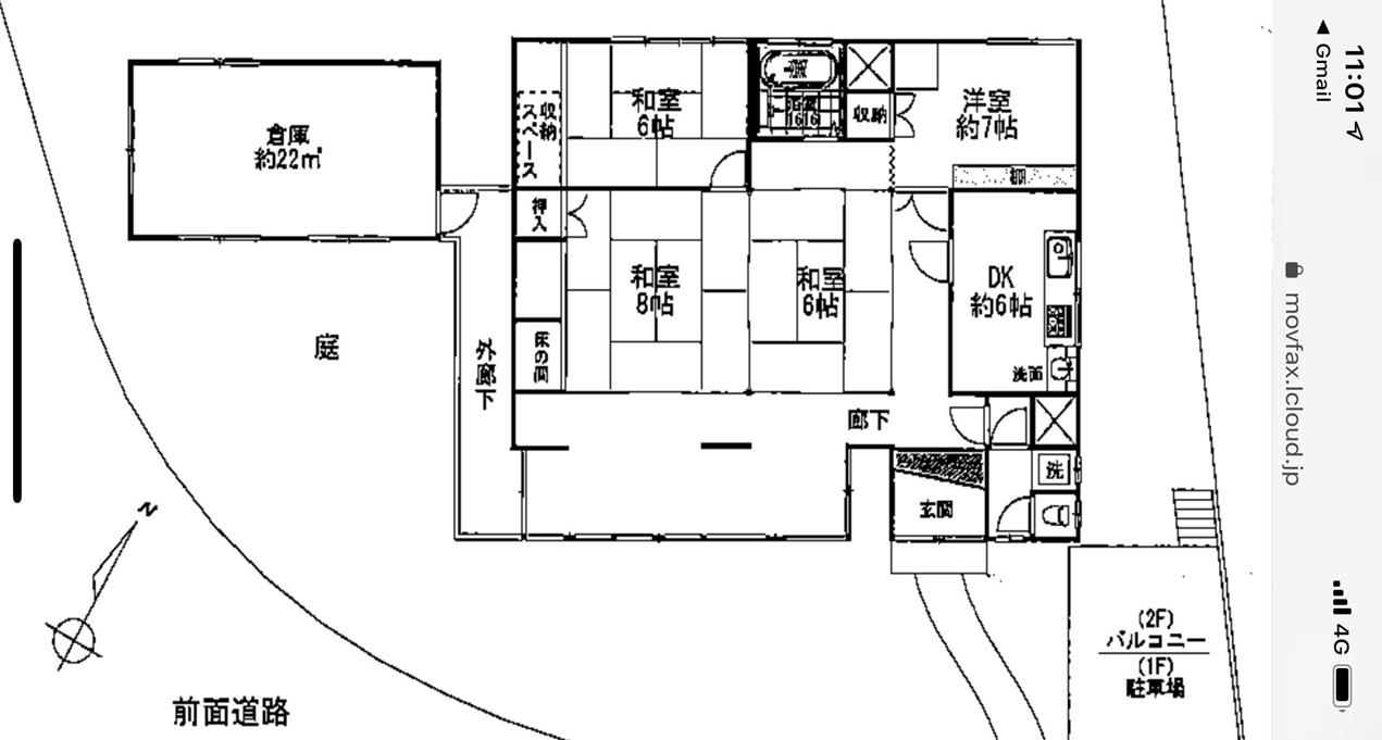
施工前 現場状況
![]() |
![]() |
![]() |
■
ニュータウンから、少し外れた敷地環境。農村風景が豊かに広がる田園風景の中、築55年の古民家。古民家といっても、構造は在来工法で施工されていました。ただ、外周基礎に関して、独立基礎で施工されているエリアもあり、基礎工事に関しては規模の大きな工事となりました。
ただ、雨漏れなど大きな傷みはなく、しっかりとした構造があり、改修工事で十分によみがえらせることができる印象がありました。
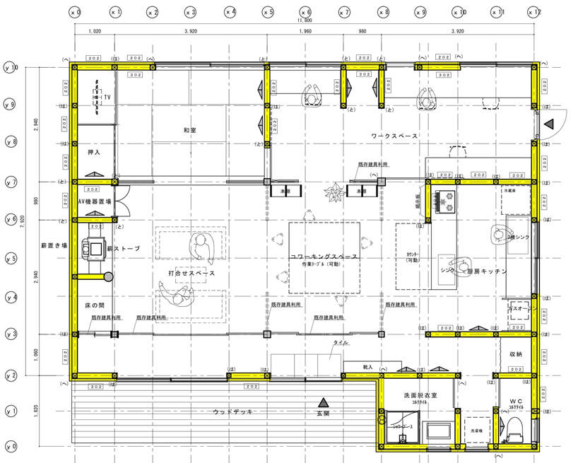
計画
![]() |
![]() |
工事前に、インスペクションを行い耐震診断、耐震計画を行った。
既存の家は、外壁南面は窓が配置されていましたが、道路に対してコンクリートブロックでふさがれ、また、南側にサンルームを増設されていたこともあり、閉鎖的な印象がありました。家を地域に開きたい、というコンセプトがありましたので、それらをすべて撤去し、南面に雑木林を造って、森の小道を入ってゆく、オープンインの形で計画しました。
施工

【内部解体状況】
床に関しては、耐震補強による基礎工事の計画がありましたので、すべて解体しました。壁は、耐力壁の計画がある箇所は解体、外壁に関しては、極力そのままの状態で使えるように考え、解体工事を減らしました。

【外壁の構成】
もともとあった外壁の土壁、解体が不要なところはそのまま残しました。土壁面に合板を施工し耐力壁として計画。その外に断熱材を施工する付加断熱の工法を採用しました。そうすることで、内部にある既存の土壁は、断熱材よりも室内側に存在するため蓄熱層とする計画です。
構造計画
工事前に、インスペクションを行い、耐震診断、耐震計画を行った。外周面、内部耐震壁下部には基礎を計画施工。外壁面に関して、既存の壁、窓位置は変更せずに、既存壁を耐震壁として計画。外壁内部の既存土壁は蓄熱層として計画したため、柱面外部に構造用合板を耐震用と気密用として施工。内部は耐震計算上バランスを見ながら、筋交い、面材を使用した。また、水平構面確保のため、天井裏で合板によってつなげた。
基礎補強![]() 無筋の既存基礎を補強、一部は新設した。 |
壁面補強![]() 耐震計算上バランスを見ながら、筋交い、面材を使用。 |
温熱計画
既存の軒の出を変えずに南面の日射遮蔽はできている。東西の窓は『シャッター』『すだれ』で日射を調整する。
敷地が少し西に振っている関係で、8月中旬からは南面からも直接日射が入る。残暑の時期は、『すだれ』で影をつくることが特に有効になってくる。
冬場は一日を通して日射を取得する。
断熱改修![]() 既存土壁を残して外断熱、土壁の処分代削減を狙った。 |
気密改修![]() 構造用合板と気密シートを施工。 |
|エネルギー計算|
新住協のQPEXを利用してエネルギーの見える化をしている。
地域区分:6地域 (大阪府堺市)
BELS性能評価
再生可能エネルギーを加えた『設計一次エネルギー消費削減量』が、『基準一次エネルギー消費削減量』に比べ、削減率105%を達成。太陽光発電によるリフォームZEH住宅。
(BELSとは、 Building-Housing Energy-efficiency Labeling System 建築物省エネルギー性能表示制度 の略称で、第三者評価機関が評価し認定する制度です。5段階の★の数等で表示され、最高は五つ星。)
「ゆっくりばこ」の提案
1.脱炭素時代の省エネ住宅の提案

写真位置(B)
築55年の木造平屋のリノベーション。敷地は、ニュータウンに挟まれた市街化調整区域の旧村に位置する。ブロック塀や増築のサンルームを撤去し、まちに開かれた雰囲気をつくる。断熱性能を向上させ、太陽光パネル・薪ストーブとあらたなパーツも加わったが、既存の“おおらかな佇まい”をそのまま残す住宅を目指した。
■
2.地域・周辺環境に合わせたパッシブ設計

写真位置(C)
ベーシックな日本建築は元来よく考えられていて、既存の窓位置、軒の出から大きく変更せずとも、日射遮蔽はほぼできていたが、季節に合わせて『すだれ』でさらに影をつくり、エントランスの雑木林は落葉樹を中心に選定し、季節の移ろいを感じられる設計としている。
■
3.自然エネルギーを活用した創エネルギーの提案

写真位置(D)
30坪の平屋。夏はルームエアコン1台で家の隅々まで涼やかに保つ。太陽光発電により、年間を通じで電力をまかなっている。
冬は薪ストーブ1台で家の隅々まで暖房する。薪は近隣の公園の伐採木と、建築現場の廃材でまかなっている。
■
4.新しい試みや挑戦
5.心地よさ、暮らしやすさを考慮したプラン

可変性のある間取りで、用途に応じで様々な使い方に対応できる。主に近隣の方々が利用され、ここでの出会いをきっかけに、コラボ企画がうまれるなど、次につながる場となっている。レンタルキッチンを使ったパン教室や、落ち着いて快適に仕事ができるコワーキングスペースも好評。
■
基礎補強、瓦の土を下ろし軽量化によって耐震評点2.2を確保
竣工後2年で2期工事を行い、屋根軽量化によって大幅に耐震性が向上した。
■
7.公共に配慮した普遍的な美しさ

写真位置(A)
南の前面道路に面した雑木林。その中をくぐり抜けるようにアプローチする。街に対してオープンでありながら、旧家が数多く集まる地域の景観に溶け込む外観デザイン。瓦と板壁、一部左官という、建築当初からの景観を変えることなく、快適な住み心地の家に生まれ変わった手法は、近隣住人の方からの関心を集めている。
■
8.長持ちするための工夫や維持管理の提案

写真位置(E)
汎用性があって、後からメンテンナンスが容易な自然素材を中心に選定。外壁は焼杉、フローリングと構造材は紀州材の杉と檜。
外構工事
竣工後の「ゆっくりばこ」

写真:レストラン、パン教室の様子。飲食店営業許可・菓子製造許可を取得済。
最後に
大阪府堺市、泉北ニュータウン。もともとはベッドタウンとして50年前に開発されました。周りには田園風景や美しい公園が広がり、住環境としては抜群ではあるが、少子高齢化の影響もあり空き家が増えつつあります。活性化のためにはこの場所の魅力を共有し、ベッドタウンとしてだけではなく、人が『暮らし』『遊び』『働ける』環境づくりが必要だと考えました。
平成25年に独立開業以来、公園を舞台に泉北産野菜を使ったカレーの店を出したりしながら魅力を発信してきましたが、今度は家をベースに「住み開く」ことで、地域の方に使っていただき、地域循環・活性化の一端を担えたらと計画しました。
令和元年9月に中古住宅付き土地を入手。冠婚葬祭まで家で対応できたシンプルな田の字型プランを現代にアレンジ。地域拠点『ゆっくりばこ』と名付けました。厨房スペースがあり、飲食営業と菓子製造業の許可も取得済みなので、飲食店や菓子店などを小さく始めたい人や、パン教室・料理教室などをやってみたい人のチャレンジの場としても利用可。20畳ほどのリビングスペースはヨガ教室などにも使用されています。平日の9時〜16時、1日500円でWi-Fiと電源が使えるコワーキングスペースとしてもオープンしています。
地域の設計事務所・工務店として、どうあるべきかを私たち自身、または会社として考えてきました。大切なのは、個々の家のデザインや性能がどうあるべきかという建築的ハードと、その家から広がる『暮らしのあり方』を提案すべきではないかということ。
築55年の家を、日本建築が元来持つパッシブハウスとしての性能を活かしながら、耐震・断熱・省エネの現代の高性能技術を施し、サービス機能付きのZEH住宅として蘇らせる設計・施工技術を見て、体感していただくと同時に、このコロナ禍の中、地域で豊かに暮らすには…の視点で、これからの『持続可能な暮らしのあり方』を模索するきっかけとしていただけたら嬉しいです。
憧れ、目指したのは映画“人生フルーツ“の津端修一さん・英子さん夫妻の来し方と暮らし。本当の豊かさとはを考えるきっかけをいただいたお2人への感謝と敬意を込めて。。。
ニュータウンのはずれ、雑木林の小道を入ってゆくと、
そこは人々が偶然出会える場であり、『特別でない 普通の暮らし』を提案する場所。住むと働くが一緒になった豊かさ、『ゆっくり』であることの心地よさを感じてください。
(西紋建匠株式会社 一級建築士事務所MUK)
西 恭利
©Yoshito Nishi , jutakui
No.0142 泉北ニュータウンでの住み開きの実践「ゆっくりばこ」
LINK
・西紋建匠(株) https://saimon-live.com/
・西紋建匠㈱ 西さんインスタ https://www.instagram.com/gowest919/
・「ゆっくりばこ」 イベントや活動 https://saimon-live.com/category/yukkuribako/
住宅医協会information
・住宅医の仕事紹介(オンライン) https://sapj.or.jp/movielist/
























































