住宅医の改修事例 №132 今あるものを活かす建築技術者をめざして ~中古住宅の資産価値を高めるリノベ
西 恭利 ( 住宅医 / 西紋建匠株式会社 / 大阪府 )
①令和2年度長期優良住宅化リフォーム推進事業
築40年 中古住宅を、長期優良住宅化リフォーム推進事業にて申請し、性能向上と、これからの住まい方を考えたリノベーション。
|建築概要|
設計・施工:西紋建匠(株) 西 恭利
所在地:大阪府堺市美原区
築年数:昭和 61年建築 築37年(2023年 時点)
用途・規模:木造 2階建ての住宅
■■■■■敷地面積:191.53㎡、建築面積:77.04㎡
■■■■■1階 76.21㎡ 2階 45.05㎡ 延べ床面積121.26㎡(36.67坪)
温熱性能:外皮平均熱還流率UA値 0.5W/㎡・K
■■■■■冷房期の平均日射熱取得率 2.1ηAC
耐震性能:耐震等級 1(認定診断法)
補助金:長期優良住宅化リフォーム推進事業(高度省エネルギー型)
|施工前 現場状況|
お客様と不動産探しから始まりました。打ち合わせ時に、不動産サイトを見ていると、この物件を見つけました。デザインや見た感じがきれいで、家の大きさも適度、劣化についても大きなものはなく、価格に関しても希望通りのものでした。
|既存 内部状況|
きれいに住まわれており、性能やデザインを言わなかったら、そのままでも使えそうなくらいきれいでした。内部に関しても、大きな劣化は見受けられなかったです。
|長期優良リフォーム版の説明書|
性能に関して、 ①耐震性 ■ ②省エネルギー性 ■ ③劣化対策 ■ ④維持管理・更新の容易性
この 4つに関して、計画し申請するものとします。
|長期優良リフォームの補助金に関して|
年度にもよりますが、私たちが申請したのは令和2年度。それ以降も長期優良リフォームの補助金は実施されていますが、年度によって金額や仕様が変化しつつあります。
|補助金の申請|
令和 2年度当時の補助金額。こちらの物件では、高度省エネルギー型で、施主さんが子育て世代であったため、 最大300万円の補助金を申請 することにしました。
|新築・リノベ 費用比較|
私たちの地元である堺市泉北ニュータウンで、産官学が連携し『リノベーション協議会』として活動しています。その中で、リノベの工事金額についての比較表。物件の規模や、築年度、どのようなリノベ、新築工事をするかによって違いますが、おおむね、新築とリノベでは、1,000万円から1,500万円の工事金額の差が想定されます。
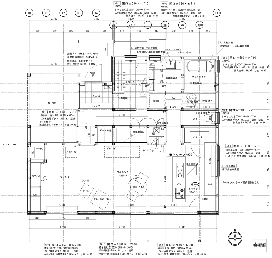
|既存の間取り|
北面に玄関、キッチンがあり、南面に 2間続きの和室とリビングがプランされていました。2階は、洋室が3部屋。工事予算を考えると、外壁工事をできるだけおさえるために、窓の位置をできるだけそのまま使えるようにしたいところです。
|1 階のプラン|
大きくは、北面にあったキッチンを、南面に配置。そこから、2間続きの和室をダイニングとリビングに。浴室、洗面所はもともとキッチンがあったところに。玄関クロークやキッチン⇔洗面所の家事動線のあたりに、パントリーや収納をとり、収納スペースを充実させる。性能については、1階は窓サッシの入れ替えで、樹脂サッシのペアガラスに。
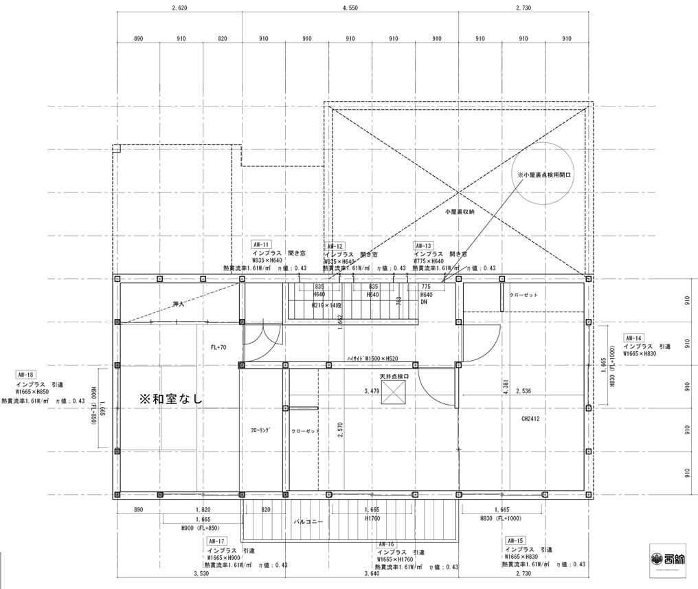
|2階のプラン|
全体的な予算配分もあり、2階の外壁や間仕切りを極力工事費としておさえる方向に。
窓は、既存窓の外に 2重窓を設置。そうすることによって、窓の周りの補修などの工事費を低減。壁や天井の断熱はしっかり施工し、間仕切り位置は既存の位置で計画。
|断面・立面の計画|
外部のデザインはそのままで、外壁リフレッシュ工事とする。
維持保全、劣化対策についても、各部点検できるように。また外壁通気や配管などは、さや管工法でメンテナンスしやすいように計画する。
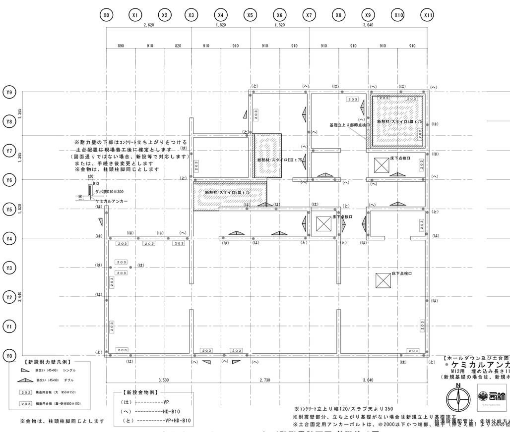
|耐震補強の計画|
既存屋根は瓦で、土が乗っていたため、「非常に重たい屋根」で計画。
基礎に関しては、使える部分は使用。耐震壁下部に基礎がない部分は新規基礎として計画。
外壁面の耐震壁は、断熱材の欠損を少なくするためボードによる耐震壁。内部の耐震壁は、設備配線などが多くなる部分があるので、筋交いで計画。4分割法でも計算を実施。引き抜き金物が大きくならないように全体のバランスを見ながら耐震計画を進める。
建物の性能表示
|BELS申請|
外皮基準 UA値 0.5
新築の場合、G2レベルの 0.46を目指すことが多いが、こちらのリノベもおおよそ G2レベルまで省エネ性能を引き上げる計画。
(※BELSとは、 Building-Housing Energy-efficiency Labeling System 建築物省エネルギー性能表示制度 の略称で、第三者評価機関が評価し認定する制度です。5段階の★の数等で表示され、最高は五つ星。)
既存建物の調査
内部居室から目視できる窓や内装から、床下、屋根裏まで、隈なく現況の調査。
構造的な欠陥や、雨漏れは見受けられなかった。設備に関しても特に問題は見受けられなかった。
既存調査
![]() 室内調査、採寸 |
![]() 屋根 調査 |
![]() 小屋裏 調査 |
![]() 床下 調査 |
解体工事
![]() 既存室内 2間続きの和室 |
![]() 2間続きの和室 → リビングダイニングへ |
基礎工事
![]() 既存の基礎を使用。新耐震壁が計画されている箇所には新しい基礎を施工。 |
![]() 間仕切りが多い部分には、壁も増えることになり、耐震壁として計画することが多い。 |
耐震壁施工
![]() 内部は、設備の配線配管が多いため、筋交いに耐震壁を計画。 |
断熱工事
![]() 床は、発泡系断熱材を採用。 |
![]() 天井、壁はグラスウール。 |
大工造作工事
![]() 室内は、防湿と気密を目的とし、シートを施工。 |
![]() リビング ダイニング施工状況1 |
![]() リビング ダイニング施工状況2 |
![]() キッチン施工状況1 |
![]() キッチン施工状況2 |
竣工写真
最後に。
最後に。
この時代、スクラップアンドビルドではなく、今あるものを有効に使うことが大切。もちろん予算があれば、新築で住まいを計画するとこですが、ここ最近は建築コストが上がり、土地から計画となると、なかなか総工費は上がってしまいます。土地とトータルで考えると、新築との1,000~1,500万円の工事費の差というのが住宅ローンにも大きく影響を及ぼします。
そこで、中古 + リノベ を検討されることも視野に入れながら、住まいの計画を進めていただきたいと思います。ただ、中古 + リノベ工事 といっても大きな予算を建物に投資することになります。そのため、投資された資金の担保としてその価値を証明できる設計や施工方法を考える必要があります。建築の履歴や、リノベの計画、その性能が証明することができれば、資産価値としても担保される部分が出てきて、そういう意味でも安心な暮らしができるのではないでしょうか。
今後、日本でも、住宅の既存価値がもっと評価される時代は来ると思いますし、そうでなければならないと思います。
LINK
・西紋建匠(株) https://saimon-live.com/
・「ゆっくりばこ」 イベントや活動 https://saimon-live.com/category/yukkuribako/
住宅医協会information
・住宅医の仕事紹介(オンライン) https://sapj.or.jp/movielist/
©Society of Architectural Pathologists Japan














































