住宅医の改修事例 №095 〜耐震+温熱改修事例「漢方の本陣」275年前の古民家再生
2019年日本エコハウス大賞・リノベーション大賞受賞
住宅医の改修事例報告 95例目
本建物は、滋賀県木之本宿に建つ「北国街道」に面した町家である。
延享元年の棟札から1744年築であることから275年前の古民家で、江戸時代から参勤交代には「本陣」(平屋94坪)として使われた薬屋である。
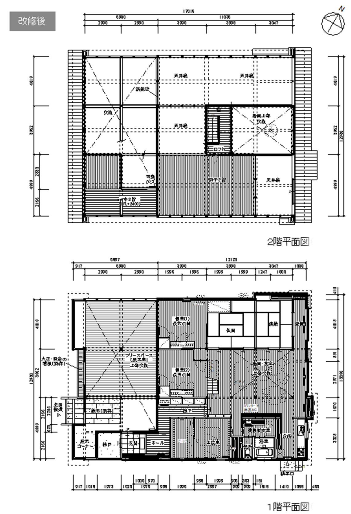
今回の改修は、耐震はもちろん温熱改修が大きなテーマであった。エアコン一台で、生活空間65坪を冷やし、温め、快適な室内環境を実現することを目標とした。
耐震改修は167ミリの傾きを是正するために、柱の根継ぎや壁の補強を行い、外されていた足固めを再挿入し、限界耐力計算によって石場建ての特性である減衰力と復元力を生かした。
温熱計画は天井や梁を表しにするため第三種換気とし、室内にダクトを見せないように配慮した。UA値0.57は、HEAT20のG1レベル相当であり。無暖房でも室温が10度を下回ることはない。
また室内に光を取り込むために庭側の窓を大きく開けて、吹き抜けを設け建物の奥まで日射が届くように工夫した。
これからの古民家再生は、耐震と寒い暗いを解消することも大切な課題となってきた。
住宅医の講習によって身につけて欲しいスキルである。
住宅医協会 理事:松井郁夫




【応募した提案書・設計趣旨】
改修後






改修前

改修後

断面説明図

第3種換気による温熱コントロール概念図


夏見諭氏のアドバイスによる温熱計画 エアコン一台で、燃費1/8・コスト1/5
関連情報
住宅医協会リレーコラム「古民家への道」発刊に際して 19.10.29記事は こちら
古民家への道 書籍は こちら


