住宅医の改修事例 №137 ~私たちのペースで末永く暮らす
三ツ谷 歩( 住宅医 / 株式会社創造工舎 / 奈良県 )
背景
施主世帯と親世帯の二世帯で同居されており、キッチン、浴室、洗面、トイレは1カ所だけのため二世帯で共用されていました。
改修工事のきっかけは、施主のお子様の成長に伴い親世帯との生活時間のずれが出てきため、施主世帯が自分たちのペースで気兼ねなく生活できる空間がほしいとの思いからでした。
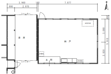
計画当初は納戸として使用されていた平屋棟を建替えて新築することを考えられていたのですが、敷地の条件的にできなかったため、平屋棟の改修を計画することになりました。
建物調査
初訪時には、図面作成のための採寸、劣化事象の確認を行いました。
現地で住まい方の状況をヒアリングする中では、建物の劣化や耐震性、断熱性などに不安を感じておられました。
また、離れ棟は自分の代では手を加えずに次世代が好きにできるようそのまま残しておきたいというご意向をお聞きしました。
建物調査を元に、耐震診断の実施、屋根・給排水などの職人同行の調査を実施。床下や小屋裏は一部解体した範囲で確認し、見えない範囲については解体後に点検を行いました。
![]() |
![]() |
![]() |
調査結果
-
- ■ 耐震性・温熱性が著しく低いので、ご要望にも沿えるようこの2点の性能向上が必須
- ■ 耐久性:外壁のサビや樋の欠損を確認、継続中の雨漏りや蟻害は確認されず
![]() |
![]() |
計画
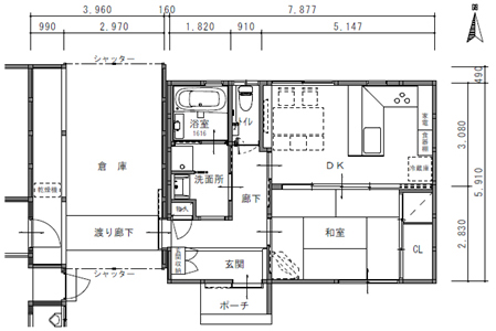
平屋棟と、元々寝室として使われていた離れ棟を施主世帯の生活ゾーンに、母屋棟を親世帯の生活ゾーンとし、お互いに気兼ねなく暮らしていただけるようにしました。
敷地北側の田んぼは周囲を隣地に囲まれており敷地内からのみのアクセスになるため、農機具通路の確保は必須でした。
打合せの初期段階では平屋棟の東側を減築して倉庫兼農機具通路を確保するプランも検討しましたが、施主のご要望で最終プランでは、倉庫は既存の位置のままとすることになりました。
和室の使い方は、ライフステージにて変化する役割を与えました。
工事完了の時点ではリビングとして、お子さんが成長し巣立った後は、施主夫婦の寝室とする予定で、将来的にはこの平屋棟で生活が完結できるようになります。

After 間仕切り襖の上部をランマ(FIX窓)とすることで、襖を閉めても天井がつながり、かつ南面の採光がDKまで届く。
竣工写真 Akio Chamoto■■■■■■
耐震改修
- ■ 評点:0.17 → 1.17(一般診断法)
- ■ 屋根:土葺き瓦 → ガルバリウム鋼板葺き
- ■ 壁量を増やす(壁補強は構造用合板、ステンブレースを使用)
- ■ 柱頭・柱脚に金物取付
![]() 既存屋根(土葺き瓦) |
![]() ガルバリウム鋼板葺きに |
![]() 耐震施工の様子(壁補強は構造用合板、ステンブレースを使用) |
![]() 〇〇 |
温熱改修
断熱性能等級4を目標に
施工写真![]() 天井全面に防湿気密シートを張ってから間仕切り壁を造作 |
| 性能向上 Before ⇒ After
・UA値:3.10W/㎡K ⇒ 0.57W/㎡K |
改修結果 レーダーチャート
- ■ 耐久性:外壁・樋の更新、床下・天井点検口の設置
- ■ 省エネルギー性:エコキュートの設置、LED照明
- ■ バリアフリー性:通路幅の確保、水廻りに手すり設置
- ■ 火災時の安全性:火災報知器の設置、感震ブレーカーの設置(補助金利用)
■
気密測定
工事完成後に気密測定を実施。C値 2.6 ㎠/㎡
![]() |
![]() |
温湿度測定
冬に外気・暖房室・非暖房室にて温湿度測定を工事前後に行いました。
測定期間中で外気が最低温度になった 1日で見てみると、工事後は非暖房室で10℃を下回る時間帯があるものの、温度変化は一日の中で一定していました。断熱等級4の仕様がどのような温湿度変化になるかが分かりました。
最後に
今回の改修工事では、ゾーン断熱として平屋棟の温熱改修はできたものの、倉庫や離れ棟との温度差を解消することができなかった課題が残りました。今後も施主様とお付き合いをしていく中で、少しずつこの課題を解消していくことに努めます。
建物全体のメンテナンスも含め、家を次世代へと引き継いでいくお手伝いをしていきたいと思います。
三ツ谷 歩
©Mitsutani Ayumi , jutakui
LINK
株式会社創造工舎 https://www.sozokosha.com/


































