住宅医の改修事例 №0144 緑道を望む住まい
目黒 剛志(住宅医 / 株式会社 大庄 / 新潟県)
2024年元日の能登半島地震。被害に見舞われた皆様には謹んでお見舞い申し上げます。
新潟も震度5強~6弱の大きな揺れに見舞われました。私は同市内の実家帰省中に地震に遭い、翌日自宅に帰宅しました。自邸は全ての家財が動いた様子も無く、一部の漆喰内壁入隅にわずかに隙間が出来た程度。今後の住まいづくりにおける安全性の大切さを改めて痛感しました。
この物件は、設計者 目黒が居住用として中古住宅購入、施工した事例です。家族構成は 夫、妻、娘(2才)の 3人家族。「緑道を望む住まい」 といいます。
・・・・ クリックで移動 ・・・・
〜 施 工 前 〜
1-1, 物件概要
1-2, 物件購入前の簡易調査
1-3, 調査診断
1-4, 設計方針
〜 設計施工詳細内容の説明 〜
2-1, 改修プラン
2-2, 構造、耐震性能 補強
2-3, 断熱、気密性能 補強
2-4, 既存建物の美しさを活かす
2-5, 既存建物の周辺環境を活かす
2-6, イニシャルコスト対策
2-7, Before After 写真
2-8, おわりに
・・・・・・・・・・・・
★
1,施工前
1-1, 物件概要
| ■既存物件の概要(土地建物) 所在地 :新潟県長岡市中沢 都市計画区域:都市計画区域内(市街化区域) 防火地域等:法22条指定区域 用途地域 :第一種中高層住居専用地域 建ぺい率 :60% 容積率 :200% 下水処理 :下水処理区域 道路種別 :私道 |
![]() 出典:長岡市ホームページ ながおか便利地図 |
物件の所在地は新潟県長岡市中沢という町です。防火地域は法22条指定区域、用途地域は第一種中高層住居専用地域。JR長岡駅までは車で約6分で、日常の買い物も徒歩で行ける利便性がある立地です。
■既存物件の概要(土地建物)
立地の利便性は良く、 周辺地域は、約50年~40年前頃に、宅地として開発されている。交通量の多い大通りからは1本入った立地で、騒音に対する配慮、安全性があり、信濃川流域を中心に広がる長岡市市街地において、洪水ハザードマップからも外れており、更に、敷地の北西側には長岡市の管理する緑道が面しているという恵まれた立地環境を有していました。
![]() 出典:長岡市 洪水ハザードマップ |
![]() 緑道 |
■既存建物の概要
南西側外観 |
北西側外観 |
シルエット 良好・日射取得環境 良好 |
敷地は、約47坪、接道は南東側の わたくしみち のみですが、南西側に市道、北西側には水路を挟んで緑道に面しており、視覚的には角地といえる環境です。駐車場は無く、ブロック塀に囲われており、近隣の方が車で出るときの視界を妨げていました。
購入したときの建物の築年数は58年。延床面積は32坪ほどで、ほぼ総二階に近い形状。軒高が比較的低く、外観シルエットが整っていました。方位は40度西に振れていますが、周囲三方向が開けており、日射取得を意識したパッシブ設計ができるポテンシャルがある建物でした。
内部構成は、1階は南東側の玄関から廊下を介して3室が連なっており、2階は、1階と重なるように3室があり、耐力壁区画は概ね整合している様子。水廻り、寝室の窓、廊下の床など、所々リフォームされた形跡がありました。そして、2階の窓からは緑道の緑が間近に感じられ、特に南西側の景色は奥行感があり、改修前の時点でもとても美しいものでした。
■価格の比較
好立地の物件、、、でも比較的安かった。
この物件は比較的安く購入できました。同等周辺環境の「土地のみ」の物件と比較して300~400万円ほど、同等環境でなおかつ新耐震基準以降の建物がある物件と比較すると500~1,200万円程度 安かったです。なぜ好立地の物件が安かったのか。そして売れ残っていたのか。
売れなかった主な理由予測
なぜ安かったのかを私の視点で検証、予測してみました。1つめ。もっとも大きな要因は「築古が乗っていたこと」であると思われます。残り二つは既存敷地内に駐車場が無かったこと、そして、建物内部に入るとすぐにわかる床の傾斜があったことであると思われます。
- 更地ではなく、築古(築58年)の建物付だったこと。
もし解体済みの更地だったら、幾分か売り易かったはず。 しかし、所有者様からすれば「解体しても売れない可能性」「固定資産税UP」のため解体せずに売りに出した。(予測)
物件費570万円 + 解体費の概算250~350万円 = 820万円~920万円 → 周辺物件相場と一致
(当物件は値引き交渉前は600万円でした)※景観性(眺望)を含めれば、もっと値がついても良いのに(目黒主観) - 既存敷地内に駐車場が無かったこと。
- 建物内部に傾斜あり(不動沈下)
★
1-2, 物件購入前の簡易調査
■物件購入前の簡易調査 …非破壊の範囲、短時間で
調査日程:令和3年4月10日~令和3年5月10日(2回訪問) → 売買契約(令和3年5月21日)
不動産屋さんから簡易調査許可(小屋裏、床下)
物件購入前に不動産屋さんから許可をもらい、間取りの確認と、小屋裏・床下の簡易調査をおこないました。床下は一部しか確認できませんでしたが、床の不陸の原因は、既存の根太組が経年劣化している事が主な要因だろうと予測。仮に基礎の全面改修が必要となっても 物件価格が手ごろな事を考慮すれば、改修費を捻出できるだろうと判断し購入しました。
★
1-3, 調査診断
調査・診断 / 屋根・小屋裏
屋根面は4.7寸勾配の鋼板瓦棒葺き。雪止め金具の付け根で腐食、穴あきが発生。屋根面全体も積雪荷重の影響か、たわんでいました。
小屋裏の確認では、一部増築されていることが判明。目立った雨染みは無し。
夏場の調査だったのでサーモカメラで状況を確認。屋根面は67℃に焼けており、2階天井面は無断熱であったため、47℃くらいあり めまいがするような室内環境でした。
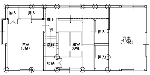
![]() 既存 2階平面図 |
![]() 2階北東側 洋室7.5帖 天井を解体して確認 |
![]() 屋根:腐食有り、積雪荷重の影響でたわみ有り |
![]() 雪止め金具の付け根:穴あきが発生 |
![]() 屋根:サーモカメラで状況を確認 屋根面は67℃ |
![]() 2階天井:47℃程 めまいがするような室内環境 |
調査・診断 / 床下・基礎
床面は 1階洋室と和室で、建物の北西側に向かって 17/1,000 ほどの勾配が発生していました。
床下では、北西側の一部が巾3尺長さ5間ほどの範囲が沈下傾斜していました。また、外周部では庭土に埋まって目視できませんでしたが、内外に通じる太いひび割れが 9カ所ありました。
![]() 既存 1階平面図 |
![]() 北西側に向かって 17/1,000 程度の勾配 |
![]() 庭土の土留めとしてブロックが積まれている |
![]() 北西側:巾3尺長さ5間ほどの範囲が沈下し傾斜している |
![]() 南西側基礎内部 10~20㎜のひび割れ ひび割れは全9箇所 無筋基礎であることの確認 |
![]() 北西側に向かって、地盤面が沈下勾配あり |
調査・診断 / その他
北西側土留めは、建物に押されるように膨らみ、ひび割れが発生していました。
地盤調査を行い、結果は軟弱地盤判定。
既存基礎のシュミットハンマー試験では、反発値はおおむね40前後で、強度はある状態でした。
北西側 土留めのひび割れ |
SWS地盤調査の実施 → 軟弱地盤 |
シュミットハンマー試験 約20箇所![]() →反発値 概ね40前後 ※部分的に発生していたジャンガ箇所では20程度 |
建物性能 (改修前)
★
1-4, 設計方針
調査結果を踏まえたうえで、設計方針を決めました。
- 築古中古を良質なストックとよべるレベルに改修する実績を作ること
- 外皮性能を高めることで、豊かな周辺環境と住宅を繋げること
- 改修難易度の高い物件を経験することで、改修の力を身に着けること
- 二つの同業他社様の集まりで、この改修物件内容を「共有」し、同時に私自身の事例振り返りとして深めること
★
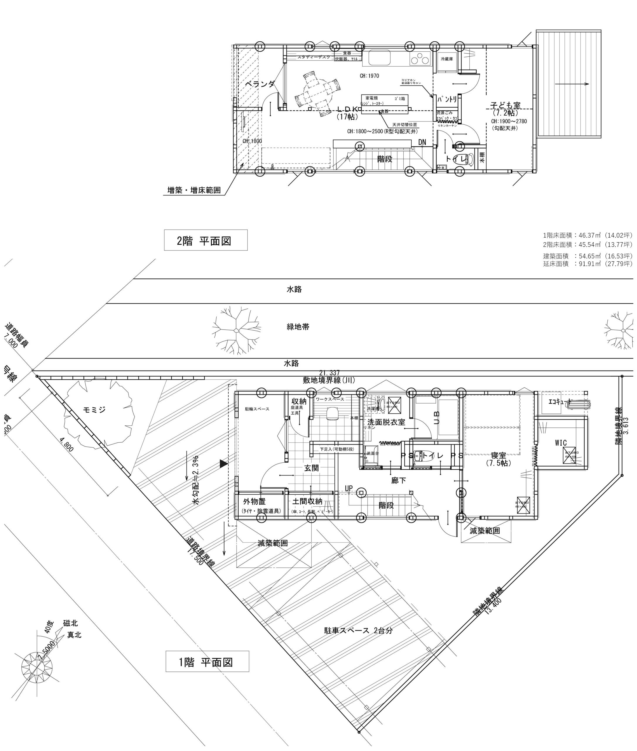
2-1, 改修後プラン
南東側に下屋として出ていた玄関と台所の一部を減築。玄関の入り方向を南西側に変更。そして、主に耐震性と眺望性を考慮して2階リビングプランとしています。1階は、浴室、脱衣室、主寝室という構成です。
★
2-2, 構造、耐震性能 補強
構造と耐震補強について
不動沈下の発生していた基礎の改修
改めてですが、既存の基礎は、北西の緑道側が沈下しており、それに付随して無筋コンクリート基礎が割れている状態。ですが、建築面積全体ではなく、画面右側の青線の範囲は沈下が起きていない部分もありました。
ここまでの既存状況を踏まえ、基礎補強方法の検討では、住宅医協会事務局の鈴木竜子先生、滝口先生に、改修計画の相談をさせていただきました。
既存基礎 不動沈下の原因
検討の結果、不動沈下の原因は
- 軟弱地盤であること と
- 建物が土留に作用する配置であったことが組み合わさり起きていた事象であると推察しました。
基礎補強(原因に対する対策)
解体後 南東側を軸として、北西側を土台上げを施工。有筋基礎(立ち、ベース)を増し打ちする事で、
- 基礎を有筋基礎として耐震性を評価
- 北西側のみの不動沈下に対して面で抵抗する
原因の想定を踏まえての基礎改修計画です。
当初、沈下の起きている北西側に地盤改良杭の施工も検討しましたが、既存基礎のキワは施工不可であることが分かり方針変更。既存基礎に対して増し打ち基礎と、Y方法に立上りのあるベタ基礎を施工する計画としました。
■基礎補強 施工写真
施工:株式会社 大庄 / 設計・監理:目黒剛志
解体後の状況 |
防湿シートの施工 |
増打ち基礎用アンカー金物 |
基礎の施工写真です。スケルトンに解体し掘削したのち、
- 土台上げ:北西側H70㎜程度。
土台下パッキン材は長期固定荷重の掛かる柱の直下を避けて配置。土台下面には湿気対策で気密シートを貼った。 - 内部砕石敷き込み転圧、防湿シート敷き込み。
- 増打ち基礎及びベタ基礎のコンクリート打設。一部鋼製束を巻き込んで打設。
あと施工アンカーは、ケミカルだと既存基礎を貫通する恐れがあった為、同等引き抜き耐力の差し筋アンカーを選択。増し基礎用のアンカーも合わせて施工しました。
上部構造・壁量補強
![]() ホームズ君Pro |
![]() |
上部構造の補強
積雪1.0m、軟弱地盤であることを加味した上で、上部構造評点を1.57まで補強しました。
外周部面材はモイスTM と ダイライトMS を併用。ダイライトMSだけでは壁基準耐力が不足。モイスTMのみだと耐力は満たすが偏心率が悪くなるためです。
鉛直構面の補強と合わせて、水平構面の補強も実施。
屋根面は、桁上げ後、新規垂木にラフターロック金物を施工、2階床は、剛床は構造材の不陸のため施工不可。根太転がし及び転び止め、構造用合板24㎜、鋼製火打ちとしています。
■調査・設計どおりの施工内容
![]() |
![]() |
![]() |
調査・設計どおりの実際の施工内容です。
梁成が足りない箇所は、接着施工で重ね梁。玄関ポーチの開口には、フレームⅡ門型を採用し偏芯率を向上させました。接合部は現行基準の金物としています。(柱頭柱脚金及び梁接合金物)
■スケルトン解体後の計画変更・施工内容
スケルトン解体後に計画変更した内容です。
・隅角部の抜きにくい柱端部にわずかに腐食があったため添え柱を施工。
・外周部柱には大きなほぞ穴が多数あった事と、屋起こしでは治りきらなかった垂直を整えるため、柱を間柱で挟むことで2つの目的の補強修正を行いました。
ただし、間柱のツラを室内側に、柱のツラを外周面材側に合わせたことで、一部の外周面材の中通りで面材の釘周辺が割れていることが判明。急遽、室内側に構造用合板面材を追加施工とし、計算書に無かった補強を行い対応しました。
★
2-3, 断熱、気密性能 補強
■断熱工事 概要
| 【 仕様 既存住宅 】 天井:無断熱 壁:無断熱(土壁) 床:無断熱 窓:アルミ単板サッシ 寝室のみアルミ複層サッシ 玄関:金属製引違戸 単板ガラス ・■ ・■ ・■ ・■ ・■ ・■ |
【 仕様 改修後プラン 】 天井:セルロースファイバーt350 室内側 防湿気密シート(ダンタイトt0.2) 壁:高性能GW 24Kt120充填(マグイゾベールコンフォート) 室内側 可変透湿気密シート(調湿すかっとシート プレミアム) フェノールフォームt60付加(ネオマフォーム) 床:床断熱部 押出法ポリスチレンフォームt100 +t60(ミラフォームMKS) 基礎断熱部 ビーズ法ポリスチレンフォームt100(パフォームガード) 窓:YKKAP APW430(南東・南西側/日射取得,北西側/日射遮蔽) 玄関ドア:ガデリウス木製ドア(H/2080) 換気設備:ローヤル電機 SE200RS 全熱 交換効率90% |
断熱気密施工です。
既存はほぼ無断熱と言っていい状態。改修内容は、当社の標準性能及び施工方法を基準とし「全館冷暖房をエアコン一台で行えるレベル」を目安としています。Ua値は 0.26 、C値は 中間と完了で測定し、2回とも 0.8という結果となり、フルリノベーション物件の目安としていた値1.0をクリアできました。
■屋根断熱(セルロースファイバー t350)
屋根はセルロースファイバー 350㎜
不織布を張って充填したのち、防湿気密シートを施工し、丸太梁周囲は伸縮性気密テープで施工しました。その上での気付きとして、2回行った気密測定では、どちらの回も「漏気の約9割は小屋裏からである」という状況が判明。中間検査の際では、丸太梁のひび割れ部分から明らかなな空気の流れも確認でき、今後の施工方法の要検討箇所となりました。
■壁断熱(充填HGWt120 及び 可変透湿気密シート+ 付加断熱ネオマフォームt60)
壁断熱は、高性能GWを120㎜厚、屋外側にネオマフォームを60㎜付加しています。サッシ取付け部および、床断熱と壁断熱の取り合い部には、先張り気密シートを施工。
床断熱(ミラフォームMKSt100+60)![]() ※熱橋に配慮して2層充填を初採用 |
床断熱は、熱橋と床下湿度に配慮し、XPSを2層充填としています。気密テープ処理は大引間と下地合板面で行った。2階の一部(リビング部)が「外気に接する床」となっており、当初、通常床と同じ仕様としていた。ただし、工事期間中に暖房してサーモカメラで確認したところ、通常部分との温度差が顕著であることが判明。
応急対応として、ネオマフォーム60㎜を追加施工し、かつ床下根太間に室内空気が通るように計画を変更しました。
暖冷房計画
冷暖房計画の概要です。
冷房時期と暖房時期、それぞれエアコン一台を連続運転し、もう一台を補助として使用しています。冷気・暖気が円滑に動くような造作配慮として、
- 1階玄関の天井一部を横格子仕様とし、(施工中サーモ撮影後の計画変更)
- 2階床面(窓際部、外気に接する床部)にガラリを設置
- 1階寝室と脱衣室の建具上部に 回転欄間を設置
- 1・2階の各個室と共用空間との間仕切り壁にエアパスファンを設置。就寝時、室内建具を閉じた状態でも冷暖房空気が循環するように狙って設置しています。
燃費計算
ビフォアとアフターの燃費計算をQpexで行っています。
改修前では、暖房負荷 367.0kWh/㎡で、全館暖房費が56万円という結果でしたが、改修後は、暖房負荷17.2kWh/㎡、冷房負荷13.4kWh/㎡、全館冷暖房費はそれぞれ2万5千円程度という試算になりました。
■夏期のサーモ実測
![]() 2023年9月17日 予報 |
・【 測定条件 】 9/17 AM11:00 2階AC 25~26℃設定(連続運転) 1階AC 27.5℃設定(日中補助) ■ ・【 結果 】 1階 24~25℃ 2階 25~26℃ |
![]() 外観(南西) |
![]() 外観(南西)サーモカメラ |
![]() 1階玄関 |
![]() 1階玄関 サーモカメラ |
![]() 2階窓(南東) |
![]() 2階窓(南東 )サーモカメラ |
![]() 2階室内(南西) |
![]() 2階室内(南西)サーモカメラ |
この夏には冷房運転状況をサーモカメラで確認し、1階が24~25℃、2階が25~26℃の表面温度に保てていることが分かりました。
★
2-4, 既存建物の美しさを活かす
既存建物の美しさを活かす計画
内部意匠設計について。
テーマは「既存の美しさを活かす計画」です。
初めて出会ったこの建物は、確かに古さはありましたが、同時に美しいと感じさせるものがありました。その要因は、建物の比較的整った形状と、構造躯体から感じるものでした。
ご近所様から伺ったところ、この家は同市内の小学校の躯体を移築して作られたとの事。住宅医を目指す私の家に小学校の移築材が来てくれて(存在してくれて)更に将来に受け継げることにご縁を感じました。
新しい住まいでは、2階リビングの半分をR型勾配天井として丸太梁をあらわしインテリアのアンティーク要素として取り入れました。
もう半分は、水平天井(桧小幅羽目板)として景色に視線を誘導する役割 内部は空調ダクティング。
★
2-5, 既存建物の周辺環境を活かす計画
既存建物の周辺環境を活かす
①周辺環境を活かす=ウチからソトをどう活かすか

メインビューは、現地調査時に確認した南西方向の遠近感ある景色とし、更に、北西側にも外皮性能を活かして大きな窓を設けました。
②周辺環境を考える=外から住宅がどう見えるか
![]() 5月 緑道より、撮影:㈱山川建築事務所 山川潤氏 |
![]() 北西側は雨風が強い。木外壁は更に注意 サッシ廻りに役物。通気層で雨水排出 |
この建物は周辺から目立つ立地であることを考慮して、景観性、公共性を考えながら外観を検討しました。その際の施工上の留意として、この建物は北西からの雨風が強く既存建物の窓廻りにも雨染みが確認されていました。
プランでは2階部分外壁が杉下見板張(相じゃくり品)。サッシ廻りには鋼板役物を施工し、杉板の伸び縮みやシーリングの劣化に伴って雨水が侵入しても通気層で確実に排水される計画としました。
③中間領域の設定
2階リビングの南西側には屋根付きの半屋外空間としてベランダを設けました。目的はふたつ。
■1つ目は 住む人と町行く人との視覚的距離の調節
■2つ目は 景観性として建物の奥行感を作る事
★
2-6 イニシャルコスト対策
良質な住まいを造りながらも、初期コストを抑える事には配慮しました。具体的にはこの4つです。
- 総2階に近い形状に設計することで、施工材及び手間の省力化
- 設計者と施工者が使い慣れた材料選択で残材を最小限に(主に断熱材)
- 補助金活用・・・次世代省エネ建材実証支援事業/開口部と断熱工事(185万)
こどもエコ住まい支援事業/省エネ設備(12万) - 内装DIY・・・・タイル張(洗面脱衣室、キッチン)
漆喰コテ塗り(途中で挫折し、珪藻土塗料に変更)
外壁杉板の塗装(オスモ&エーデル ウッドステインプロテクター 裏表2回塗)
DIYでは、タイル貼、内装漆喰コテ塗、外壁杉板の塗装を実施。漆喰塗りでは妻にも参加してもらいました。それぞれの作業を自ら行ったことで、作業の大変さ・掛かる時間・施工のコツ・以外と簡単に出来る内容など、今後のお客様への提案として活きた経験を積むことが出来ました。
建物性能 (改修前後の比較)
改修後レーダーチャートはこの様に向上しました。
★
2-7, Before After 写真
南西側と南東側。南東側一階は、キリヨケにすだれを設置して日射遮蔽する計画としています。
1階南東側。スダレで日射遮蔽。庭は来春予定。
2階LDKのメインビューを望む
1階 廊下の状況はこのように変わりました。

玄関ホール。南東からの陽が照らす。
今回床には栃木県の日光赤杉を採用。できるだけ新潟に近い地域から、国産の良材を選びたいという意図で選択。ダイニングテーブルは飛騨のケヤキ材で、地元長岡市の家具屋さんで製作してもらいました。柾目材をメインにしながら部分的に節を意匠的に加えて仕上げて頂きました。それぞれ、この建物で、美しく時間を重ねてくれるのではないかと期待しています。
★
2-8 おわりに
「丈夫で 快適で 長く愛される 住まいを 市街地の既存住宅で 叶えること」設計趣旨をまとめてお伝えすると、こんな言葉です。ひとつの結果(事例)として実現できたと感じています。また、計画と施工を通して沢山の学びを得ることが出来ました。設計方針のとおり、「今後のお客様の住まいをより良くする 糧 にできる」と実感しています。
計画の大きなきっかけは、今から約5年前(2018年)「これからのリノベーション」という書籍の発刊記念講演に赴いたこと。その場で手帳に「自邸でこの書籍の内容を実証する」と書き記しました。翌年2019年に住宅医スクールに通い、意志ある方達と学ぶことが とても嬉しかった事を覚えています。このときから、気持ちの上では計画はすでにスタートしていた様に思います。
最後に、
携わってくださった大工さんを始め協力業者様方。
基礎補強計画のアドバイスを頂いた住宅医協会事務局の鈴木様、滝口様。
事例共有の場をくださったYKK AP性能向上リノベの会の皆様。
共有と学びの場をくださった新潟の建築コミュニティー「住学」の皆様。
計画に協力してくれた弊社の先輩社員の方々。
そして最も大きな理解と苦労を共にしてくれた妻に、この場を借りて感謝を伝えさせて頂きます。
目黒 剛志
©MeguroTsuyoshi, jutakui
No.0144 緑道を望む住まい
LINK
株式会社 大庄 https://www.sumitsuguie.com/
















































































