住宅医の改修事例 №135 金石町家つなぎプロジェクト
北村 陽子( 住宅医 / 北村陽子けんちくアトリエ / 石川県 )
敷地概要
物件所在地:石川県金沢市金石(海から400m)
用途地域 :第一種住居地域(60/200%)・準防火地域
敷地面積 :103.84㎡(31.4坪)
地域区分 :省エネ区分6地域・多雪区域(積雪1m)

敷地は石川県金沢市の港まち、金石に位置します。もともとこちらの地域に家族で居住しており、新居を構えようと土地を探していましたところ、予算や規模に見合うものの多くが古い町家付きの土地ばかりでした。
金沢市は戦災を逃れた城下町であり、多くの町家が残っていますが、老朽化や後継者不足などから市内では年間約100棟の町家が解体され、金石でも直近5年間で1割の町家が消失しています。
当初は新築で検討していましたが、まちの伝統的な風景がなくなっていく現状を目の当たりにし、なんとか一棟でも保全活用できたらという思いが強くなりました。そこで、温熱性能や耐震性を現代の基準にまで向上させた、町家の改修モデルをつくり、次世代につないでいくきっかけにしたい、という思いから、「金石町家つなぎプロジェクト」が動き出しました。
こちらが購入した町家です。築年数は80年以上、木造2階建てで30坪程度の小さな町家です。水廻りや外壁は改修の跡がありましたが、他は目立った傷みもなくキレイな状態でした。購入時、不動産の業者さんに改修して住もうと思っていることを伝えたら、「こんな古い家に住むなんてちょっと考えられない!」とビックリされたのを覚えています。販売価格はほぼ土地の価格、建物の価値はゼロ、1年以上買い手がつかないよいうような見過ごされた町家で、このプロジェクトがスタートしました。
築80年以上の町家
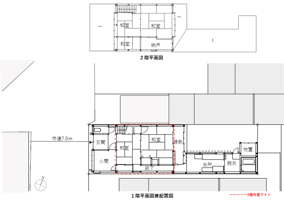
改修前の平面図です。間口が狭く、奥行が長い、うなぎの寝床と呼ばれる典型的な町家の形状で、道路や隣地境界線ギリギリまで建物が建っています。
| 改修前:1階 |
1階は道路側にふたま続きの和室と小間があり、奥には中庭を囲むように水廻りが配置されていました。
| 改修前:2階 |
2階は道路側の主屋にのみ和室と納戸がのっているプランでした。目立った不陸や傾きはありませんでした。
施主の要望
施主の要望としては、まず第一に町家の意匠を活かしたすまいにしてほしい!というものと同時に、暮らしまでを古いものにしたくはない!というものがありました。つまり、町家特有の「寒さ・暗さ・狭さ」のストレスを解消したいという要望です。
それなら町家に住むな!という意見もあるでしょうが、町家が住宅として利用され続けていかない最大のネックは居住性の悪さだと考えて、それらを解消することが 町家をすまいとして保全活用することにつながると考えました。
そこで、どんな性能があれば現代的な暮らしをストレスなくできるのかを検討し、具体的な目標として、
- ・温熱性能の向上(断熱等性能等級4以上)
- ・気密施工・気密測定試験を実施
- ・耐震性の向上(上部構造評点1.0以上)
- ・基礎の全面改修、床下点検スペースの確保
- ・カビや結露を発生させにくい材料の選定
- ・敷地内に駐車スペースを確保
その他、改修後も長く快適に過ごせるよう、これらの目標を満足するように改修プランを検討しました。
建物調査 ①購入前後
![]() 外壁の劣化 |
![]() 軒裏の劣化 |
建物調査は町家購入前と購入後の複数回にわたって行いました。
まず、購入前に外観・内観を目視にて確認しました。内装材はやり替えを前提としていたため、雨漏りの形跡があるかどうか、劣化が構造材にまで及んでいるかどうか、という視点で見れるところを確認していきました。
外壁は、主に海風を受ける部分、中庭の湿気が多い部分で劣化が見られました。
屋根は最近葺き替えしたようで、劣化はありませんでした。
![]() 1階小屋裏 |
![]() 2階小屋裏 |
![]() 床下外周部 |
![]() 床下内部 |
小屋裏は丸太梁で構成され、雨漏り等もなく、良好な状態。
床下は基礎らしいものはなく、外周部にのみ延べ石と土台が見られ、内部は土の上に束がのっている状態でした。土はサラサラとしていて、乾燥した海砂のようでした。
町家物件の検討
![]() 昭和初期の町家のプラン |
![]() 大正期の町家のプラン |
町家の購入前、売りに出ていた町家を5軒ほど内覧し、金額や状態のいいものを選んで2軒に絞り、あとは家族の要望を満たすことができるかどうか、ワクワクした暮らしができるかどうかの視点で検討しました。
図面が全くなかったので、内部寸法を計測、改修のラフプランの2軒分作成しました。2つの長所と短所を洗い出して、最終的には昭和初期の町家を購入することに決めました。
建物調査 ②詳細調査
![]() 地耐力の確認 |
![]() 内部の不陸・傾きの測量 |
【改修前】評点:0.10
1階 X:0.10 Y:1.36
2階 X:0.44 Y:0.84
購入後は実施設計に入るために詳細な調査を行いました。
スウェーデン式サウンディング試験の実施、内部不陸や傾きの測量、そして耐震診断を実施しました。
診断結果は1階の短辺方向で上部構造評点0.1、2階でも0.44となり、主に短辺方向の補強が必要であることがわかりました。
![]() |
![]() |
![]() |
![]() |
耐震計画
曳家・揚屋を行わずRCベタ基礎に全面改修
続いて、改修方法についてお話します。まずは建物の基礎についてです。既存の基礎は無く、延べ石や置き石でしたので、基礎は全面改修としました。建物を長く持たせるため、床下点検スペースの確保、不同沈下対策、湿気対策を考慮してベタ基礎を採用しました。
主構面を意識して短辺方向の基礎立上りを連続させ、長辺方向真ん中に通した立上りの背骨から枝が延びるようにして基礎全体の骨格を計画しました。
外周部は既存延べ石のままとし、アンカー打の上、スラブ配筋と緊結し、一体化を図りました。
外周部の柱脚部には基礎と接合するための金物を製作し、10KN以下の引抜力のみの負担となるよう、全体の耐力壁の壁倍率を調整し、応力のバランス化を図りました。
![]() 支保工で屋根を支える |
![]() 基礎全面スラブ配筋を実施 |
![]() 製作金物:10kN以下で使用 |
![]() 柱脚浮かせてスラブコンを施工 |
こちらは基礎の施工写真です。曳家・揚屋は一般住宅の改修コストでは費用が膨大すぎるため採用出来ません。そこで、外壁はさわらず、内部をスケルトン化し、添え梁や支保工で上部構造を保持した上で基礎の配筋を行い、コンクリートを打設しました。
耐震計画については、耐震診断を行い、改修前の評点0.10から1.03まで向上させる耐震改修を行いました。長辺方向は壁が多かったので、短辺方向に面材耐力壁を分散して配置し、一部が強くなりすぎないようバランスよく計画しました。柱頭柱脚などの接合部についても、全数金物補強を行いました。
![]() 短辺方向に構造用合板貼の耐力壁を設置。梁には鋼製火打を入れ、水平剛性を高める。 |
![]() 低コスト工法を採用した耐力壁。土壁をアルミアングルと構造用合板にて補強する。 |
![]() 既存梁の耐力が不足するところを添え梁にて補強する。 |
![]() 腐食した土台はヒノキ材に交換し耐久性を高める。 |
1階床は剛床、2階床は既存根太に構造用合板を釘打ちし、屋根は火打材を追加して水平剛性を高めています。既存の柱梁は立派なクサマキ材だったのでそのまま使用し、一部耐力が不足するところは添え柱・添え梁で補強、土台大引はヒノキ材に交換するなど、構造耐久性を高めました。
温熱計画
|温熱性能|
続いて、温熱性能についてお話します。
UA値については、無断熱の改修前の数値、3.11から改修後は0.65へと改善し、目標としていた等級4の数値を達成しました。また、一部将来工事として見送った縁側天井の断熱を行うことによって、数値はZEH基準まで高まると計算にて確認できています。
今回この町家では、隣地との距離やコストの関係で、室内側からの断熱を行いました。基本的には、屋根・壁・床をまるっと途切れることなく断熱し、開口部は全て断熱サッシに交換しています。外皮が断熱の区画ラインとなり、建物内に極端な温度差が生じないように計画することで、冬場は家じゅうどこにいても温かい町家となりました。
|断熱材について|
![]() |
![]() |
断熱材は乾式を採用し、既存土壁にはボード系断熱材、新設の外壁には高性能グラスウール断熱材を充填しました。全ての部位において、内部結露計算を行い、壁内結露が発生しないように厚みや仕様を決めています。
![]() 気密測定の様子 |
![]() 施工の様子 |
![]() テープや隙間材で気密施工 |
気密測定試験を実施し、測定会社の方と工務店、施主が協力してすき間を埋める作業をしました。町家の意匠を活かすため、既存の梁や柱を現しにする部分も多かったのですが、現場員みんなで気密の弱点を体験的に確認し合い、C値は測定不可から1桁台まで下がりました。
【気密化】現場監督・奥田隆行(株式会社夢工場)
築年数80年の古い町家建築の気密化工事を施工した。建物は曲がりくねった丸太梁や、ねじれと傾きのある柱でつくられ、さらに真壁で化粧として現す部分が多く、気密化が難しい建物であった。気密層が一体とならない個所が多く、気密テープの張り代のない部分はコーキングを利用したりと施工性の難しさと工夫の必要性を感じた。
化粧の梁や柱を覆って大壁にするほうが気密は取り易いが、それだと町家の良さを台無しにしてしまう。伝統的意匠を守りつつ気密化するのは至難の技であったが、気密を測定しながら空気の抜ける部分を探し出し、設計者と同じ目線で少しでも暖かい家にするためと思いながら、最後には職人と設計者と施主でウレタンスプレーと気密テープを持って隙間をふさいでまわったのはいい思い出だ。
仕上がった家はペレットストーブが配置され、冬場の訪問時には、「北村さんの家、暑すぎやわ!」と冗談交じりに言った記憶がある。町家を改修して住まうにしては、十分なくらいに暖かく快適な家に仕上がったのではないかと思っている。
バリアフリー計画
既存階段は急勾配で踏面が小さく危険でしたので、段鼻に木材を追加し、そこに溝加工を施してノンスリップを追加しました。新旧木部の明度差を利用し、視覚的に踏み外し対策とするなど、勾配は変わらずともできることを実施しました。
度重なる改修の跡で、室を移動するごとに床段差ができていたので、改修では床レベルを階ごとに統一し、日常生活空間内の段差を解消しました。それでも段差ができる玄関と階段については、手すりを設置しました。
そのほか、内部空間はなるべく区切らず建具は全て引き戸を採用する、照明スイッチを床面からH900に設置しこどもでも利用しやすい高さとする、建物をまるっと断熱することで水廻りと居室との温度差を解消し風呂上りの体への負担を軽減する、車庫床ほうき目仕上げ・ポーチ玄関床は豆砂利仕上げとし滑りにくい仕上げを採用するなど、だれもが使いやすいように計画しました。
維持管理・劣化対策
|床下メンテナンススペースの確保|
床下に潜って配管の点検・交換ができるよう、メンテナンススペースを確保して1階床レベルを設定しました。そうすると、1階居間では既存床面をH100㎜あげることとなったため、和室の造作をそのまま利用すると鴨居の高さがFL+1660となってしまい、家族の移動に支障がでることに…。はじめはそれも仕方ないと思っていましたが、現場からの提案により、内部柱の柱頭をすべて100㎜カットし柱頭仕口を加工、和室の床の間や書院、欄間などの造作材をがっさりと上げて床下を確保することとなりました。それに伴って、天井高さ確保のため既存天井材を撤去、2階床の既存根太と新設の構造用合板床が現しになる意匠が出来上がりました。現場変更は労力を使いますが、粘り強く検討する現場の方たちの姿勢に心を打たれた出来事でした。
【鴨居が頭に当たる】現場監督・奥田隆行(株式会社夢工場)
曳家工事を行わない本工事は、設計上、床下メンテナンススペースの確保で床高さが当初よりも上がるため、書院の鴨居の高さが低くなり、多少くぐりながら生活するという設計であった。かといって鴨居を撤去するのは、家の軸となる場所を壊すことになり、コストも増大するため、生活に支障がでるのはやむを得ないとあきらめられていた。
しかし、「自分が携わる建物でそんな都合の悪いくらしはさせない」という大工の一声で、問題の大きな書院全体を数本のロープでくくりながら、柱をいったん下げ、その場で柱のホゾを作り再度数人にてロープで上げるといった芸当をやり遂げた。このような工事は職人の技術力と知識に助けられることも多い。とてもよいチームワークで施工ができたことを大変誇りに思う。
|劣化対策とメンテナンス|
![]() 防湿シート敷込の上、基礎スラブt150打設 基礎内や建物内に湿気が上がることを防ぎ不同沈下対策とした |
![]() 土台大引は国産ヒノキ材+防蟻処理 既存の水廻りの構造材は全て新規材に交換 |
![]() 聚楽上塗りのみを落として珪藻土塗を施工 湿気カビ対策として調湿性の高い仕上を採用 |
![]() 住まい手が扱いやすい左官材を選択 セルフメンテナンスを可能とし、 手に入れやすい地場の能登産珪藻土を採用 |
![]() 外部木建具は耐候性のある米草材を採用 海風や海砂の影響が大きいため、 風上には建具を何層にも計画し、 ポーチをバッファとした |
![]() 中庭に透水パイプを埋設し湿気防止 厨房の雑排水桝を中庭に設置、排水管は コンクリートに埋設せずスラブ上に配管 維持管理・更新性をUPさせた |
レーダーチャート
改修前後の性能比較です。
耐震性・温熱性については、施主の要望でもあった、現代の基準にまで高めることにより、目標としていたレベルまで性能向上できました。省エネルギー性、耐久性については、設備や材料の更新において、これからも長く使っていけるものを選択することにより、性能が向上しました。火災時の安全性やバリアフリー性については、古い町家の形状を活かしながらの改修であることから、どうしても難しい部分もありましたが、工事の範囲でできることを検討し、向上するよう努めました。今後、すまい手の年齢に応じて、対応していきたいと考えています。
地域の方と珪藻土壁塗りワークショップを開催
自然素材である能登産の珪藻土を、すべての居室の壁仕上げとして採用しました。施工するにあたり、金石地域のまちのみなさんに参加していただく珪藻土壁塗りワークショップを開催し、まちの内外から20名を超える方々に参加いただき、340kgもの珪藻土を2日間で塗り上げました。
同時開催として、改修現場を撮影した写真展を企画し、町家に興味を持っている方々に対して改修のリアルを発信できるよい機会となりました。
町家改修の記録をまとめた冊子を制作
町家探しから調査、設計、工事監理、完成までの様子をまとめた冊子、
「小さな町家のはなし」を発行し、公共施設や町家情報館にて無料配布を行いました。
後日、冊子を見た方から、「町家暮らしをしたいと思っているが、何からはじめていいのか分からなかった。とても参考になった」、「寒さや暗さの問題があり町家暮らしを躊躇していたが、性能を上げられることがわかった」などの反応がありました。希望者には内見の機会を設け、改修後の温熱性能を実際に体験していただいています。
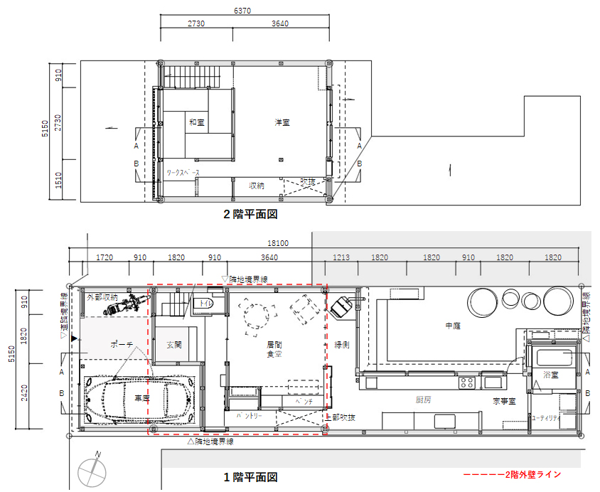
before・after
1階は縁側と台所の間の壁を取り払い、ワンルーム化することで視覚的にも空間的にも広がりを確保しました。暗さを解消するため、中庭を中心に居室を配置し、北側の安定した光を活かすゾーニングとしています。
また、和室をつぶして駐車スペースを確保し、玄関前にポーチと外部収納を設けることで、子育て世代でも暮らしやすい工夫をしています。
|改修後:1階|

縁側には大きな開口を設け、枠線を消した開口部デザインとすることで中庭を視覚的に内部へ取り込む工夫をしています。縁側は現在は障子を外し、居間と一体的に使用しています。
|改修後:1階|

厨房・家事室は窓枠と一体化した、一直線の長いカウンター天板で北側の安定した光を受けとめ、日中は昼光の明るさのみで生活することが出来るように計画しました。
|改修後:1階|

浴室から見た居間

浴室、ユーティリティはコンパクトに納め、フレームレスガラスでつなぐことで狭さを感じさせない工夫をしています。浴室の湯舟に浸かると中庭越しに主屋が見えます。
|改修後:2階|
2階は既存天井を撤去して丸太梁を現しにし、梁上をオープンにすることでおおらかなワンルームとしています。内部建具は既存を再利用し、将来はこども部屋としてフレキシブルに使用することも可能です。和室は既存の意匠をそのまま継承しました。障子をオマージュしたカーテンをかけるなど、現代のくらしに合わせながらくらしをたのしんでいます。
|改修後:2階|
2階南側は全面壁面収納としました。こちらは、町家の「トオリニワ」だった場所で、暗い1階部分に光を落とすという町家の構造を復活させたいという思いもあり、収納の一部を1階からの吹き抜け格子としました。2階開口部から入る光を1階に落としたり、1階のストーブの暖気を2階に上げたりと、わずか1畳のサイズではありますが、とても機能的に利用できています。
まとめ・最後に
古い町家の改修というと、伝統工法や職人技の継承を行う「復元」という視点が一般的で、市町村の補助金もそれを原則に設置されているものが多い印象です。しかしながら、そんな風情があると思われている町家生活の実際は、冬は極寒で暖房をしても隙間風が吹込み寒い、日中は暗く、部屋は狭いというような、「くらし」までを古いものにする必要があり、町家の賃貸物件も「寒さ・暗さが気にならない方おすすめ」というような注釈までいれないと苦情がでるほどのものでありました。今回の改修では、そのような町家暮らしについてくるイメージを一新することを目指し、若いひとにもこれなら住みたいなと思ってもらえるような、新しい価値を生むことを目標に取り組みました。
築80年越えの町家の温熱性能や耐震性を、現代住宅の基準まで高めるということは、新築が建つくらいのコストを要することが想定できたため、内部のゾーニングについては「最小限の手数で最大の効果を!」と目標にして計画を進めました。そのためか、自邸でないと受け入れられないような、北側中庭に面した居室配置や変形の空間プロポーションが生まれ、逆にそれらがこの建物の特長になったと感じています。
町家リノベーションの面白さである、伝統的な造作と新しい材料との調和についても、常に難しい選択の連続でした。工事着手時に内装材を撤去していく中で、想像もしていなかった太くて立派な丸太梁が現れたり、何層にも重なった改修の跡のなかに色っぽい漆喰壁が出てきたときは、果たしてこれを断熱材で隠してしまっていいものか、わたしがしようとしていることは設計者として正しいのかと、心が揺さぶられました。施主である夫や現場監督、大工の棟梁と何度も議論を交わし、今回の改修でしかできないこと、十数年後の仕上材料更新時期にできること、どうしても譲れない・保存したい意匠などを整理しながら、その都度軌道修正を行い、最善の選択をしてきたつもりです。出来上がった建物は温熱環境や構造耐震性を向上できたことはもちろんのこと、町家の伝統的な造作をうまく残し、新しさの中にどこか懐かしい、ずっと前から住んでいたような気さえする、家族の居場所になったと実感しています。
(写真・文章 北村陽子)
©Yoko Kitamura , jutakui
LINK
第39回 住まいのリフォームコンクール 独立行政法人住宅金融支援機構理事長賞「金石町家つなぎプロジェクト」 http://www.refonet.jp/csm/case/contest_39_02.html
第42回 石川建築賞受賞入選【住宅建築】「金石町家つなぎプロジェクト」https://www.iaba.or.jp/award/award-42.html
第55回 中部建築賞特別賞「金石町家つなぎプロジェクト」https://www.tkbc.jp/55_17.html
第4回 日本建築士会連合会建築作品賞奨励賞受賞 「金石町家つなぎプロジェクト」 https://www.kenchikushikai.or.jp/images/rengokaisho/new_awards_4th/awards_16.pdf
北國新聞2020年12月 朝刊掲載「住民参加し空き家改修 金石の町家再生モデルに 一級建築士・北村さん」
住宅医協会HP2024年2月 特別掲載【能登半島地震の被災地から】北村陽子さんからのお便り。 https://sapj.or.jp/kitamura20240119/
































































