住宅医の改修事例 №134 家族の時間を愉しむRenovation
竹ノ井 朋子(住宅医 /株式会社 三友工務店/ 熊本県)
|設計依頼~事前調査|
新築工事の見学会にご夫婦お二人でお越しになり、ご自宅を 建替えか リノベーション で迷っていると、ご相談がありました。工務担当等4名でご自宅に伺い、現地調査を行いました。
敷地は、閑静な住宅街にあり、南には公園、東に道路、北側には建替えたばかりの2階建て、西には建物と同じ年齢の平屋が建っています。
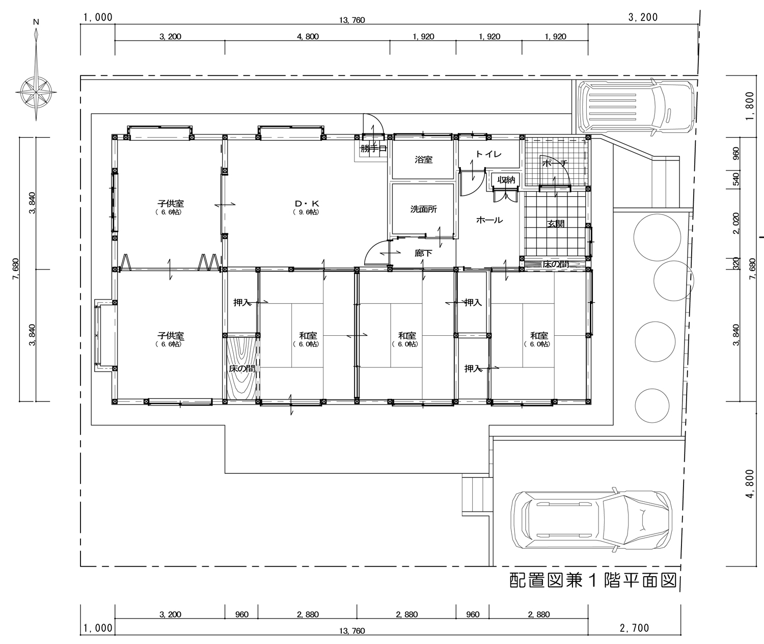
詳しくお話をうかがうと、お子様も巣立ち、ご夫婦の時間を愉しめる空間、お互いの趣味を程よい距離で楽しめる居心地の良い空間、冬暖かく夏涼しいおすまいをご希望で、下記の不満点をお持ちでした。
- 日頃は北側の寒いDKで過ごすことが多い
- 南に面する和室2間が利用しにくい
- 子供室を寝室として利用しているが、トイレまでの距離が遠い
- 北側駐車場は助手席のドアが開かないくらい狭く、使いにくい。
既存図面
地盤について
熊本地震での大きな被害はなく、地盤モールやハザードマップで近隣を調査し、地盤は良好という判断をしました。
調査結果
①基礎
![]() 建物基礎 |
![]() 外部モルタル部分に4㎜程度のクラックあり。 |
②外壁
![]() 建物外壁 |
![]() 塗装部分に白華現象あり |
③内部

床レベル・柱の傾き等確認。床レベル傾斜なし。柱の傾きなし。
小屋裏・床下・段差等の確認。各室の入口は、ほぼ段差あり。白蟻被害はなし。
![]() 小屋裏 |
![]() 床下 |
近隣調査
現地調査とあわせて、建物内部から外の景色がどうみえるか、周りの建物から改修する建物がどうみえるかを把握。
北側にあった脱衣室からも南の景色を眺められることを発見し、ここにも部屋を作り、南の景色を取り込むプランにし、離れて暮らすお子様2人が、帰省しても泊まれる部屋を確保しつつ、日頃はリビングの一部として利用する、多用途の和室としました。
和室北側に隣地の目隠し塀がありましたが、塀の高さを考慮し窓は地窓としました。調査内容のご報告と、ご要望と敷地の良さを活かすラフプランをご提示し基本設計契約を行いました。
|実施設計~ご契約|
打合せ期間中に、リノベーションの完成現場を見て頂き、どういった材料を使うか、耐震補強や断熱改修を行うとどう変わるか、数値では表せない使いやすい間取りの工夫点、空間を広くみせる技等をお伝えし、ご安心して頂きました。また、使える補助金を模索し、当初は 次世代省エネ補助金 を利用する計画でお見積り。しかし、ご予算をオーバーしてしまったので、長期優良化補助金を使用し、実施設計・耐震補強・断熱改修に基づき再お見積り。ご予算とご希望の調整を行い、本契約を行いました。
補強計画
調査内容をもとに 耐震補強 、断熱改修等 の検討を行いました。
①耐震改修
ほぼ図面通りに筋交いが入っていました。基礎も鉄筋が入っていたので、重心と剛芯に配慮しながら、上部評点1.5以上を目標に耐震補強計画を行いました。
屋根は、今後のメンテナンス等を考え陶器瓦に葺き替え、軽量化は図らないこととしました。
筋交い金物を取付け、必要な個所にバランスよく構造用合板で耐震補強を行い、耐震性能向上。
上部構造評点を0.84 → 1.9としました。
耐震補強 工事写真![]() 金物による補強 |
![]() 耐力壁の設置 |
②断熱改修
温熱環境の改善と気密性の向上を図るため、下記の施工を行いました。
UA値 1.17W/㎡K → 0.46W/㎡K(G2レベル)
・断熱材 天井 ロックウール155㎜ 壁ロックウール100㎜(熱伝導率0.038W/mK)
■床根太間断熱 カネライトフォーム 60㎜(熱伝導率0.024W/mK)
・サッシ アルミ複合サッシ+ペアガラス(LowE)
・気密シート
断熱改修 施工写真![]() 断熱材の設置 天井 |
![]() 断熱材の設置 壁 |
![]() 断熱材の設置 床 |
③劣化対策
防蟻処理を行いました。
![]() 防腐・防蟻薬剤塗布(外部) |
![]() 防腐・防蟻薬剤塗布(内部) |
クラックの補修を行いました。
基礎補修工事写真![]() 基礎モルタル クラック補修(外部) |
![]() 基礎クラック 補修(内部) |
④維持管理対策
天井及び床下に点検口を設置しました。
![]() 天井点検口 |
![]() 床下点検口 |
性能比較 before-After
写真 before-After
| 北和室からの眺め |

写真位置図(左:改修後 洗面所より、右:改修後 北和室より)
お引渡し
|Owner’s voice|
快適なすまいになり、感謝しています。近所の方から「三友さんは朝早くから夕方まで本当に丁寧に作業されていましたよ」と言って頂き、依頼して良かったなと思っています。家に入ると、外からの音も聞こえず、ほっこりとした暖かさで、とても快適です。
今日は朝からIHを使っておでんを作りました。キッチンも明るく作業しやすいです。本当にありがとうございました。
まとめ
リフォームは、長年住まわれているお客様が、その場所の良さと不便さを一番ご存じです。どこから風が吹いてくるのか、どこからの眺めがお好きなのか、丁寧にお聞きしながら、現地をぐるりとまわり、間取りを想像しながら、空が見える場所はないか、借景できる場所はないか、敷地と会話しながら紐解きます。
長年支えてくれた柱を見ると、これまでありがとうございます、素敵にリノベーションするので、これからもお客様のおすまいを支えて下さいと心の中でお願いします。お父様が大切に育てた庭があれば、その庭を眺められるように窓を設けます。天国のお父様見てるかなと思いながら。
リフォームには、そのご家族の歴史があります。結婚し、子供を育て、子供が巣立ち、様々な物語が詰まっています。その良さを活かしながら、10年、20年、30年後、ずっとずっとその先も、住み継がれるおすまいに、「幸せだね、リノベーションして良かったね」とおっしゃって頂けるために、これからも心を込めて、お客様と一緒におすまいをつくり上げたいと思います。
LINK
株式会社 三友工務店 https://www.sanyu-k.jp/
©SANYU KOUMUTEN INC , Society of Architectural Pathologists Japan




















































