住宅医の改修事例№115 ~持続可能な住まいの改修を求めて~ 熊本県「阿蘇の家」
桝本 侑加(住宅医 / 新産住拓株式会社 / 熊本県)

概要
・所在地 : 熊本県阿蘇市
・ご家族構成 : ご夫婦(30代) お子様(3名)、ご両親
・構造 : 木造2階建
・築年数 : 約75年(リノベーションお引渡し 2018/12/28)
・敷地面積 : 988.04㎡
・延床面積 : 243.80㎡
・省エネ地域区分: 5地域
・年間日射地域区分: A4区分
・暖房期日射地域区分:H4区分
■
2016年の熊本地震を機に建て替えを検討されましたが、祖父の代から三世代にわたって守られてきた住まいを壊すことなく残したいという想いがあり、リノベーションにて進めることとなりました。
また、ご自宅敷地内に納屋を改装したカフェを営まれており、地域とのつながりが持てるような仕組みづくりが建築的に提案できないか模索しながら進めてまいりました。
北側に広がる阿蘇外輪山の風景が魅力的で、住まい手が最も大切にされているポイントとなります。
建築地の気候風土
熊本県阿蘇市に位置する建築地は熊本市よりおよそ50km北東にある山地で、周囲は畑や田んぼに囲まれた長閑な地域となります。
阿蘇外輪山に囲まれ、標高約500mを超す山地型の気候となり、夏は比較的涼しく、冬は氷点下まで温度が下がり積雪も見られます。
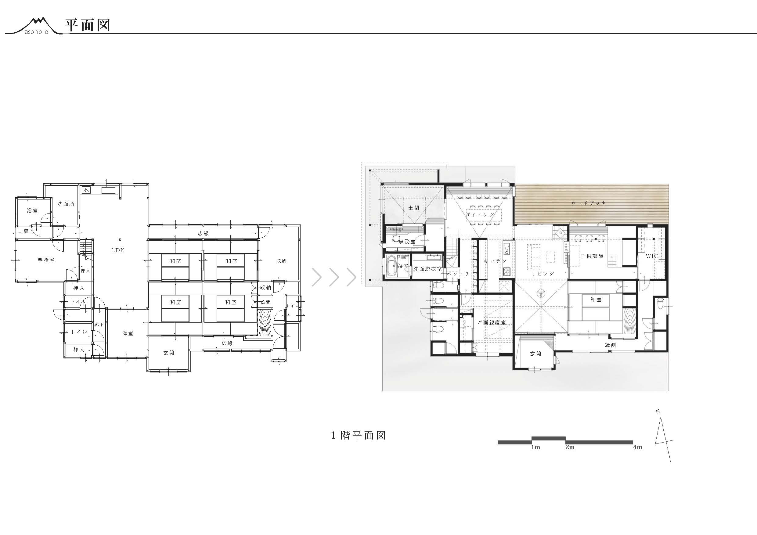
平面図
1階は田の字型プランを有効活用し、生活動線の整理を行いました。
北側の景色を取り込めるように間取りを考慮いたしました。
2階は既存の間取りを残し、
吹抜けを設けて1階とのつながりを持たせるようにいたしました。
立 面 図
レーダーチャート
断熱性・耐震性をメインに向上できるよう、計画を行いました。
優先順位がはっきりしていましのたで、他項目については現状より性能が上がるように工夫しながら進めました。
バリアフリー性については基準を満たしておりませんが、生活動線では段差ができないように計画しております。
階段の掛け替えについては既存階段からゆるやかになるようにして以前より生活しやすい提案を行いました。
断熱性能については、改修範囲を検討しながらコスト面と調整し進めました。

+
断熱改修
改修前は自然室温が外気温と変わらず、暖房機器によるエネルギー損失が目立ちました。
断熱性能向上により、薪ストーブ1台の熱によって冬でも半袖で過ごせるほど暖かくになりました。

2階寝室(施工中・断熱材)
耐震性能
地震にて被災しまいたが、幸いにも建物に傾きがなく既存構造材を活かした改修を行えました。
希望の間取りを考慮しながら金物や壁補強を計画いたしました。
【主な内部仕様】
天井:珪藻土クロス
壁等:珪藻土クロス
床等:オーク無垢板21㎜
■■■桧無垢板15㎜
※改修範囲外は既存利用
【上部構造評点】
改修前:0.23 ⇒ 改修後1.05
完成写真
家族だけの動線となっていた勝手口から訪れる人との交流が生まれる場へ。
敷地内カフェ入口近くに土間を配置し、ワークショップなどのイベントスペースとして活用します。
改修前和室
■■■■■■■改修後リビング
田の字型プランに繋がりを持たせ、広がりのある空間へ。
間接照明にこだわりました。

途中家族が集う場 / リビング
子ども部屋は既存梁を利用し、2段ベットをご提案しました。
和室は内装のみ改修し、ほぼ既存を利用しました。

2段ベット / 子供部屋 おもてなしの空間 / 和室
外観は既存の佇まいを残すことにより、次世代へと地域の風景を受け継ぐ役割となってほしいと考えました。

さいごに
阿蘇の家での課題は、『断熱性能の向上』だと考え取り組みました。
寒さ対策の性能向上は長く住み続けるために重要視されていましたので、改修後の変化を数値で表せることは不安解消となりリノベーションをされる決め手の1つとなりました。
そして北側の「阿蘇外輪山の風景」は、間取りを検討する際に一番のポイントとして工夫しました。
縁側越しに見ることが多かった風景を、リビング・ダイニングから直接楽しめるように窓位置を検討し、UA値を考慮して樹脂サッシを採用いたしました。
現在完工から2年半が過ぎましたが、暖かい冬を過ごされているとご主人の言葉を聞いてほっとしています。
休みの日の外出が減り、家族と過ごす時間が多くなり、奥様が焙煎するコーヒーを片手に窓の景色を眺めながら飲む朝が毎日の楽しみだとうかがい、お住まいで過ごす時間が増えて設計者としてうれしい限りです。
また、住まい手にとってかけがえのない風景を次の世代にとっても原風景として心に残り、次世代へとこの価値を受け継いでもらえることを願います。
今回の改修物件は私自身が設計を担当した中で最も規模が大きく、築年数もある大型リノベーションだったので戸惑うこともありましたが、ベテランの先輩方や大工さんにアドバイスをいただきながら住まい手のご要望を叶えるために真摯に取り組みました。
永く住み継がれるお住まいを目指して今後も改修スキル向上の為、住宅医の知識を取り入れた改修をご提案していきたいです。

イベント情報
新産住拓株式会社さんの 阿蘇の古民家リノベーション見学会 が 2021年10月23(土)、24(日)開催されます。
グッドデザイン賞受賞作品「阿蘇の家」、築150年リノベーション「茶蔵の宿」
イベントチラシ https://sapj.or.jp/2025sapj/wp-content/uploads/2021/09/asoA4-1.pdf
詳細は、新産住拓リフォーム事業部さんへ https://www.shinsan-reform.com/
関 連 情 報
-
-
- 「阿蘇の家」にてLIXIL制作のショートドラマが撮影されました。( https://youtu.be/dtgN8U9hHkM )
- 「隠れ茶房 茶蔵」阿蘇店では、阿蘇の風景とこだわりの料理が楽しめます。https://cafesakura-aso.com/
住所:熊本県 阿蘇市蔵原625-1 - 「茶蔵の宿」は、築150年の納屋をリノベーションした一棟貸の宿です。(2021年8月 オープン 施工:新産住拓株式会社)
-
















