住宅医の改修事例 No,100「新耐震以降[築浅]の木造平屋住宅の改修~大蔵の家」
報告者:水の葉設計社 /中野弘嗣
■改修概要
設計者:水の葉設計社 中野 弘嗣
施工会社:株式会社サン建築工房
所在地:福岡県北九州市
築年数:1987 年(昭和 62 年)4 月 築 32 年(改修時)
主要用途:一戸建ての住宅
規模:木造平屋建て
敷地面積:226.38 ㎡
延床面積:89.71 ㎡(27.13 坪)
調査設計期間:2019 年 5 月~8 月
工期:2019 年 9 月~12 月
■計画概要
□約 35 年前に造成された住宅地に建つ和風住宅の改修を行いました。
□元の住人は老夫婦2人で、ご主人が亡くなられた事をきっかけに奥様が名古屋の息子夫婦の元に引っ越すことになり手放された住宅だそうです。平屋の小さな住宅ながら空間を広く使えるように引き込み障子を多用するなど細部にこだわって造られ、また手入れも行き届いていて大事にされてきた住宅だと感じました。
□改修後の住まい手は3歳の男の子がいる 30 代の夫婦です。マンション生活は近接住戸に対して子供の足音などで気を遣うために戸建住宅への住替えを考えられていました。新築・中古含めて検討していたところに、ご主人の両親が住む実家に近い本物件を見つけ、インスペクションを行った上で購入し改修する事を決めました。

■調査
□建物調査は中古住宅購入前のインスペクションと、購入後の耐震診断の2回に分けて行いました。
□インスペクションは 2 時間程度で、主に劣化と耐震上の不具合の有無について調査を行いました。柱が比較的少なく梁の架構が事前の懸念事項でしたが、インスペクション段階で行った小屋裏の調査で、負担の大きい梁には鉄骨のハブマイヤートラス梁が使われていることが確認できました。
□インスペクションの結果を受けて購入を決断し、売買契約を行った後に2回目の調査として耐震診断を行いました。遠方のため一人で調査を行ったため、主に小屋裏・床下を重点的に調査し、結果、小屋裏に関しては水平構面や梁の継手・仕口の金物補強の必要性があると判断しました。反面、床下は基礎の立ち上がり高さも高く、鉄筋探査機を使った調査で基礎の鉄筋も確認する事ができ、基礎の改修は不要と判断しました。また、この耐震診断の際、断熱材の有無、既存の設備機器、床段差の有無など性能面の要素のチェックを一通り行っています。

■改修計画
住まい手からの主な要望は、
・改修予算 1,000 万円
・近所に気を使わなくて良いこと
・広く使える LDK 空間
・水廻り・設備の更新
・小屋裏収納を使いやすく(アウトドア用品なども置きたい)
□間取りは現状のまま大きく変えないことで改修費用を抑える方向性を最初に決め、古さが目立つ大壁の内装や設備機器は一新する一方で、古びたままでも趣のある続き間の和室や、将来の子供部屋を想定した玄関横の和室は今回の改修では触らないことにしました。建物外部は、劣化が見受けられた東面外壁以外は触らず、将来必要に応じて改修していくこととしました。
□昭和62年築の新耐震基準時代の建物ですが、耐震診断では評点 0.54 で倒壊する可能性がある建物と診断されたこと、また現地調査の結果、小屋裏の金物補強が必要と思われる箇所があったことから耐震補強は必須と判断しました。また、断熱は天井にグラスウール50mm があるだけのほぼ無断熱状態でしたので、断熱改修も同時に検討しました。
□北九州市の耐震改修補助金は旧耐震基準の建物のみ対象のため、長期優良住宅化リフォーム推進事業による補助金を活用することにしました。調査の結果、床下高さが確保されていて劣化対策工事が行いやすいことや、基礎も有筋で劣化がほとんどなく補強が不要である事が分かっていたため、増改築版の長期優良住宅の取得も可能と判断し、ハードルの高い認定長期優良住宅型の補助金 200 万円の取得を目指しつつ、まんべんなく性能向上を行う改修計画としました。

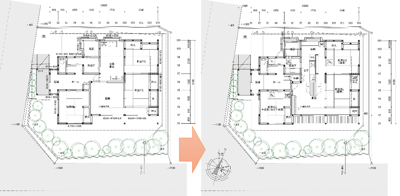
既存平面図 改修平面図
■増改築版長期優良住宅の認定
以下の増改築基準に適合させて、長期優良住宅の認定を取得しています。
・耐震等級3
・断熱等性能等級3
・省エネルギー対策等級4
・劣化対策等級3
・維持管理対策等級3
□耐震等級は耐震診断の評点 1.5 以上で等級 3 の認定となります。福岡県は地震地域係数 Zが 0.8 のため、比較的取得が容易でした。(設計上の構造検討は地域によらず Z=1.0 としていますが、認定は火災保険にも有利となる等級 3 で評価しました)
□断熱等級は新築基準同等の等級4(H11基準相当)には足りていませんが、断熱等級 3+省エネ等級 4 のルートで認定を受けています。
□増改築版の長期は申請数が少なく、技術審査を依頼した日本 ERI の担当者も審査するのは初めてだったそうで、評価書発行までの間に密にやり取りを重ねました。
■性能向上改修の内容

改修前後の性能比較
【劣化対策】(劣化対策等級 3)
○劣化箇所の修繕(東面外壁の張替え+通気構造化)
□高低差がある敷地のため建物東面は風雨に晒されやすい環境なのか、東面外壁は目透かし張りの板材に劣化が見られました。東面は外壁を全面やりかえる事とし、併せて通気構造化を行いました。

○土台の防蟻処理
・露出部分の防腐防蟻処理+維持保全強化
○浴室・脱衣室の防水措置
・浴室:ユニットバス化
・脱衣室:耐水合板下地
○床下換気孔の追加
・5m 以下に換気口の設置+維持保全強化
○床下
・小屋裏点検口の追加

【耐震】(耐震等級 3)
改修前の評点 0.54→改修後の評点 1.52 まで上げています。(Z=1.0 で検討した場合の評点は 1.21=等級 2 程度)
元々偏心バランスは悪くありませんでしたが、耐力要素は土壁のみで耐力壁不足だったため、安価に施工が可能な構造用合板を使って耐力壁を追加しました。

梁組の補強は、小屋裏収納の荷重が掛かる梁の接合部に羽子板ボルトを追加しました。鉄骨梁は構造設計者に相談の上、劣化や端部接合に問題無さそうでしたので既存のまま利用しています。その他、鋼製火打の追加や、継手仕口金物の追加などを行っています。

【断熱・気密】
屋根・天井・床の断熱や、改修を行う範囲での外壁の断熱、開口部への内窓の設置により、改修前の外皮平均熱貫流率(UA 値)2.42 W/㎡ K に対して、改修後は 0.97 W/㎡ K となりました。H11 基準の UA 値 0.87 W/㎡ K は達成できていませんが、熱損失は改修前の 4 割程度まで抑えられています。(冬の温度測定結果は後述)
□敷地は南向き傾斜地で南の開口部は視線を気にせず開ける事ができる、日射取得に有利な環境にあります。UA 値の不足分は日射取得によって補うこともできそうです。


断熱計画で頭を悩ませたのが真壁の外壁の断熱計画でした。
□土壁を残す部分は十分な断熱はできませんでしたが、改修で手を入れる外壁は少しでも断熱する方針として、改修後の大壁部は内張断熱としてせっこうボードを貼る前にスタイロエース20mmを施工しました。(20mmでもU値0.98W/㎡Kまで上げられるので無断熱の土壁U値3.11W/㎡Kに比べて熱損失は約3分の1に抑えられます)
□耐力壁を施工するために土壁を撤去した部分は高性能グラスウールを充填しました。また、小屋裏収納は内側に壁をふかし、全面を内張断熱で高性能グラスウール100mmを施工しています。
□外壁を改修した東面に関しては外張断熱としています。残りの未改修面は将来の外部改修時に東面と同じように改修することとしました。



竣工時に気密測定を行いました。
□建物全体の C 値は 6.4c ㎡/㎡、小屋裏収納を除外した C 値は 4.9c ㎡/㎡でした。
測定中は建物内を負圧にするので、漏気が生じている箇所からは空気が入ってくるため建物の隙間を特定する事ができます。未改修部が残っているので数値的には良くありませんが、漏気箇所を特定して隙間を埋める対策を行うことが今回行った測定の目的のひとつです。
□今回は、畳の隙間(荒板の隙間)や、押入内の土壁チリ切れ部分に漏気が確認され、隙間対策を行いました。和室がある場合に意外な盲点となるのは長押で、土壁を塗り込められない長押奥の部分から小屋裏の空気が流入してくる事が分かりました。

【省エネ】
省エネ改修の内容は下図の通りです。設備機器は全て一新しているため、基準値には届いていない UA 値を補完することができており、BEI=0.88 の等級4以上(等級 5 相当)となりました。高効率機器は長期優良住宅化リフォーム補助金の補助対象となるため、節湯水栓などの機器も積極的に採用しています。

【バリアフリー・防火】
□改修前は建具の敷居に 20mm 程度の段差がありましたが、フローリング部の床の仕上げは全て更新しているため、FL レベルを調整して敷居の段差を解消しています。
□その他バリアフリー対策と火災対策は、無理なくできることをやるという方針で、改修前よりも性能向上を行っています。

■改修前後の比較

建物の外観は全く変わっていません。カーポートと門扉を撤去し、アプローチは少しすっきりしました。

居間と台所・食堂を仕切っていた間仕切り壁を撤去し、DK として広く使えるようにしました。改修後は使われないであろう飾り棚は、PCスペースや勉強机として使える造付けのカウンターに変更しています。

和室は畳の表替え程度で、ほぼ既存のままです。普段は引込戸を開け放して DK と一体で使えますし、来客時は客間としても利用されています。

キッチンは背面に洗面所出入り口がある配置として、共働き夫婦の家事動線に配慮しました。

広い小屋裏収納を有効活用できるよう、改修前は食堂にあった収納式はしごを固定階段に変えて使いやすくしています。
■ 改修後の効果検証
2019 年 12 月に竣工し、その後の冬の期間中、温度計測を行わせてもらいました。
データを分析すると、LDK は朝方 13℃まで下がりますが、エアコンを ON にすると 30 分以内には 20℃近くまで暖める事ができているようです。気になる点としては、共働き夫婦のため日中は不在にしている事が多いようで、日中も夕方に掛けて夜間と同じくらいまで下がっています。リビング南面の掃き出し窓からの日射取得を増やすなどの工夫ができると、もう少し環境改善の余地があるかもしれません。
□引き続き、この夏の温度実測や光熱費のヒアリングもさせてもらう予定です。今回のように断熱改修が理想通りできないケースは少なからずあると思いますが、設計者として建物の使い方や暮らし方の提案をすることで、室内環境を良くするお手伝いもできるはずです。


■総括
□増改築版の長期優良住宅取得を軸に、性能向上を伴った改修を目指してきました。
200 万の取得を目指していた補助金の最終的な交付決定額は約 150 万円となりましたが、工事費の 1 割以上は補うことができ、耐震・断熱改修のランクを当初の想定より上げる事ができたのではないでしょうか。まだ若い家族なので、これからの家族の変化に合わせて家での暮らし方も変わってきますが、ライフステージに合わせて暮らしの面でも性能面でも今後もサポートをしていきたいと思います。
□私は住宅医スクール 2011 年修了で、その後もスクールにスポット参加したり、調査に参加したりして継続的に勉強させてもらってきました。改修においては、やる・やらないの判断をすべき点が多くありますが、その判断に必要な知識を住宅医スクールで満遍なく得られたことで、今回の事例では実践として、予算を抑えながら性能向上の改修提案をする事ができたと思います。


