住宅医の改修事例 №118 ~手を加え住み継ぐ夫婦二人の終の棲家
外山 秋人 (住宅医/とやま建築デザイン室/宮崎県)
今回ご報告する事例は現在共に80歳を迎え元気な毎日を送るご夫妻の住む家です。
お客様と知り合ったのは今から9年前のこと。この当時、報告者のわたしは40歳を迎え意を決し建設会社を退社し一人の建築士として建築設計事務所を開業させました。開業して間もない時期、仕事の依頼も少ない中で少しでも早く自身の実績積みのためにと町から木造住宅耐震診断の話しを頂いて、このお客様の住まいを紹介されたことが始まりでした。
住 宅 概 要
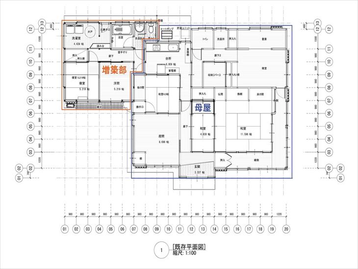
依頼を受けた建物は緑豊かな広い庭を有する敷地内にある落ち着きのある瓦屋根の大きな邸宅でした。住宅は束立て基礎及び土壁と伝統工法で先に建てられた母屋部分と、その後に在来工法にて造られた増築棟の構成。様々な方面に窓が多くあり、どこからか風が通る反面、建物奥行きが長いため陰影を感じる住まいでした。

建 築 D A T A
所在地 / 宮崎県児湯郡高鍋町
建物規模 / 木造平屋建て 延床面積 170.58㎡
築年数 / 母屋部 昭和15年築(築年82年) 増築部 昭和47年築(築年50年)
構 造 / 母屋部 伝統工法(土壁造り) 増築部 在来軸組工法
基礎 / 母屋部 足固めのある玉石基礎 増築部 コンクリートブロック基礎
耐 震 診 断
まず初めに行ったことは先程申し上げた町から受けた木造住宅の耐震診断業務でした。
診断を行ったのは平成24年7月のこと。この当時、すでに前事務所で50件近くの診断業務を経験していたため、診断については充分な経験を活かすことが出来ました。
![]() 母屋小屋組 |
![]() 土壁構造 |
![]() 母屋基礎(束立て) |
□

耐震診断を行った結果、既存の構造評点は0.38。
結果として現状では大きな地震が起きた場合倒壊する危険もあり補強の必要性が求められました。
□
診 断 か ら 耐 震 補 強 計 画 へ
耐震診断の結果より耐震補強の計画を立て見積もりを行うと全体の補強費用は650万必要であることがわかりました。計画書と共にそのことをお客様に伝えると、そこまで費用を掛けられない、とのことで全体補強計画は一旦据え置き、改修の糸口が見えないまま一旦計画は見送りに。。。
□
あ ら た め て 計 画 の 見 つ め 直 し
全体補強計画の一時見送りから一旦原点に返り、このまま何もせずに現状のまま住むことを続けるのか、または予算内で出来る範囲での計画を立て、その範囲での改修を目指すのかをお客様と共にお話し合いを重ねました。
話し合いの末、母屋部分は面積が広く費用も嵩むことから増築部だけの部分改修を行う方法へと向かいました。また、もう一つ気になっていたこととして家全体が非常に寒かったこと。そこで熱環境改善も含めて改修計画を立てる増築部についての現況調査を行うことになりました。
□
増 築 部 を 改 修 へ
□
母屋から廊下を通じてつながる既存増築棟。床面積は38㎡。部屋の構成は4.5帖の2間を南側に通路を中央に挟み、北側に脱衣室や浴室やトイレの他、内井戸のある洗濯室を含む平面構成。ここでお客様から示された改修工事の予算は総額で300万円。
床面積が小さいとは言え非常に限られた予算内で行うことが示され、改修の目的は最小限で少しでも今より構造では安心側へ手を加えること、そして温熱面では暑さ寒さ、特に冬の寒さを和らげるような施しを行うことへ向かいました。
増 築 部 調 査
![]() |
![]() |
![]() |
外部は杉の下見板張りに塗装仕上げの外壁。開口部は全てアルミの単体ガラス窓仕様。
調査により外壁の痛みや劣化は特に見受けられず健全な様子でした。
![]() 洋間4.5帖(収納部屋) |
![]() 寝室(4.5帖) |
今回改修を行うメインの二部屋は共に4.5帖の部屋。洋間は衣類やタンスが置かれ収納部屋として使われていました。寝室は元は和室であった部屋を床のみフローリングに作り変えた後、寒さのため再び置き畳を敷き寝室として使われていました。
![]() |
![]() |
![]() |
小屋裏現況。雨漏りや小屋組みそのものの劣化は見受けられず、構造面では健全な状況。
一方、屋根及び天井面共に断熱材は一切なしの現況。
![]() |
![]() |
![]() |
床下現況。増築部は母屋と変わり布基礎の造り。ただし部屋下はスラブはなく土壌が現れとなった現況。また、天井面同様、床下面も断熱は施されていない現況でした。
□
構造計画については洋間にふとん収納スペースを新たに設ける他は間取りの変更は行わず、既存壁の補強を中心に金物補強及び柱脚柱頭金物の設置を計画しました。ただし、部分改修のため数値向上については1.0を満たすことは出来ず、現状から出来る範囲での補強という範囲に留まる提案としました。その上で、シュミレーションソフトで補強モデルを作成し、耐震効果の具合を動画で確認しました。シュミレーションは既存部分は現況のままで増築部分のみ補強計画を入力。
結果、母屋部分は止むを得ず倒壊となりましたが、補強する増築部は倒壊せず現状維持の状態になり、本心では全て補強して差し上げたい旨を伝え、お客様にもご理解いただきました。
断 熱 診 断
断熱状況についてもサーモカメラを用いて現況を計測しました。
![]() |
![]() |
床表面温度11.2℃
![]() |
![]() |
壁表面温度11.8℃
![]() |
![]() |
天井面温度12.7℃
![]() |
![]() |
窓表面温度11.6℃
計測したのは2月5日曇りの日の朝。外気温はこの時8.4℃。部屋にはエアコンは設置されてはいましたが、調査時はエアコンはOFFで計測を進めたため、足元から冷たさと共に身震いをする寒さを感じながら計測。サーモカメラで室内表面温度を計測すると平均して11℃。既存の仕様で診断ソフトにて室温度をシュミレーションしてみると同様に室内温度は概ね11℃前後に。
お客様がご高齢であることもあり、これではヒートショックをいつ起こしてもおかしくないと改修の必要性を肌で感じました。
□
□
これから断熱改修を行う部分(黄色)とその他(灰色)と区分を付け、温熱シュミレーションソフトにてそれぞれの現況の評価を行いました。
外皮評価(UA値)は共に等級1という結果になりました。
□
□

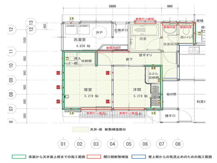
平面での断熱計画は色付された部屋部分のみとし、それ以外は既存のまま。断面計画では床には発泡ウレタン吹付けの断熱、壁天井にはグラスウール断熱とし壁上下には気流止めを施す計画としました(浴室は窓のみ断熱サッシに取り替え)
□
断 熱 性 能 判 定 (改 修 計 画)

改修計画仕様での評価等級。改修以外を含む建物全体の外皮等級は現況と変わらず等級1のまま。
一方、改修計画部分は等級3へ改善。また冷房期日射熱取得率は等級4へと向上しました。外皮含めて等級を望みたい思いではありましたが、この等級で見切りを付け改修工事へ向かうことになりました。
□
改 修 工 事 耐 震 工 事
![]() 既存壁 筋交い現況 |
![]() 補強筋交い新設 |
![]() 筋交いプレート・柱接合金物 |
![]() 柱脚部筋交いプレート設置 |
![]() 柱交換用パイプコーナー |
![]() 柱頭部パイプコーナー設置 |
![]() 既存天井解体 梁補強前 |
![]() 補強梁設置 |
![]() 壁合板受け下地組み施工(真壁仕様) |
![]() 構造用合板壁 補強 |
![]() 梁受け箱受け金物 |
![]() 箱受け金物設置 |
![]() 柱交換用パイプコーナー |
![]() パイプコーナー設置 |
新設筋交い、合板壁補強及び、軸組と梁構面をそれぞれの金物を用い補強を施しました。
断 熱 改 修 工 事
![]() 壁天井GW断熱材 |
![]() 断熱材厚み計測 |
![]() 壁下部気流止め木材設置 |
![]() 壁上部気流止め木材設置 |
![]() 壁上部現況 |
![]() 気流止め用GW断熱材設置 |
![]() 壁GW断熱充填 |
![]() 壁GW断熱充填 |
![]() 天井GW断熱充填 |
![]() 天井裏より隙間を失くすように充填 |
![]() 既存窓障子解体撤去 |
![]() 断熱窓枠設置(カバー工法) |
![]() 窓周囲ウレタン断熱充填 |
![]() 断熱窓設置完了 |
![]() 脱衣室断熱用内窓取付け(窓はそのまま) |
![]() 断熱用内窓(ポリカ引戸)設置完了 |
![]() 浴室断熱窓設置工事 |
![]() 断熱窓設置完了 |
![]() 床下断熱工事(現況:断熱なし) |
![]() 断熱工事着手 |
![]() ウレタン吹付け作業 |
![]() 吹付け完了 |
![]() 廊下/洗濯室 断熱内戸設置 |
![]() 断熱内戸(ポリカ引戸)設置 |
工 事 完 了
温 熱 検 証
改修後の初冬に温熱環境の改善効果の確認のために室温を計測しました。

(11月下旬 朝8時 外気温5℃) ※改修前計測時の外 気温は8℃
サーモカメラ室内表面温度計測 ※計測条件:前日夜から暖房なし
(※サーモカメラ見え方:オート設定のため改修前後の色味が似て見えますが表面温度が上がった事を数値℃より確認する事が出来ます)
![]() ↑改修前 廊下床 11.2℃ |
![]() ↑改修後 廊下床 14.8℃ |
ウレタン吹付け断熱
![]() ↑改修前 部屋床 11.2℃ |
![]() ↑改修後 部屋床 14.7℃ |
ウレタン吹付け断熱
![]() ↑改修前 部屋壁 11.8℃ |
![]() ↑改修後 部屋壁 14.7℃ |
HGW16充填断熱
![]() ↑改修前 窓(単板) 11.6℃ |
![]() ↑改修後 窓(複層Low-E) 13.2℃ |
複層Low-E窓
![]() ↑既存脱衣窓(単板) 5.9℃ |
![]() ↑改修後 中空ポリカ内窓 11.1℃ |
既存窓+内窓新設
![]() ↑既存天井(無断熱) 12.7℃ |
![]() ↑改修後 天井 15.2℃ |
HGW16充填断熱
北側洗濯室(改修見送り室=無断熱室・単板ガラス窓) ※同日撮影
![]() ↑既存窓(単板ガラス) 7.6℃ |
![]() ↑壁表面 8.7℃ |
室表面温度計測の結果、改修後は部屋内をとりまく全ての面で改修前の温度から2℃~3℃ほど室温が改善されていました。また改修を見送りした無断熱の洗濯室との表面温度比較では窓部分は5.6℃の上昇、壁は6℃高くなりました。
本来であればこの洗濯室まで含め断熱改善出来ると良かったのですが。。。
就寝スペースと洗面コーナーについては改修前の調査時にあった体温を奪うような底冷えや冷え込みは解消し寒くない室内環境に変わりました。
ま と め・反 省 点
今回の事例は300万円という限られた予算の中でどのように現況から住居環境を改善していくか、という命題に向き合う改修だったと振り返ります。正直、設計者として母屋部分の改修が見送られたことや基礎補強も出来なかったことなど「予算が許せば…」と計画中に度々思いに至ることはありましたが、それは住まい手様も同様の想いでした。その中で改修するエリアを就寝と水回りという限定的な範囲に留め、間取りの改修も行わない(収納の場はプラス)とし、耐震や断熱の回復を主体とした改善は住まいの健全な部分を見直す機能回復的な改修だったと思います。
その甲斐もあり工事後の住まい手様から頂いた言葉からは「夏にあまり室内に熱が籠もることがなくエアコンの効きも良くなりました」や「冬に底冷えがしなくなりました」と温熱面での改善の感想を頂けたことは、私自身も改修前の現調時に痛感していたことであり、大きな実感に至りました。
改修は新築にない面倒や苦労が伴いますが、最終的に住まい手様が喜ぶことになれば、住宅医の一員として励みにもなりまた幸いに思います。

































































































