住宅医の改修事例№169 築49年、実家の耐震・温熱・バリアフリー改修 ~3世代の暮らし
冨田 貫之(住宅医 / 石山テクノ建設(株) / 京都府)
© 2026 石山テクノ建設(株)
ストーリー
3世帯のご家族が愛着ある実家で暮らすために耐震改修やトイレ等のリフォームのご相談があったそうです。今回の改修で、おばあちゃん、お子さん、お孫さんが快適に暮らすために必要な「耐震・温熱・バリアフリー改修」や収納の工夫なども予算内で見事に計画、実現されました。耐震や窓リノベの補助金も活用され、住まい手のご負担金額は 約1,000万円に抑えられています。(2025年 竣工時)
改修後のインテリアは「大きく変えない」おばあちゃんが安心でき、建物の歴史に寄り添う事を大切に改修されました。 (住宅医通信編集部)
既存建物調査
建物詳細調査は2回に分けて実施した。1回目は2025年2月、確認申請図書(住宅金融公庫仕様)および耐震診断書が残っていたため、それらの照合および耐震診断を行った。2回目は[同年5月]改修計画をもとに床下と基礎および小屋裏等の調査を行った。洋間の室温が低く、調査が2月であったこともあるが、外壁や窓の表面温度は4.1~8.5℃であった。
室内 |
温熱環境(2025年2月・1F洋間)![]() 全体的に表面温度が低く、特に窓が弱点 |
【 内部 】
建物は、1977年 新築で確認申請書等が残されている。一部の工事を除き、現在まで大規模な増改築は行われていない。玄関にはシルバーカーが置かれ狭く、後ろ向きに移動している。1階トイレの開口部が狭く、70㎜段差あり。居室から離れている。浴室はユニットバスに改修済で段差なし。
玄関:シルバーカーなどが置かれている |
トイレ:間口が狭く またぎ段差あり |
【 小屋裏・床下 】
改修計画 をもとに床下と基礎および小屋裏等2回目の調査を行った。確認申請図書とは異なり、基礎は無筋であったこと、また、ケミカルアンカー設置の際と思われる基礎の欠損がみられた。小屋裏は健全な状態であり、横架材は金物で緊結されていた。
小屋裏![]() |
床下![]() |
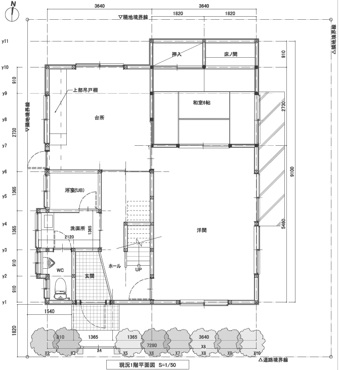
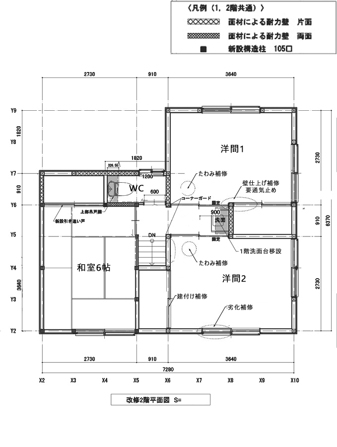
プラン
Before![]() 既存 1階平面図 |
■ Before ■ ![]() 既存 2階平面図 |
After![]() 改修後 1階平面図 |
After![]() 改修後 2階平面図 |
▶ 改修後 平面図 クリックで表示 © 2026 石山テクノ建設(株)

改修後 部分詳細図 © 2026 石山テクノ建設(株)
計画について、
現在、母と長女の二人暮らしで、母はシルバーカーを利用している。来春、単身赴任の二女と男児2人が加わり3世代世帯となることを機会に、耐震改修とトイレ等のリフォームが主目的である。
改修目標は、耐震化(上部構造評点1.0以上)、3世代世帯リフォーム(1階トイレ移設と2階トイレ洗面増設)、予算(1100万円)とした。
レーダーチャート 既存建物の性能は?
Before 事例№169 住まいの診断レポート 改修前 |
Before ![]() |
ご依頼内容は耐震改修。既存建物の6つの性能は耐震性能がもっとも低い。
性能向上改修の検討
耐震性能を向上させる。
部分開口構造用合板補強工法(床解体なし・天井部分解体)+柱頭柱脚金物
・STEP1 リフォーム部(1Fトイレ・WIC、2Fトイレ)を重点的に補強
・STEP2 断熱改修も考慮し、1F洋間(リビング)を補強
・STEP3 バランスに配慮して、押入等を部分補強
After(計画) 図:事例№169 耐力壁(ホームズ君耐震診断Pro Ver.5使用) |
Before 改修前の上部構造評点は、0.20「× 倒壊する可能性が高い」図:事例№169 一般診断法(ホームズ君耐震診断Pro Ver.5使用) |
After 改修後の耐震診断は精密診断法1により実施した。![]() 改修後の上部構造評点は、1.03「〇 一応倒壊しない」 図:事例№169 精密診断法(ホームズ君耐震診断Pro Ver.5使用) |
■基礎補修と補強
Before 基礎欠損 改修前の様子 |
After 基礎補修 ポリマーセメントモルタル |
Before 土台腐朽 旧トイレ 取替が難しい部分 |
After 土台修繕 エポキシ樹脂充填 |
After 土台修繕 鉄筋挿入 |
After 土台修繕 SRF工法:侵入できる範囲 SRF工法とは |
■壁面の耐震補強 低コスト工法
木造住宅低コスト耐震補強の手引き(愛知建築地震災害軽減システム研究協議会)を参考に、低コスト化と納まりに留意した。壁補強はリフォーム部分を中心に配置した。
![]() 図:木造住宅低コスト耐震補強の手引き より |
施工写真 壁面:低コスト耐震補強 |
施工写真 柱頭柱脚部:金物補強 |
補強壁の開口部補強にも、わかりやすい資料をつけ、現場で自主的に対応しやすくした。
家具の固定にも積極的に提案し、工事範囲外の建具修理や床補強も現場で対応し、喜んでいただけた。
断熱性能を向上させる。
部分的な区画断熱(ゾーン断熱)で予算を抑える
断熱仕様:等級4(H28基準)目標+窓リノベ内窓Sグレード
| After
After 断熱箇所 Before After 比較
温熱地域区分は6地域 |
![]() 既存屋根(天井)の様子 |
屋根(天井):古い断熱材を撤去 |
屋根(天井):断熱材の施工 |
![]() 既存壁面(外部側)の様子 |
既存壁面(外部側):古い断熱材を撤去 |
既存壁面(外部側):断熱施工の上、構造補強 |
| Before After シミュレーション
・快適性:暖房期における居室の体感温度の改善と洗面室浴室との温度差軽減 Before After シミュレーション
|
レーダーチャート 改修後の性能は?
After 事例№169 住まいの診断レポート 改修後 |
After ![]() |
6つの性能向上ポイント
- 耐久性:解体時に旧トイレ部分に土台の腐朽が見つかったため、取替およびエポキシ樹脂による修繕も追加した。
- 耐震性:当初の目標(上部構造評点1.0以上・3世代世帯リフォーム・予算)を確認しながら進めた。リフォーム部分を中心に部分改修をおこない、あわせて基礎の修繕とのSRFによる補強をおこなった。
- 温熱性:断熱改修は部分改修とし、窓(玄関物入をのぞく開口部)・床(1階居室)・天井(1階DK・洋室、2階全室)および外壁(耐力壁設置部のみ)に実施した。区画熱損失係数Q* 4.92 (H28年基準相当)。UA値1.16 (6地域 等級3)
- 省エネルギー性:取り換える照明器具は全てLEDとした。[シュミレーションでは]暖房時のエネルギーコストを4割低減。

- バリアフリー性:トイレは、居室近くに移設し、動線を短くするとともに、手すりを取付けるための下地を設けケアマネさんと相談し手摺を設置。引戸やバリアフリーに配慮した。シルバーカーの設置位置を計画した。(右写真:外構の塀や植栽を一部撤去し、シルバーカーや自転車置き場として活用)
- 火災時の安全性:火気使用室の壁,天井の仕上げは準不燃仕様とした。寝室となる4室に火災警報器を設置した。不要なガスコンセントは撤去した。
ご要望(耐震性・3世代世帯化・予算)を、相談・契約・調査・設計・見積・工事契約・工事の各段階で確認しながら進められた。
住み続ける住まいとして、オーセンティシティ(その家らしさ)も大切にし、デザインの中に落し込んだ。
工事契約後、キッチン更新等が追加されたが、計画時から反映できていれば、耐力壁の位置や断熱材の設置に考慮できたかもしれない。今後は隠れたニーズにも提案していきたい。
竣工写真
After

■
After

■
After

■

■
After

最後に、
私たちは、設計施工一体で住宅改修に取り組んでいますが、今回は、
・住宅医スクールで学んだことをチームで共有すること
・チーム力を客観的に評価すること
をテーマとしました。
調査においては、チェックシートを作成し、調査項目を明確にしてチームで分担しましたが、個々の経験を活かしてそれらの補完まですることができ、今後の改善につながりました。
設計においては、性能向上提案に専念するため、内装デザインは意匠設計者に協力してもらいましたが、結果、それぞれで施主に寄り添った提案ができ、日程的にもゆとりが生まれました。
施工においては、耐震工事費が前年度の実績に基づいた予算より低く抑えることができました。これは前年度の経験から、低コスト耐震改修に対する現場での理解が深まったからと考えています。また、解体時に土台の腐朽が見つかりましたが、現場で迅速に対応し、工程に影響を出さなかったのは、これまで培った現場での経験値のおかげです。一方、工事の手離れが悪く、また設備上のトラブルもでてしまい、引越後も細かな仕事が残ってしまったのは反省点でした。
設計と施工が一体であることのメリットは、チームとしても個人としても経験を蓄積して次に活かしやすいことで、デメリットはガラパゴス化の恐れがあることですが、これからは住宅医としての自負をもって、チームも成長させたい、と考えています。
冨田 貫之
Copyright © 2026 Tomita Kanji, jutakui
№169 築49年、実家の耐震・温熱・バリアフリー改修 ~3世代の暮らし
LINK
・イシテク耐震リフォームYouTube | 石山テクノ建設(株) ホームページ | facebook | instagram |

室内
玄関:シルバーカーなどが置かれている
トイレ:間口が狭く またぎ段差あり








改修前の上部構造評点は、0.20「× 倒壊する可能性が高い」
改修前の様子
ポリマーセメントモルタル
旧トイレ 取替が難しい部分
エポキシ樹脂充填
鉄筋挿入
SRF工法:侵入できる範囲 
壁面:低コスト耐震補強

















