住宅医の改修事例№168 暮らしと出逢う「はらっぱ」の家。築60年の性能向上改修で地域にひらく
大地 正規(住宅医 / 有限会社 梅村工務店 / 愛知県)

竣工写真:Pixel Photo Office 山崎裕樹
ストーリー
この建物は築60年、住居から賃貸住宅として活用され改修前は倉庫となっていました。様々な記憶が詰まったこの建物は工務店のモデルハウス兼事務所として性能向上改修が計画されました。
建物詳細調査では、構造材の樹種や寸法が丁寧に拾われ構造補強計画が行われました。また優れた断熱改修や空調計画が行われています。かつての住まい手さんからは「冬の寒さは格別」と言われていた建物は、地域に開かれ、性能向上改修の存在を知っていただく愛らしい建物となりました。(住宅医通信編集部)
既存建物調査
2024年11月、建物詳細調査を行いました。図面はなく実測により現況図作成、非破壊調査、一部破壊調査、構造計算を実施。下屋根部分の玄関及び北東切妻屋根谷樋板金の腐食、雨漏りと木部劣化あり、基礎は無筋コンクリートでした。二階小屋裏は雨漏り跡はなく、状態は良好。建物には昔の手仕事が多くあり、今ではなかなか手に入りにくい木材等が使ってありました。この時、丸太や柱をなるべく使っていきたいと思いながら調査していました。その後、解体時にスケルトンにし、再調査を行いました。
【 外部 ・小屋裏】
右の図(屋根伏せ図)の青い部分は、雨漏りが発生していた場所です。
全体の小屋組みの状態は良好でした。
下屋根の棟には雨が侵入し、草が生えていました。小屋裏には沢山のネズミやコウモリのフンが確認されました。
![]() 建物正面(南側) |
![]() 東側 |
![]() 屋根から見た谷樋部分 雨漏れで草が生える |
![]() 谷樋雨漏れ箇所 |
| 【 内部 】 この建物は弊社代表家族が住まいとして、その後賃貸や倉庫として使っていました。 ![]() 室内の様子 |
【 基礎・床下 】
床下は、川石で大引きを支えていました。一斗缶の独立基礎も数箇所ありました。外周にはクラックが数か所確認できました。基礎は無筋でしたが掘ってみると思いの他 地中に深い。
![]() クラックが数か所確認できました。 |
![]() 床下は川石で大引きを支えていました。一斗缶の独立基礎も数箇所ありました。 |
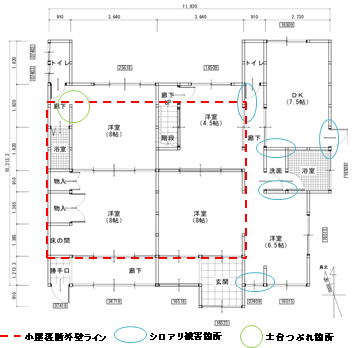
解体後の調査
青い丸がシロアリの被害。
緑の丸は着工前から部分的に建物が低い感じがしていた場所です。
土台が上の重さに耐えられずに3センチほど変形していました。
改修の時、シロアリ被害や劣化のあった部分は入れ替え補強をしました。
![]() 無筋ツボ基礎 |
![]() 風呂堺の内部間仕切り |
![]() 土台つぶれ箇所 |
![]() 通し柱シロアリ被害 |
改修前の建物性能
| Before
|
Before![]() 改修前:性能診断結果 バーチャート |
図面はなく実測により現況図作成、非破壊調査、一部破壊調査、構造計算を実施。
建物詳細調査の際に、すべての既存構造材の材種と最小寸法を拾い出すことで詳細な構造計算を可能とした。
Plan
Before![]() 改修前 平面図 1階・小屋裏 © Umemura Komuten 建物は、昔ながらの田舎の造りである。田の字型の間取りで、この地域では “十三尺建て“ と呼ばれる形式です。小屋裏までの高さが十三尺という意味です。 |
After 改修後 平面図 1階・小屋裏 |
After![]() © Umemura Komuten |

プランについて
1,バランスの取れた性能向上をする
・長期的な安心のため 耐震等級3相当 を目指す(許容応力度)
・快適に過ごすため断熱性能Ua値 0.46 以下(断熱等級 6)を検討
・断熱性能を確保するためと害虫の出入りをなくすためにも、気密C値 1.0 以下にする(新築の時は 0.5 以下目標)
・耐久性を高めるため結露計算をする
2,長期的な災害対策でのGL設定
・基礎土間レベルを現状GLより上げる
・基礎外周部分の水はけを良くする
3,外観のかたちをなるべく残し、町の風景がつづくようにする
改修後の建物性能を検討する
【 耐久性・災害対策 】
基礎土間レベルを上げることと、外構工事をすることで既存の状態より建物まわりの水はけをよくできた。屋根の形を整え雨漏りのリスクを減らすことができた。
屋根伏図 Before![]() 青線は雨漏れ箇所 |
After![]() 玄関を減築し屋根を片流れに |
Before![]() |
After![]() |
玄関部分を減築して谷樋を撤去し 切妻屋根から片流れに変更しました。瓦と板金の取り合い部分には小さい壁を設けて板金と瓦の縁を切りました。大屋根部分は状態が良かったのでそのまま残しました。
【 耐震性能 】
・基礎の強度向上にも着手し、許容応力度計算によって耐震等級3レベルを達成
・すべての既存構造材の材種と最小寸法を拾い出した
・基礎新設+アンカーボルトで壁の引き抜き力に対応
・耐力壁の増加により発生した引き抜き力に対し、新設した基礎コンクリートの重量が対応
・壁だけでなく基礎と小屋裏の床も含めた「躯体の六面」の強度を補強
・力の流れが素直ではなかった既存の梁組に対し、柱や梁を追加して荷重の偏りを解消
・田の字に耐力壁を配置し、門型を形成することで計算値以上に強度を向上
・改修前後で常時微動探査を行い、建物構造強度を比較
①軸組計画 After ![]() 「はらっぱ」の家(光荘) 軸組計画:ホームズ君使用 |
壁だけでなく基礎と小屋裏の床も含めた「躯体の六面」での補強を目指しました。
力の流れが素直ではなかった既存の梁組に対し、柱や梁を追加して荷重のかたよりを解消しました。
基礎までなるべく短い経路で力が落ちていくように設計しました。
外壁周りの耐力壁は大壁納めで室内の耐力壁は真壁納めの耐力壁にしました。
②基礎計画 After![]() © Umemura Komuten 基礎伏図 |
新設基礎1 |
新設基礎2 |
新設基礎3 |
基礎工事が思いのほか大変でした。
土を出すのに人力では難しく、重機をいれて地中梁等の設置を行いました。
既設の基礎と干渉する部分は既設の基礎の横に地中梁を設置して右から左まで連続した基礎を作りました。
既存の土の天端をベースの下場として設定し土をなるべく搬出しなくてよいようにしました。
無筋でしたが掘ってみると思いの他 地中に深い |
既存基礎を型枠代わりに内側に田の字の基礎梁を新設 |
ガードホールダウンジベル・ガードアンカージベル |
③軸組計画
一本一本の柱や梁を測って図面を起こしました。材の最小寸法測り許容応力度計算での設計をしました。筋交の有無も確認出来ない場所もありましたのでわからない所は無しで計算をしていきました。梁の幅も105ミリ無いところも有り工事時に梁の巾を新規の材料を足して105ミリにした所もあります。
●
水平構面は既存の梁を取らずに新しい梁で補強しました。田の字に耐力壁を配置すること、壁と梁で門型を形成することで計算値以上に強くできたかなと思っています。水平構面を設置する時も既設の梁のせいが小さいために新規にて上に梁を加えて水平構面を設置しました。
![]() © Umemura Komuten 既存伏図 |
水平構面は既存の梁を取らずに新しい梁で補強 |
真壁耐力壁 |
門型梁補強 |
●
耐震性能( 結果と計測 )
今まで手を付けられなかった基礎の強度向上にも着手し、構造補強箇所(全体の8割程度)は、許容応力度計算によって耐震等級3レベルを達成しています。木構造における耐震性向上は、田の字に耐力壁を配置し、門型を形成することで計算値以上に強度も高めています。
改修前後で比較すると、上部構造評点は Iw0.16 → 1.64 となりました。また、常時微動調査では、建物固有周期が0.99(秒) → 0.13(秒)となりました。
上部構造評点 Before 図:改修前の上部構造評点工事前はIw0.16でしたが、 |
After 図:改修後工事後にはIw1.64にすることができました。 |
●
耐震性/常時微動調査 Before 工事前の調査では、建物の固有周期 0.99(秒) |
耐震性/常時微動調査 After 改修後の建物の固有周期 0.13(秒) |
【 断熱性能 】
内付加断熱で断熱等級7ですが、机上の断熱性能のみならず、通気層の確保や空調計画まで策定して、本当の意味での快適さ・エコ・耐久性を追求しています。
通気は、瓦屋根下の母屋間をそのまま通気層として転用できるように設計を行い、空調においては、空調負荷計算と必要スペックの割り出しや、送風口から目論見通りの暖気/冷気が出てくるかの風量測定なども行っています。
また冷房の空調室は、外周部とは接しない場所に区画するなど夏型結露にも十分な対策をしています。
After![]() © Umemura Komuten 基礎:ネオマフォーム 45㎜ 壁 :高性能グラスウール20k 120㎜ + 内付加断熱ネオマフォーム 45㎜ + 配線層30㎜ 屋根:セルロースファイバー(吹き込み) 200㎜※母屋下から 窓 :APW430(YKK AP) ドア:ユダ木工 超断熱タイプ |
![]() 壁:高性能グラスウール20k 120㎜ + 内付加断熱ネオマフォーム 45㎜ + 配線層30㎜ |
![]() 基礎:ネオマフォーム 45㎜ |
屋根:セルロースファイバー(吹き込み) 200㎜※母屋下から |
After 判定 : 断熱等性能等級 7![]() 改修後「はらっぱ」の家(光荘) ホームズ君(省エネ診断 エキスパート)使用 |
![]() 室内 |
【 省エネ性能・空調計画 】
照明は、多灯照明を計画し壁面の反射も検討し、奥まった部屋には欄間などで明かりを導く計画としました。
空調は、全館で夏も冬も各2台のエアコンで暖冷房を行います。冬は、床上に二台のエアコンを設置し、床下を通って土間空間に暖気が出てくる計画です。薪ストーブは当社の庭屋さんが伐採した木や現場で出る端材を有効に燃料とし活用する事で環境にやさしく、また災害時に役立ちます。
夏は、打合せ室の吹き抜け上部と別で小屋裏に設けた空調室から冷気が下りてきます。また冷房の空調室は、外周部とは接しない場所に区画するなど夏型結露にも十分な対策をしています。空調を考える時、断熱・気密はもちろんですが、構造壁や基礎の配置、床下エアコンの空気を送る際の根太の配置などの計画も行っています。
![]() 冷房用の空調室エアコン |
![]() 暖房用の床上エアコン |
【 バリアフリー性 】
・主要な居室の段差はすべて解消。
・今回は居住用ではないが東側の部屋を主寝室と仮定。
・浴室はなく、平屋であるため階段も評価外とした。
・アプローチから玄関ポーチにかけて段差があるが将来手すりを設置予定。
・便所は将来手すりを設置できるよう下地を入れている。
【 火災時の安全性 】
・屋根、軒裏はほぼそのままとした。
・外壁は防火性能を考慮した造りになっている。
・主要な部屋からの二方向避難は可能(事務室の出入口は一か所のため周知したい。)
・火災報知器は設置。
・消火器も設置。
・キッチンはIHとした。
【 環境性能 / 情緒的側面 】
屋根からおろした瓦および、床下にあった束石を外構に再利用して廃棄・新設による環境負荷を低減しました。庭は自然を再現するよう計画しました。
長い時間をかけて付着した獣臭や埃を除去するため、スケルトンにしたタイミングで木構造を丸ごと水洗いした。60年を経た木材も、再び「木の香り」が醸される生きた材料として復活。
新たに薪ストーブを導入。当社の庭屋さんが伐採した木から薪を作って暖房用燃料として活用。
既存の浴室のタイル絵を残して記憶を引き継ぐ。
天井の低いかつての仏間を吹抜け空間として改修。上の窓から光が降り注ぐ、明るい建物へと変化。
![]() 三州瓦を建物外構に利用 |
![]() 束石を建物外構に利用 |
![]() 既存欄間を吹抜手すりとした 新たな構造材は㈱山長商店さんのJAS認定材を使用 |
![]() 改修後:浴室タイル画はそのまま残した |
改修後の建物性能
After![]() 改修後:性能診断結果 レーダーチャート |
After![]() 改修後:性能診断結果 バーチャート |
改修の目的は事務所兼店舗として利用するにあたり、安心快適に過ごせるようにすることでした。耐震性能と温熱性能に特に配慮しました。リノベーション全体を通して、これまでの経験を活かし、“どう収まるか”を常に考え続けた現場でした。
photo
■
■
■
最後に
この改修では、既存の赤い三州瓦をモチーフにして、板金部分や断熱ドアのカラーをセレクトし、植生しているリンボクを外構のシンボルとして取り入れました。また床レベルが低い建物であることを踏まえ、中間領域はウッドデッキではなくストーンデッキを採用し地面からの湿気にも備えた。天井の低いかつての仏間を吹き抜け空間にすることで、上の窓からも明かりが降り注ぐ明るい建物になりました。自然を再現するようにつくった庭と合わせて、健やかな時間を過ごせる建物へと性能もアップデートする事ができました。
●住まい手 / 作り手としては、
昨年9月に事務所を移転しました。薪ストーブを朝付けると日中の日差しもあり暖房は夜まで不要です。(写真は改修前、室内はとても寒く皆厚着でした。)
この建物の工事がはじまるタイミングで三澤先生の基礎の講義を聴くことができ、勇気づけられ工事を進めていく事ができました。これからも機会があれば、積極的に取り組み、このような建物でお客さまが安心して快適な暮らしをできるようにしていきたいです。
大地 正規
Copyright © 2026 Umemura Komuten , jutakui
No168 暮らしと出逢う「はらっぱ」の家。築60年の性能向上改修で地域にひらく
LINK
・ 有限会社 梅村工務店 HP https://umekou.work/ | 梅村工務店instagram
●●●















改修後 平面図 1階・小屋裏






新設
新設
新設
無筋でしたが掘ってみると思いの他 地中に深い







工事前の調査では、建物の固有周期 0.99(秒)
改修後の建物の固有周期 0.13(秒)































