住宅医の改修事例№106~大震災を乗り越えた中古住宅を安心安全に住み継ぐ改修
報告者:山本和代(住宅医/一級建築士事務所 街角企画株式会社)

計画概要
神戸市灘区にある築 27 年の木造住宅の改修です。
新築時は夫婦+子ども 2 人でした。
1995 年の阪神淡路大震災を乗り越え、耐震や温熱環境に不安がありましたが、なかなか改善できず、設備の交換程度で過ごされていたようです。
その後、子どもたちが巣立ち、夫婦 2 人で住まれていました。
2018 年、息子家族の同居の話が持ち上がり、息子夫婦が建築主となり、改修計画が始まりました。
建物・改修概要
・所在地■■ :兵庫県神戸市灘区
・用途地域等 :第 1 種住居地域、第 5 種高度地区、準防火地域
■■■■■■■ 建ぺい率 60%、容積率 200%
・省エネ基準 :地域区分 6 地域
・築年数 ■■:1992 年(平成 4 年) 築 27 年(改修時)
・主要用途 ■:一戸建ての住宅
・構造規模 ■:在来軸組木造、地上 2 階建て
・延床面積 ■:110.70 ㎡→96.12 ㎡
・設計■■ ■:一級建築士事務所 街角企画株式会社 山本和代
■■■■■■■+ 山本建築設計事務所 山本幸司
建物の歴史・改修時期
・1992 年(平成 4 年)新築
・1995 年(平成 7 年)阪神淡路大震災
・その後、一部補修、給湯設備交換等
・2018 年(平成 30 年)
■■■■■5 月 建物調査
■■■■■6~11 月 設計
■■■■■12 月~ 解体
・2019 年(平成 31 年)
■■■■■1~4 月 改修工事
■■■■■5 月 入居
改修コンセプト
改修にあたり、以下を改修コンセプトとしました。
- 家族構成の変化による間取りの変更
子どもらが巣立った後は夫婦 2 人住まいでした。今回、息子家族と同居し、2 世帯住宅にするのが前提条件でした。
各世帯の寝室を確保するとともに、みんなで集うリビングダイニングで快適に過ごせるようにしました。
- 耐震性の向上
1995 年の阪神淡路大震災を築後 3 年目に受け、幸い外壁等の補修程度で済んだものの、その衝撃を受けたため、また同じ程度の地震が来ても、それに耐えうるとは限りません。
今後も長く住むため、耐震性を高めることは最重要条件でした。
- 断熱性の向上
大震災を受けてから隙間風が入るようになり、また、断熱材は少し入っていたものの劣化によりほとんど機能していないので、無断熱と同様の温熱環境でした。
高齢の夫婦、また小さなお子さんもいるため、冬は暖かく、夏は涼しく暮らせるようにしました。
- 木造住宅を長く使いたい、この地で長く住みたい
事前の調査で、床下や基礎、地盤等の状態が良好であることがわかり、木造部分を改修することで、今後も長く使えると判断しました。
この辺りは商店街にも近く、大変便利で住みやすい場所に立地しており、このまま住み続けたいという希望もありました。
LCC(ライフサイクルコスト)の面からも改修して使うことは適切だと考えます。
改修プラン
改修前-1F
![]() |
改修前-2F
![]() |
改修前-3F
![]() |
改修前は、片側(東側)に玄関、階段のある戸建住宅によくある間取りです。
1 階に居間和室、ダイニングキッチン、浴室、脱衣室、便所。
2 階に家族の寝室となる個室。
開き扉が多く、使い勝手があまりよくありませんでした。
3 階には部屋数確保のための細長い部屋(ロフト)がありました。
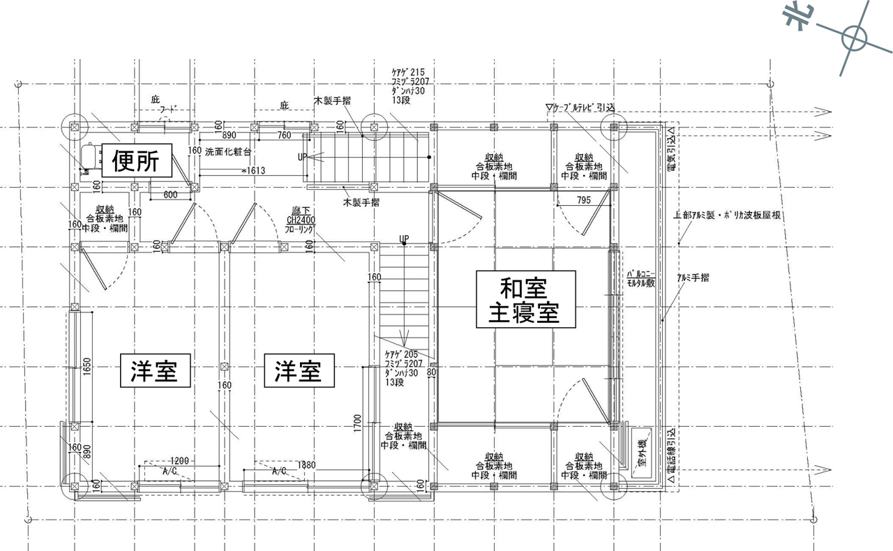
改修後-1F
![]() |
改修後-2F
![]() |
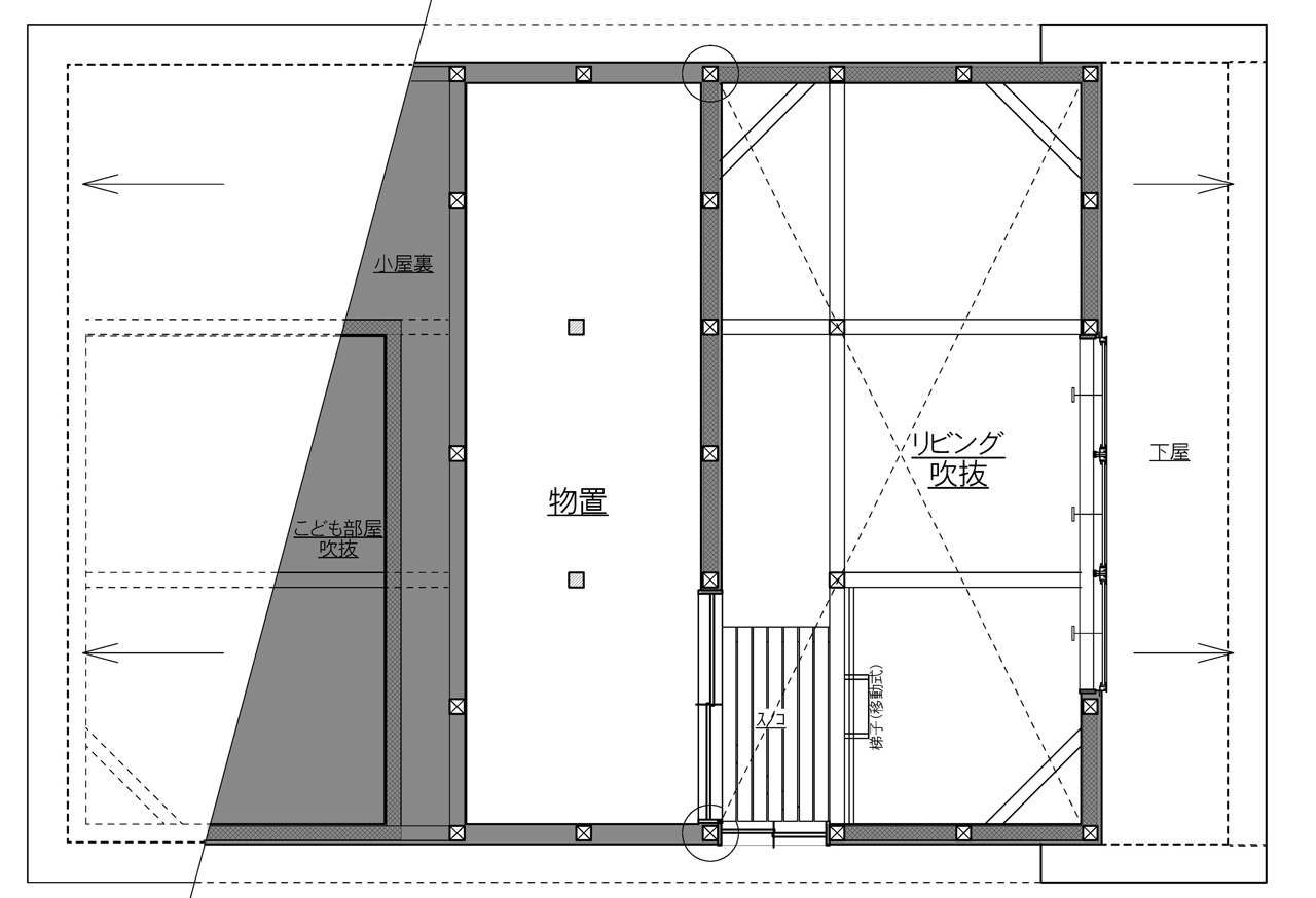
改修後-3F
![]() |
1 階に寝室等を配置しました。浴室は在来工法からユニットバスへ、脱衣室があった場所に移動。
2 階には間仕切りを少なくし、リビング、ダイニング、キッチンを一体空間としました。
3 階部分は一部を減築し、吹き抜けとしました。
改修内容
耐震についての具体的な内容を説明します。
耐震計画の条件
- 確認申請時と異なるプラン
確認申請時よりプランが若干異なっていました。耐震性には大きく影響はしないと考えますが、構造計算を行い、安全性を担保します。
- 大地震で受けたダメージ
前述しましたが、築後 3 年目で受けた大震災のダメージがあるので、部材、接合部の確認を含め、耐力壁を見直します。
- 既存条件
基礎部分:クラックも許容範囲(0.5 ㎜以下)。蟻害なし。
地盤:良好
今回、基礎や地盤が良好でしたので、改修費用が上部構造だけで抑えることができました。
耐震計画のポイント
- 上部構造評点について
既存は 0.38 しかありませんでした。目標は 1 以上。耐震計画では、1.04 を設定しました。
- 固定荷重と積載荷重について
3 階の一部を減築しました。
住まい方として、以前は 1 階リビング、2 階個室でしたが、改修で 1 階個室(寝室)、2階リビングにし、耐震壁を 1 階に多く配置できるようにしました。
影響は小さいですが、巣立った子どもらの荷物が長年ため込まれ、親夫婦の荷物とともに処分しました。
親の就活や実家の片づけについて、世間では問題になっていますが、改修工事を機会に取り組むことができました。
- バランスのよい補強
既存部分を残し、活かしながら、かつ全面的な耐震性向上のため、日本合板工業組合連合会「合板耐力壁マニュアル」による構造用合板による耐震化を行いました。
耐震計画図
改修前
![]() |
改修後
![]() |
改修前は、2 階柱の直下に 1 階柱がないのが多く見られました。耐力壁は外壁面に多く配置されており、南東角の玄関部分のY軸方向のバランスがあまりよくありませんでした。
大震災の地震力(水平力)を受けたことで、基礎~土台~柱の緊結が弱くなっていることを考慮して、大きい倍率の耐力壁を少し配置するよりも、少し小さめの倍率の耐力壁を多めにバランスよく配置することが重要だと考えました。
改修後は 1 階に個室(寝室)を設けて柱壁を多くし、上下階の耐力壁の配置に気を配り、上階の力がスムーズに下階に伝わるようにしました。
レーダーチャート
住宅の各性能を、グラフで表しています。改修前が赤、改修後が青で示しています。
![]() |
各項目の主な改善点
-
-
- 劣化対策
-
・屋根:浮き、外れがあったので留め直し。
・外壁:クラック補修し保護塗装。
-
-
- 耐震性
-
・日本合板工業組合連合会「合板耐力壁マニュアル」により構造用合板による耐震化、既存部材を活かしながら内部からの施工を行った。
・耐力壁の個々の数値を上げるのではなく、倍率は小さいが分散させてバランスよく配置した。
-
-
- 断熱性
-
・UA 値、既存=2.66W/㎡K から→改修=1.76W/㎡K へ。
・ηac 値、既存=7.2%から→改修=5.7%(隣棟遮蔽補正 3.3%)へ。
・断熱材施工、サッシを性能のよいものに一部取替え。
-
-
- 省エネルギー性
-
・省エネルギー性の高い設備機器の導入
-
-
- バリアフリー性
-
・玄関扉の有効間口寸法を大きくした。
・内部開口扉を引き戸に変更。
・バルコニーに出る段差をベンチと一体化し、心理的バリアを解消。
-
-
- 火災時の安全性
-
・寝室からの 2 方向避難を確保。
改修前、解体、施工中写真
- 改修前

南側道路より。
西側外壁は、震災直後、平屋だったため、西日が当たり、劣化激ししい状態でした。
- 解体・施工中

床下は、水回りエリアでは濡れていましたが、カビ、蟻害はありませんでした。
基礎は、クラックも許容範囲内で、良好でした。

内装材を解体したところ、少しの断熱材がぺしゃんこになっていました。

断熱材は高性能 GW14K t=105。

日本合板工業組合連合会「合板耐力壁マニュアル」による計算で、構造用合板を適切に施工しました。

小屋裏の軸組み筋交いが入っていなかった部分を補強しました。
完成写真

2 階、リビングダイニングキッチンを見る。
3 階を一部減築し、吹き抜けのある明るい空間となりました。構造材の柱や梁をそのままあらわしに。

ダイニングからリビングを見る。
かつて主寝室だった場所のサッシを複層サッシに取り替えました。

リビング。
ベランダに出る段差は 40 センチあり、以前はまたいで洗濯物を干すのに苦労していましたが、改修後はベンチを設けて、心理的バリアを緩和しました。

どうしてもとることのできなかった既存の柱を利用して、固定のダイニングテーブルを配置しました。
既存の柱や梁にあった、建物の思い出も残しながら、新しい家族の暮らしが始まりました。
考察・総括
- コストが厳しい中、工事項目の優先順位付けに大変苦労しました。
- 断熱性能の改善は少なかったものの、過ごす時間の多いリビングを 2 階に配置することで、数値よりも実感としての改善があったように思います。
- 今回、耐震補強の手段として、構造用合板による補強を行いましたが、建物内部からの施工であり、かつ全面的な耐震性向上には、有効な方法だと思いました。
大震災を受けた中古住宅で、住み続けるための改修でした。
予算が厳しく、大変苦労しましたが、既存部材をやむを得ず再利用した結果、家族や家の思い出が自然と引き継がれていったように思います。


















