住宅医の改修事例№104 シニア夫婦のための、築143年缶詰茅葺きの改修

髙橋勝(住宅医/髙橋勝建築設計事務所)
私が生まれ育った滋賀県甲賀市信楽町の古民家に今も両親が二人で住んでいます。
私を含め 3 人兄弟はみな大学に行かせてもらってから、そのまま他府県に生活基盤を築き、両親がこの家で二人暮らしになってからもう随分と経ちました。
■建築設計を生業としてようやく独立した私に、両親はこの古民家の改修の仕事の相談をしてくれました。しかし築 143 年の缶詰茅葺きである実家の古民家改修は勝手がまったくわからないので数年多忙にまかせて手を付けておりませんでした。でも両親の老いを意識し始めあせっていたとき住宅医スクールに出会い、学びながら性能向上改修に挑んで 2019年の年末に完成させる事ができました。
以下、改修に向けての要望ヒアリング→ 住宅医による調査及び診断 →改修計画 →改修工事と結果について説明していきます。住宅医協会の事例紹介による専門的なコンテツである事、web 掲載であり紙面の上限がない事を踏まえ、業務の順を追って詳細に記述致します。
■非常に長くなりそうですので興味のある部分のみを飛ばし読み頂いても結構かと思います。
相談の要点は次の5点でした。
・明治初期より受け継いできた茅葺きの母屋を今後も残していきたい。
・耐震性に不安がある。
・冬季の寒さをなんとかしたい。
・盆や正月、GWなど孫たちが帰ってきたときは今まで通り大勢で楽しく過ごしたい。
・予算は1千万円プラスαくらいで。
改修前の暮らし

土間中心の間取りで、断熱もなく冬は室内でも防寒対策をしてストーブから離れられない。

GWや盆は子供家族が孫達をつれて大集合。このときだけは賑やかで大切にしたい時間です。 正月は寒すぎて風邪を惹くので帰省しない決まりとなっていました。

田の字プランの茅葺きは今でも建具を外して広間にし、自宅で法事などを執り行っています。

茅葺きの隣には水回りや食堂、離れの増築が繰り返されてきました。昔ながらの民家らしく、南側に庭が広がり、今は多くの花を植えて楽しんで暮らしていますが、食堂の南側に浴室と物干し場があり家の中からは眺められないのが残念。
改修後
結局どうなったかの結論が、このまま順を追って説明すると、はるか後になってしまうため先にお見せしたいと思います。

南庭から見る。なにやら赤いキューブ状のフレームが見えます。これが構造的な解決を図った仕掛けです。詳しくは下記を御覧ください。

耐震改修後座敷です。前、奥座敷や縁側、納戸の境に耐力壁を付加する事なく、民家の従来の使い方である建具を外せば広間になる生活空間を守れました。

座敷から食堂をみる。増築棟の土間部分は座敷と同レベルの板間になりました。台所、洗い場、洗面、浴室を集約させ暖房空間で生活がコンパクトに完結するプランニングに変更しました。


もうどこの事かわからないと思いますが、詳しくはこれから説明する改修計画の詳細を御覧ください。
そして、今年の夏、改修後の実家に家族で遊びに行き、庭を愛でながら生活を楽しんでそうな両親を見て、良かったなあと思った次第です。


孫を遊ばせてご満悦なおじいちゃん。



改修後の食堂からは、南側の庭できれいに咲いている植栽や鉢植えが見えます。

これは想定外、新しい玄関の広いポーチを季節の花で飾り来客者を迎える生活に変わっていました。
敷地について
滋賀県甲賀市の信楽町は、滋賀県の南端に位置し、標高が高く雪は少ないですが非常に寒い地域です。毎年冬は関西の最低気温を高野山と競っており、私が小学生のときには霜柱やつららで遊びながら学校に通っていました。信楽焼が有名で、燃料が町内に生える赤松であり焼き物が最盛期のときは信楽中の山が剥げてしまうほどで、冬季暖房用の薪が十分でないときは本当に寒かったのだと思います。

敷地は大戸川の流れが埋めたてた谷あいの農作地と里山の間にあります。

既存缶詰茅葺きを山からみる。黄色部分が改修する建物。白点線は敷地範囲。
向こうの水田中央を大戸川が横切っている。

敷地は水田用の水路に囲まれており、戦後の道路舗装などで、周囲のレベルが上がるに合わせて揚屋を行ったそうです。

揚屋の後も周囲の道路は舗装でレベルが上り、周囲の道路より敷地が低い状態となっています。ですので、水路が溢れた場合は敷地に水が流れ込み私の生後でも少なくとも3度は大雨による水路の増水で床上、床下浸水を繰り返してきました。

+
住宅医による調査診断
両親の要望から、改修の方針として劣化・耐震・断熱・プラスアルファ(バリアフリーなどの暮らしやすさの向上)改修を念頭に調査診断は下記のメニューとしました。
・床下、小屋裏、内外観の視認調査による劣化診断(沈下量、柱倒れ診断含む)
・一般診断法による耐震診断
・改修前、最寒時期の温湿度測定(既存建物に断熱処理が一切ないことは調査済み)
・改修前の光熱費調査から一次エネルギーの割り出し
・既存建物の寸法計測
なお、調査時2019年1月はまだ私は住宅医ではなかったので、住宅医である仕立建築舎の平賀氏に協力頂き二人で調査をしました。また、耐震診断とそのための調査は構造設計者であるアトリエSUS4の能戸氏に協力頂きました。

私(左)能戸氏(中)平賀氏(右)
- 既存図と劣化の状態及びバリアフリー性の診断
今回の改修範囲は築 143 年の茅葺き部分と 50 年前に増築した在来木造部分の計 93.05 ㎡(約 28 坪)です。
断熱はなく、密閉性への配慮もほぼ見られませんでした。屋根外壁は 20 年以内に数度にわたり手直しが繰り返されており、緊急の改修が必要な部分はあまりありませんでした。
バリアフリー性については、生活の中心が広い玄関土間であり、座敷、風呂、トイレに行く場合、必ず 360mm の段差+下足への履き替えが発生してしまう事、トイレが離れにあり、玄関土間や座敷から遠い事、浴室が小さい。家事動線上の開き戸有効開口が有効 710mm と若干狭く、また段差 190mm がある事など、低評価となり、高齢者には暮らしにくい事が数値化された。



揚屋や床下浸水を繰り返した床下は束石や礎石が外れていたりと非常に不安定な状態でした。また、解体時の追加調査では増築部の在来浴槽周辺の柱の蟻害が確認できました。(写真は解体時)


茅葺き部と増築部の柱を共有している接合部分に大きな欠損や接合していないなどの構造上の大きな問題も散見されました。
- 耐震診断結果
耐震診断は一般診断法 簡易必要耐力偏心率法(使用ソフト:HOUSE-DOC)にて行いました。

基礎について、茅葺き部は玉石基礎、増築部はブロック基礎であり基礎Ⅲで評価していますが、北側用水路に面した通りは大きな水平力を負担出来ないとの診断でした。
耐力壁について、判定では評点 0.7 を切り「倒壊する可能性が高い」となっていますが、築143 年の茅葺き民家としてはかなり良い数字です。これは今回、金属板外壁を木摺下地と評価するなど実質の診断をお願いしたためです。その結果、古民家の割には壁がおおくバランスが良いとの評価となりました。
ただ、茅葺き主屋と増築部は高さ・重さが異なり別々に動きやすく、一気に崩壊するリスクがある事が指摘されました。

-
- 断熱性の診断
床壁天井とも全く断熱材が使われておらず、UA 値は 2.41W/㎡ K(H28 年省エネ基準は0.87)と、かなり大きな数値でした。
気密性の殆どない天井の上の小屋裏は垂木の面戸が無いなど、漏気量もかなり大きかったと思われます。甲賀市信楽町の地域区分は5。


+
上のグラフは、改修前の最寒期の温湿度を室内4箇所、外部1箇所で測定したものである。全室内、日中をとおして石油ストーブをつけていないときはすべて10℃以下になっています。これでは冒頭部分で紹介した改修前の暮らしでの室内で完璧な防寒対策になるわけです。私も炬燵から出られなかった事を思い出します。お年寄りには危険な暮らしといっても過言ではありません。これは次の冬までに改修を終わらせねばと決意した時でもありました。
-
- 省エネルギー性の診断
光熱費データはヒアリングした実際の数値です。UA値が省エネ基準の3倍であったが、用途分解された暖房一次エネルギーは予想通り標準値倍以上でした。

調査診断結果
予想通り、大変厳しい結果となりました。耐震性、断熱性、耐久性を大きく改善する必要である事はヒアリング時点でも把握していましたがバリアフリー性の改善も重要な事がわかりました。

各項目の改修計画と工事及び結果
依頼主の要望と上記の診断結果とを踏まえ、それぞれの分野を解決する改修計画を検討しました。
-
-
-
- 方針
下図は劣化をプロットした平面図の野帳の上に方針を書いた物です。
今回、予算を考慮して下記の方針としました。

-
- 改修プラン
-
今回の改修計画では、耐震、断熱、バリアフリー性の向上だけでなく、水回りの配置変更、庭への開口計画、玄関を含め生活動線計画の変更も行いました。
これにより、暖房空間に水回りを集約させ厳冬期でもヒートショックの心配なく水回りを利用する生活がおくれます。座敷2で就寝するので、夜間のトイレもフラットで近くなりバリアフリー性も向上しています。
また、植物を愛でる生活を送る両親が、長く過ごす食堂や居間から南側の庭を眺められる様になりました。玄関を南面東寄りにしたことで茅葺きの縁側前南庭は突然人が入ってくることのない、よりプライベートな空間となり庭造りや孫が来た際の遊び場として使いやすい設えとしています。

-
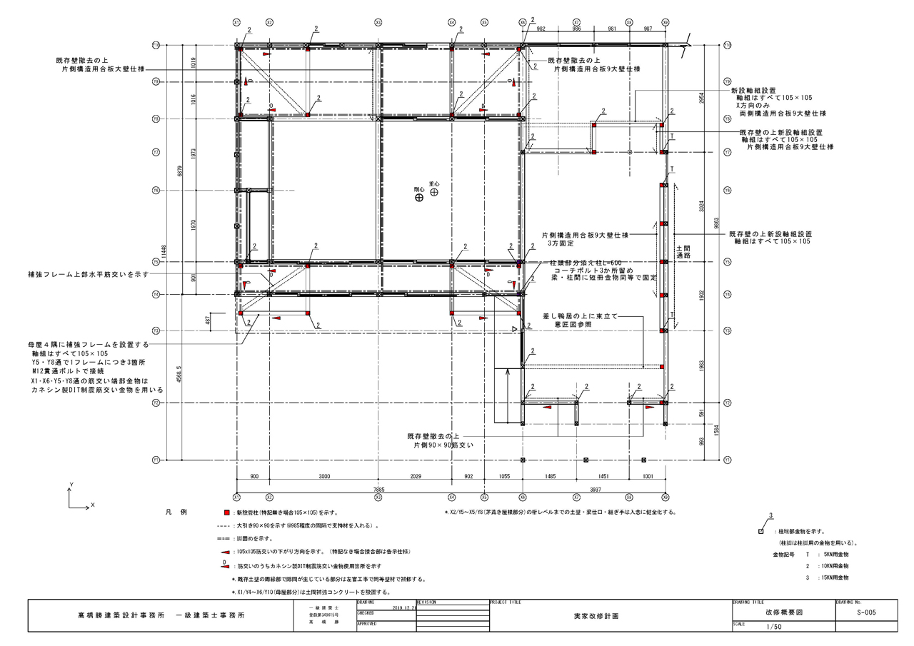
- 耐震改修計画
耐震診断では、最小評点が 0.55 で、このままでは大地震時には倒壊する可能性が高いと診断されました。茅葺き主屋と増築部は高さ・重さが異なり別々に動きやすく、一気に崩壊するリスクがあります。また最北の壁は用水路に接し大きな水平力の負担が出来ない。
そこで、主屋と増築部それぞれに十分余裕のある耐力を持たす事で、変形差を抑える事を耐震補強方針としました。なお、茅葺きの主屋は、建具での間仕切り方によって様々に使われてきた民家の柔軟な住い方を残すため、耐力壁は空間の柔軟性を消さないよう面の耐力壁は極力使わず「耐震フレーム」を主たる耐震要素とし、その他は健全化と基礎緊結のみとしました。

今回の計画では揚屋および新規に基礎を造る事は予算上できない為、十分な耐力壁をバランスよく配置することにより、耐力壁に流れる応力を小さくして基礎への負担を減らし、2ゾーンの変形差を少なくすることをねらって茅葺き主屋の床下全体にメッシュ筋Φ6-100x100を敷いたコンクリート土間120mm厚を打設しました。この土間は北向きに川に向けて僅かな勾配をとり、今後床下浸水に見舞われても水が履けやすい構造としています。この土間に耐震フレームの土台、また、通し柱をつなぐ足固めをアンカーボルトにて緊結しています。(下図参照)この土間基礎方式では“実質”アンカーボルトの引き抜きは10KN程度は余裕を持って確保できるため小さめの引き抜き力で耐力要素を散らせば、ローコストでの基礎形式として十分活用できると思います。

上部構造は既存躯体の接合部を、耐力が保証されたHD金物やパネリードなどのビスによって補強していきます。この方法も安価な金物の取り付け工事のみで採用しやすい方法です。

耐震工事の様子

転がし土台・足固めをM12アンカーボルトで基礎に緊結

玉石、ブロック基礎を土間コンクリートで固定

耐震フレーム

耐震フレーム

足固め取付状況
-
-
- 構造図と耐震改修後の耐震診断結果
-
下記に今回改修の構造図とその評価を示します。評点算定部は構造計算書のそのままを抜粋しています。
耐震改修の構造計画においてもアトリエ SUS4能戸氏がの協力を頂きました。
評価方法は「精密診断法 1 許容応力度計算 木造一貫計算プログラム:HOUSE-ST1」を採用しています。
結果として、少ない予算の中、非常にコスト効率よく実質の耐震性を大きく向上させられたと考えています。


上記の様に、耐震改修後の上部構造評点はX,Y方向とも3を超える非常に高い結果となっています。1.5以上が「倒壊しない」の判定である基準のなかで、この結果は突拍子もない数字とも思えまが、下記の前提での耐震要素の積み上げの結果となっている事を付記しておきます。
今回の耐震改修は「実質」耐震要素と判断できるものをカウントしています。例えば改修前耐震診断時同様、既存の鋼板外壁や内壁仕上げも現場調査の上、どの程度の耐震要素としてカウント出来るかを構造担当者が業界内での多数の実験結果や経験測により自ら判断しています。この判断は普段専門的な構造設計を担当していない意匠設計者や、伝統工法建物の耐震計画の現場経験が少ない構造設計者には難しいのではないでしょうか。私はここに、設計コストを掛けてでも専門の構造設計者に耐震計画を依頼する事の大きなメリットがあると考えています。
下記は構造計算の前提となる耐震要素をまとめたページの抜粋を掲載します。

-
-
- 断熱計画・工事
-
調査診断から、非常に厳しい温熱環境の住まいに対しての断熱計画は下記とした。
・床天井壁に極力可能な厚みいっぱいに断熱を施す
・開口部をペアガラスの密閉度の高い物に付け替える
・木製建具には、モヘアなどで密閉度向上に努め、可能なら内側に障子を設ける。


- 断熱材・建具仕様
天井:高性能グラスウール14Kt-155(アクリア)
壁 :高性能グラスウール14Kt-100(アクリア)
床 :押出法ポリスチレンフォームt-65(ミラフォオームMKS)
アルミサッシ:金属・プラスチック複合LOW-E複層(サーモス)
ガラス開口部内側に障子、またはプリーツスクリーン
- 防湿フィルムで防露措置
断熱材の室内側に防湿フィルムを計画し施工の監理をしっかり行うことで冬季の防露措置を行った。

断熱工事の様子

床断熱材施工状況。密閉度を上げるため継ぎ目をテープ貼りしています。

壁断熱材施工状況。防湿フィルム入りで耳付きタイプを採用し、内部結露対策としています。

天井断熱材施工状況。防湿フィルム入りタイプを採用し、内部結露対策としています。
- 断熱改修結果
改修後のUA値値は0.46となり、省エネ基準の0.87W/㎡K達成に加え、HEAT20のG1の基準値も達成しました。

- 改修後実測温度(36時間)
ルームエアコン1台のみで、活動期間中は厳冬期でも食堂居間では概ね15℃~20℃をキープしています。木製建具のモヘア処理前で気密性が低く、空調切後の温度下落が早くなっています。脱衣室の温度が急上昇している部分は浴室暖房の為。
木製建具は空間づくりに非常に重要な役割をはたしてくれますが、気密性の保持に課題を残す結果となりました。

+
※改修後の省エネルギー性の結果については、改修後1年間の光熱費をヒアリングし、今後検証していく予定です。
結果まとめ
改修工事後のレーダーチャートを下記に示します。
(表示範囲からはみ出している改修後の耐震性は 313,断熱性は 170)
工事費は 1000 万円+㌁の希望のところを結果 1250 万円(税抜)となりました。
工事はなんとか年末に竣工、(浴室周りは 11 月末から使えるようにして頂きました)
要望があった寒さ対策と耐震性の向上は 150 ポイントを超える結果となり、コスト効率の高い改修とできたのではないかと考えています。

また、改修に伴うプラン変更による生活者の動線の変化、見える景色の変化に加え、守って行きたい古民家の内外観の意匠性の復活は住人の家に対しての意識を変え、住まい方、ひいては生き方に大きな影響を与えているのではないでしょうか。家の事にあまり口を出さなかった父が新しい玄関を飾り始め、外部との関わりに積極的になっている様に感じます。庭で咲かせた季節の花を玄関土間や食堂に活けていますし、家のふとした風景を最近はじめたインスタグラムに投稿しているのを見かけます。ただし、これらも各種性能向上があったればこそであり、そこに住宅医の存在意義があると思います。
■これから改修後2度めの冬が近づいてきますが、暖かく過ごせる様になった実家には厳冬期も幼い子供を連れて帰っても、もう大丈夫だと思っています。
改修後の様子

新しい玄関土間から西に庭を見る。窓際に庭で摘んだ花が生けてありました。

新しい食堂から庭を眺める

座敷から南庭をみる

耐震フレームとたそがれる父

食堂と近くなった南庭で初めての流しそうめん大会(実は全員初体験)

耐震のための間仕切り壁は必要なく、民家特有の視線の抜けがある広間と縁側。

耐震フレームが茅葺き家屋の4隅を支えています。

玄関土間部分はされた床杉板張りの食堂になりました。正面が小さな土間に新しい玄関。

前面障子で、季節や時間帯にあわせて視線の抜けや断熱性を調整します。欄間部分はハメ殺しガラス

新しくなった南側外観

■最後に、非常に丁寧に柔軟に改修工事を担当頂いた信楽の森工務店の皆様、調査診断を手取り足取り教えながら協力していただいた仕立て建築舎の平賀さん、いつもわがままを効いて優しくきっちり対応してくれる構造担当のアトリエ SUS4 能戸さん、そして古民家改修の依頼を前に立ち往生しているところに住宅医スクールと引合せていただき出会うたびに励ましてくれた(と勝手に思っています)三澤文子先生にあらためて感謝をお伝えしたいと思います。
長文にお付き合いいただきありがとうございました。


