住宅医の改修事例 №157 伊都の家 ~築40年の実家を3世帯が安心して暮らせるLCCM住宅に+
土田 航平 (住宅医 / エコワークス株式会社 / 福岡オフィス)
story
住まい手の娘さんご夫婦は、Uターン帰省に伴い 新築も検討されたそうですが、慣れ親しんだ 建物と土地をこれからも引き継いでいくことを考えられ、3世帯6人が暮らすための改修を決断されました。ですが築40年のご実家は「冬は寒い!」また、3世帯が暮らすには家具や荷物が収まらずに手狭でした。3世帯が快適に安心して暮らす為の計画と、耐震・断熱補強が的確に行われた改修事例です。長期優良住宅の認定など 建物の資産価値を高め、また新築に比べてコストを抑えることが出来たそうです。
改修工事前に住まい手さんはモデルハウスで床下エアコンの心地良さを気に入られ、また災害時に強くて太陽光発電設置のご希望もありました。この改修は環境に優しく(エネルギー収支はゼロ以下のLCCM住宅)また使用素材は地産材など、省CO2。環境への配慮がされています。
(住宅医協会編集部)
既存建物
改修前![]() 外観(東側) |
改修前![]() 外観(南東側) |
既存建物の状況
建物詳細調査
①床下調査にて過去のシロアリ被害・カビの発生が見られる。シロアリについては駆除済み、1月の床下調査の際の木材の含水率24%程とやや湿潤状態。
②屋根形状が複雑で隅・谷が多く雨漏れの発生が見られる。室内側からも天井仕上・小屋組での雨染みを確認。
③モルタル外壁には多数のひび割れ(最大0.5㎜)が見られる。
④水廻り設 備は劣化が見られる。
⑤給水配管の為、一部土台を切欠いている箇所が見られる。
![]() ①根太にカビの発生あり |
![]() ①過去のシロアリ被害あり |
![]() ②隅棟より雨漏れしているとおもわれる |
![]() ②小屋組に雨染みあり |
![]() ③モルタル外壁のひび割れあり |
![]() ⑤土台の切欠きあり(写真:解体時) |
耐震性(既存建物)
①基礎は無筋コンクリート、アンカーボルトあり。ひび割れは無く健全な状態。
②床の傾きは最大で3.5/1000、経年劣化であるものと判断する。
③小屋裏は羽子板ボルト、カスガイ、火打梁などあり。
④現況の筋かい位置は目視により確認、解体後に再確認を行う。
上図:既存建物の上部構造評点は0.52 (評点0.7未満は、建築基準法の想定する大地震動で「倒壊する可能性が高い」)
バリアフリー性(既存建物)
①玄関~ホールの手すりなし。玄関~ポーチとの段差あり。
②浴室は0.75坪サイズで入口には段差があり、入口幅は洗濯機や収納により有効600㎜程まで狭まっている。
③トイレは階段下に位置しており、奥行が有効で1300㎜程で壁に手すりの設置もなし。
④各室の入口は敷居による段差が15~30㎜程見られる。
![]() ①玄関 〜ポーチの段差あり |
![]() ③階段の手摺なし |
![]() ②浴室の入口幅600㎜程度 |
![]() ③トイレ奥行は狭く(1300㎜程)手摺なし(左はタオル掛け) |
火災時の安全性(既存建物)
⑤法22条区域に位置しており、外壁・屋根ともに防火性能を満たしている。
⑥火源付近の内装については、壁はタイルで天井はクロス。クロスについては準不燃クロスかどうかは不明。
⑦火災警報器はキッチンにのみ設置
⑧2階は下屋から2方向避難が可能。
温熱性(既存建物)
①UA値:3.17W/㎡K
②外壁・床・天井の全箇所に断熱材は見られなかった。
③窓はアルミ製+単板ガラス
④開口部・外壁・床・天井など気密性はなし(気密測定なし)。
![]() ②小屋裏、天井、壁面には 断熱材なし |
![]() ②床下 断熱材なし(床下調査時の木材含水率24%程) |
省エネルギー性(既存建物)
①一次エネルギー消費量計算結果:118.6GJ/年(基準値:68.7GJ/年)
②冷暖房設備は、従来型の省エネ性能を考慮しない機器が設置されている。
③給湯器は従来型ガス給湯器を使用。
④低い断熱・気密性能の関係から暖房負荷がかなり大きくなっている。
改修前の建物性能
改修前(既存建物)レーザーチャート![]() |
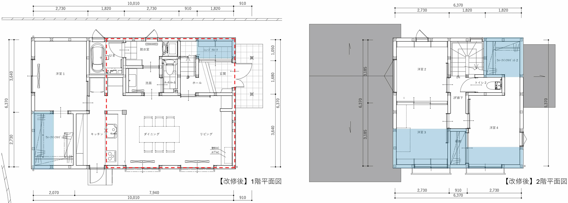
改修プラン
施主の要望
・3世代がストレスなく暮らせるよう増築したい。
・とにかく寒い、冬暖かく・夏涼しい家へ(※床下エアコンの強い要望)
・3世代が年を重ねていく中でストレスなくフレキシブルに暮らしたい
・ご主人より、災害時のレジリエンスが高い住宅にしたい(耐震・大容量太陽光の強い要望)
・収納を増やしたい
既存建物
|
計画目標
耐久性 :長期優良住宅の認定を取得し、劣化対策等級3とする。
耐震性 :上部構造評点1.0以上を目指す。
温熱性能:断熱等級6・ C値1.0以下を目指す。
省エネ性:ゼロエネルギー住宅を目指す。
設 備 :太陽光設備・床下AC
その他 :増築による確認申請、長期優良住宅認定
耐震計画(改修後の性能向上を検討)
主構面と補助構面の計画
■
耐震診断による耐震補強
・耐震診断ソフトはホームズ君Proを利用。 |
■
■
|
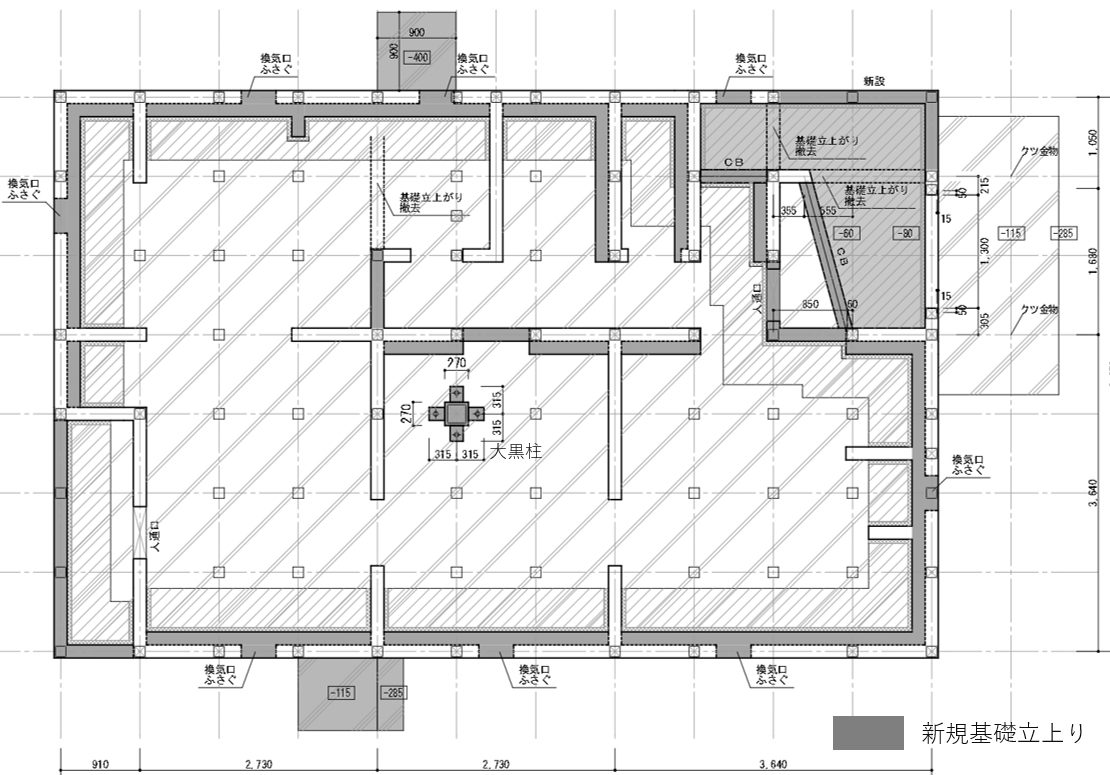
基礎補強(改修後)
【改修後】基礎計画 |
【改修後】基礎断面図 |
●既存の無筋基礎へ ケミカルアンカーによる抱合せ基礎を施工。抱合せ基礎施工箇所は、外周部と耐力壁を設ける直下の基礎へ施工
●適宜アンカーボルトをケミカルアンカーを用いて増設。
●ベースは防湿土間コンクリートt60を打設。
施工写真![]() ケミカルアンカー施工 |
施工写真![]() 配筋確認 |
![]() コンクリート土間打設 |
![]() 補強基礎 型枠解体 |
![]() 基礎配筋 |
![]() 土台 ケミカルアンカー施工 |
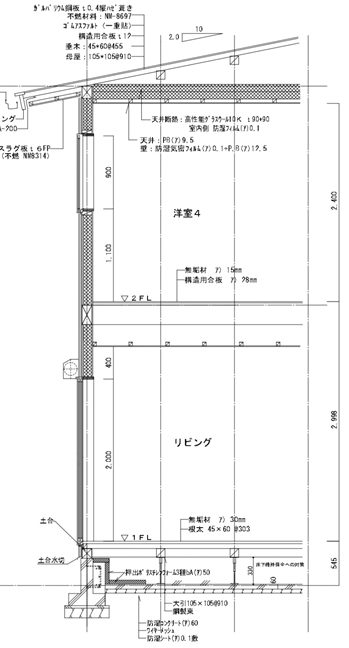
断熱性能
【既存の仕様】
天井:無断熱
壁 :無断熱
床 :無断熱
開口部:アルミサッシ + 単板ガラス
【改修後 仕様】
天井:高性能GW10K t180(アクリアマット90×2)
壁 :高性能GW16K t105(アクリアウール)
床 :基礎断熱
押出法ポリスチレンフォーム3種bA t50(ミラフォームMKS)
開口部:LIXILサーモスⅡ/H
アルミ樹脂複合サッシ + Low-Eペアガラス(アルゴンガス入)
断熱性能:UA値0.45 Q値1.66
気密性能確認のため気密測定を実施
改修前 断熱性能3Dパース(U値をカラーで表示青部分は熱損失が大きい)![]() 断熱性能:UA値3.17 |
改修後 赤部分は熱損失が少ない。 ホームズ君Pro使用 ![]() 断熱性能:UA値0.45 Q値1.66 |
断熱改修 施工写真![]() 壁:断熱材の設置 |
施工写真![]() 壁:断熱材の設置 |
![]() 天井:断熱材の設置 |
![]() 基礎:断熱材の設置 |
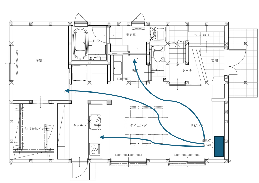
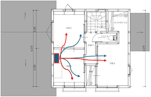
空調計画
床下エアコン
弊社モデルルームにて床下エアコンの心地よさを体感され採用しました。1階床に設置された床下エアコンは床下の空気を直接温め、床から室内を暖める心地よい暖房です。非居室である廊下、トイレ、脱衣室等も暖房可能なため、部屋間移動時の温度差によるヒートショックを予防し、快適な温熱計画を行いました。今回は暖冷房シュミレーションを行い、エアコンを1階(床下)に1台、2階に1台(壁面)設置し、冬季暖房と夏季冷房の空調計画を行いました。
| 暖房計画(冬季) |
1階 冷房計画(夏季)![]() 1階床下エアコン |
2階 暖冷房計画(冬季・夏季)![]() 2階壁面エアコン(2階壁面から各部屋に暖冷房) |
真冬の室温降下予想と、非暖房室との温度差趣味レーション![]() ![]() 図右:真冬に暖房エアコン(設定温度20℃)を0時まで稼働した時の室温移行。 図左:非暖房室との温度差をシュミレーション(設定温度20℃) ホームズ君Pro使用 |
省エネ性能

ホームズ君Pro使用
●一次エネルギー消費量計算結果:35.6GJ/年(基準値:80.2GJ/年)
●給湯設備は効率:3.4の おひさまエコキュートを採用。太陽光との連携でより省エネに利用可能。
●太陽光パネル:8.16kw搭載。
●節水型水栓や節水型トイレに更新。
●照明は全てLEDとし、センサーや調光器を併用。
改修後の建物性能
BELS認定を取得
計画地は地域区分 6で、UA値(外皮平均熱貫流率) 0.45。ηAC値(冷房期の日射熱取得率)1.7
エネルギー消費性能は、再エネなしで36%削減、再エネ有りで74%削減、自家消費+売電を含めると183%削減。BELS評価基準 六つ星(★★★★★★)を取得。
レーダーチャート
建物性能 改修前![]() ■ |
改修後![]() |
耐久性:長期優良住宅の認定を取得することで、劣化対策・維持メンテナンス性を大幅に向上させた。
耐震性:上部構造評点0.52 ⇒ 1.36へ向上
温熱性能:UA値0.45と断熱等級6をクリアした。
省エネ性:ZEHを超え、LCCM住宅相当の省エネ性能を確保できた。
Before・After
■
■
■■■■■■■■■■■■▼
■■■■■■■■■■■■▼
■■■■■■■■■■■■▼
最後に
フルスケルトンリノベーションを設計する際には、この建物が新築でなくリノベーションである意味を考えながら設計しております。今回の物件は、父が建てた家を崩してしまわずに3世帯で住み継いでいきたいという想いを、安心で快適かつ省エネルギーで暮らしていけるリノベーションとして意味を成し得たと思います。
住宅医スクールを受講し始めた頃からスタートした物件ということもあり、住宅医の方々が真摯に建物と向き合う姿を見てより良い計画となったと感じております。
今後もリノベーションである意味を考えながら、古き良き日本の住まいを未来の世代に引継げるよう努めて参ります。
最後に、大切な住まいを任せてくださったお施主様、共にこのリノベーションを完成に導いた関係スタッフ・職人さん、多くの学びと様々な機会をいただいた住宅医協会の皆様に心より感謝申し上げます。
土田 航平
COPYRIGHT©Tsuchida Kohei, jutakui
No.0157 伊都の家 ~築40年の実家を3世帯が安心して暮らせるLCCM住宅に
LINK
・エコワークス株式会社│「木の家」リノベーション専門店│https://www.eco-renovation.jp/
・エコワークス株式会社 https://www.eco-works.jp/
・エコワークスYouTubeチャンネル https://www.youtube.com/channel/UCxCQI2WyZFwbQZ67aF14oTQ







































































