住宅医の改修事例 №160 築68年の古民家の減築と性能向上改修 ~発酵カフェループ+
橘 泰一 (住宅医 / 株式会社フラグシップ / 富山県)

Photo by 空耳カメラ Copyright©flagship inc.
story
中古住宅の購入についても的確なアドバイスをされるフラグシップさん。オーナーさんも安心して、この古民家を購入された事と思います。築68年、劣化が進む古民家を適切に減築し、建物の美しい意匠がいかされた改修事例です。合理的な減築計画により、1階 飲食店部分の耐震性と温熱環境が低コストで改善されました。また、建物オーナーのコンセプトでもである「からだにやさしい」が、建材の再利用や心地よい空間で表現されている様に思います。
2024年1月の能登半島地震では、この地域は震度5弱でしたが耐震施工が終わっており、建物への被害はありませんでした。(住宅医協会編集部)
既存建物
外観(北面) |
1階内部 |
敷地内 |
既存建物の状況(建物詳細調査)
外部(調査日:2023年2月)
既存建物の図面はなく現況図を作成。
写真右は建物東面で袖瓦のめくれ、しっくい壁の脱落あり。
![]() 外壁:板張り めくれ |
![]() 北側:屋根谷部の板金腐食 |
内部
平屋部分を中心に、1階室内に雨漏り跡が多数。北側廊下部分は雨漏れにより天井が抜けている。
![]() 雨漏り跡 |
![]() 増築された南西和室は、西に向かって傾斜 |
小屋裏
![]() 小屋裏の土壁、小舞の状態は良好 |
![]() 小屋組の丸太梁も状態良好、雨漏りの形跡なし |
解体時
フルリノベーションが前提のため、建物調査時は床下、天井裏の点検調査は解体後に再調査を行う計画とした。基礎立ち上がりが無筋コンクリートであることを確認。在来浴室の軸組、土台の一部、南西の屋根谷部の躯体が腐食していた。
![]() 基礎立ち上がりは無筋コンクリート |
![]() 在来浴室の軸組腐食 |
■
既存建物の性能
![]() 住まいの診断レポート建物調査診断報告書 発酵カフェループ |
建物は劣化があり、無断熱(UA値は4.38W/㎡k)。精密診断法による耐震性能は、積雪1.5m時 0.23(無積雪時 0.30)。建築基準法の想定する大地震動で倒壊する可能性が高い。
改修方針
| 【施主の要望】 ■ ・発酵食品を使ったドリンク、フードの提供 ■ ・食品や雑貨の販売 ■ ・発酵食のワークショップ、セミナー ■ ・昔ながらの食生活を伝える落ち着いた空間 ■ ・薪ストーブを使いたい |
【設計の方針】 1 バランスのとれた性能向上をする ・耐震:積雪1.5m時 上部構造評点1.0以上 ・温熱:断熱エリアUa値=0.6以下(断熱等級5) ■ 2 店のコンセプトを表現する ・自然素材・無垢材の使用、建具・照明の再利用 ・景色を楽しめるプランニング ■ 3 はたらきやすい店にする ・客席が見渡せるゾーニング ・サービス動線の明確化 |
減築による課題解決
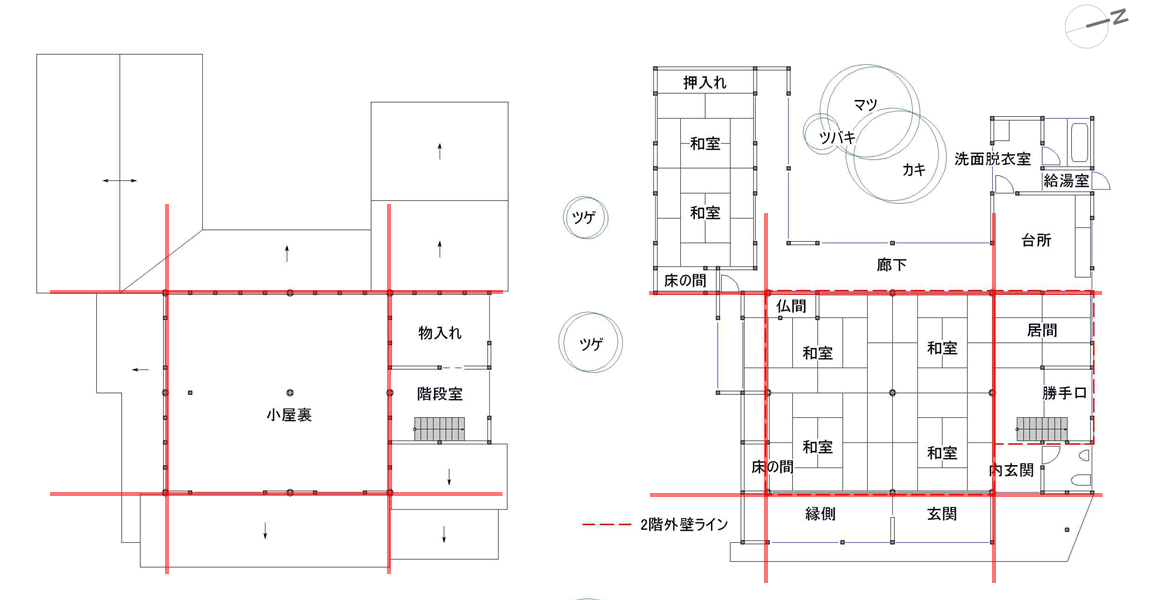
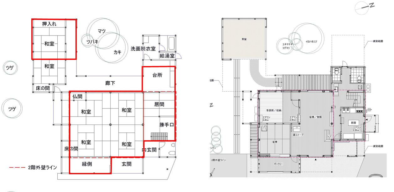
富山の民家は建築面積が大きい特徴があり現代の暮らしでは使いにくい面があります。また大きな建物を改修すると総工事費が高くなってしまいます。そのため積極的に減築を提案し、1階の床面積を約半分(186㎡から98㎡)にする減築を計画しました。
1)壁線をそろえる![]() ズレていた上下階の壁線を整え合理的な構造とする |
2)総2階 +下屋に整理![]() 総2階部に下屋が取付く形とし合理的な性能と施工を計画 |
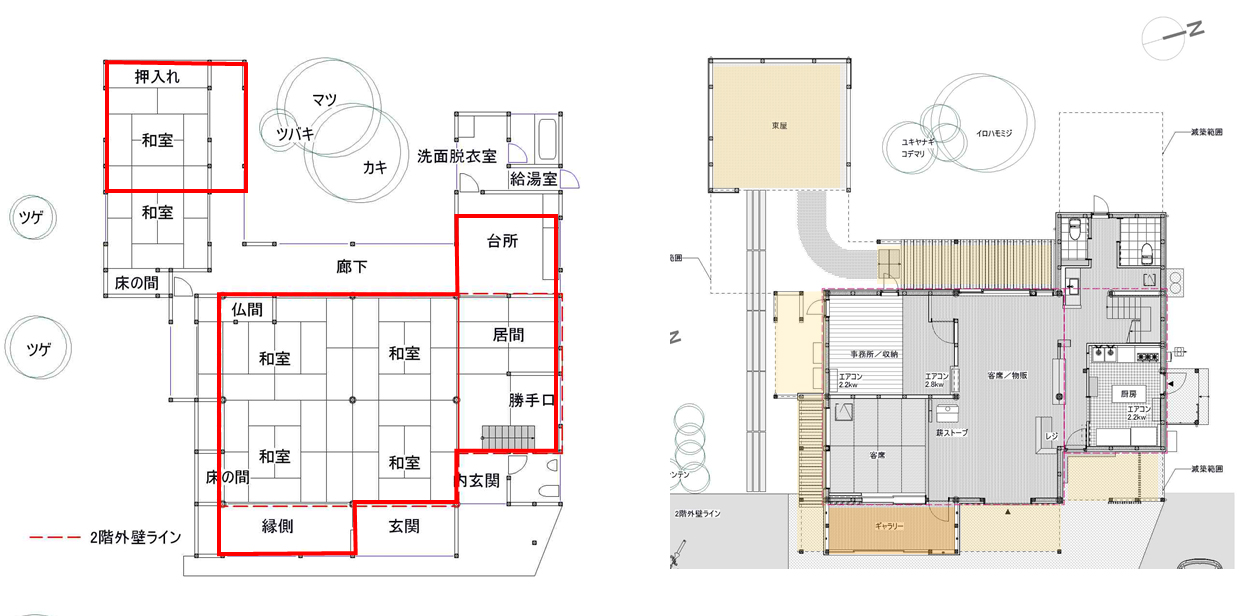
構造の合理性、施工性を高めるため上下階の壁線をそろえ、総2階部分をベースに下屋が取り付くかたちに整理する。下屋は減築(解体、屋根のみを残す、屋根壁を残す、非断熱などのバリエーション)を検討。大きすぎて活用しづらい家も必要な面積を限定でき費用効果の高い改修が出来る。
3)下屋の減築バリエーションを検討![]() 劣化の大きな場所は解体 |
4)効果的な中間領域![]() 減築によってうまれた軒下空間や中間領域 |
減築によって生まれた空間は、車庫、自転車置場、外収納、物干し、デッキなど、半屋外空間、中間領域として有効活用できる。解体によって出現する意匠など、個性的な空間デザインが産まれ、使い手の工夫が生きる空間づくりとした。
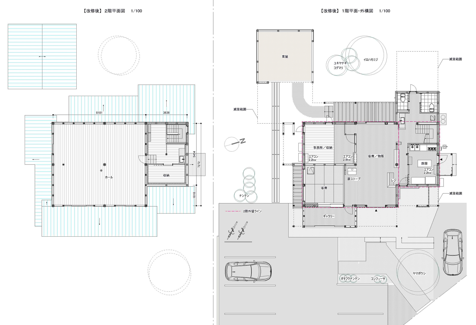
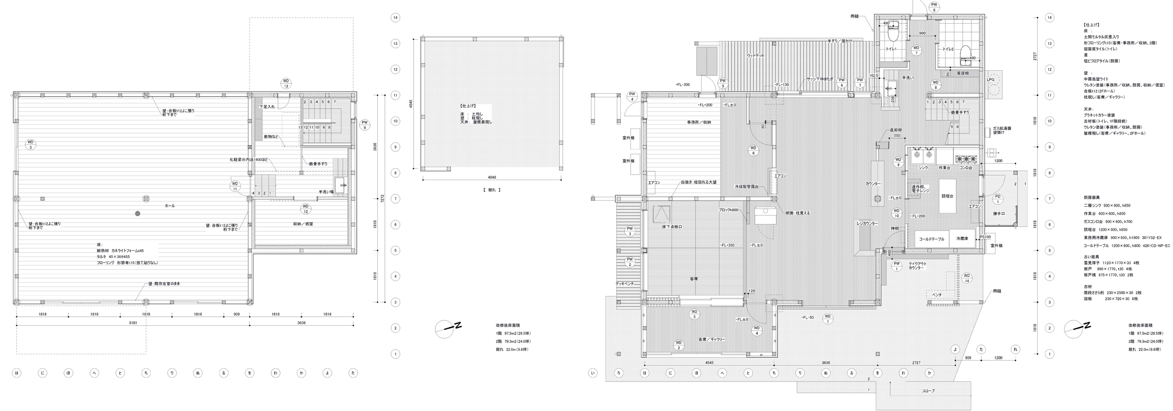
改修後 平面面
設計のテーマは「今あるモノを活かすこと」。
広すぎる床面積は、改修費用や建物の維持に負担がかかります。その為、減築という手法を取り入れました。
減築することで、ポーチや薪置き場、デッキテラス、東屋風の離れ、設備置き場などが軒や屋根で守られ、雨雪をしのぐことが出来ます。また軒下は柔らかな日差しが差し込む心地よい良い場所になります。
![]() 改修後 2階 1階平面図 平面図 クリックで詳細平面を表示 |
![]() 改修後 立面図 |
構造計画
・2階の土壁を残す
2階床梁を見せる意匠
■→ 2階は耐震改修の範囲外
・壁線を上下でそろえる
劣化が激しい増築部を解体減築
■→ 構造バランスを整える
・既存の土台が不整形な平角
階高が3m以上
■→ 筋交いにて壁倍率を検討
右図:【改修後】耐力壁・柱頭柱脚金物図 ホームズ君耐震診断Pro使用
上部構造評点
精密診断法による上部構造評点は、改修前Iw 0.30 ⇒ 改修後1.42(共に1階 無積雪時)
精密診断法による上部構造評点 積雪時(1.5m) 図: 上 改修前 下 改修後 |
無雪時![]() 図:上 改修前 下 改修後 |
1階部分は積雪1.5m時の評点が1.0に満たなかったが屋根に雪止めがなく、無積雪時は建築基準法の想定する大地震動で「一応倒壊しない」評価となる。2階部分は今後の改修で必要な性能を提案していきたい。
・玉石をコンクリートで根巻きした既存基礎に、差筋をして新設基礎を接続させた。
・外周部は無筋コンクリートのため、抱き基礎を新設し、既存土台にアンカーボルトを追加した。
・改修部は引抜き1.5kN以下の負担になるよう壁倍率を検討した。
| 既存土台の有無により基礎を設計 |
| ■ | ■ | 外周部立上りは無筋コンクリート C)抱き基礎を新設し、既存土台に追加アンカーボルトで緊結 ![]() |
施工写真![]() 3メートルを超える階高は筋違い45×90で壁倍率をとる |
施工写真 既存に新土台を継いで補強 |
施工写真 外周部基礎立上には押出ポリスチレンフォームt45 |
温熱計画
使用時間の短さ、土足利用を考慮して計画 UA値 = 0.51 < 0.6
壁断熱材は、ほぞ穴等の欠損を埋めるのに適した、セルロースファイバー
開口部は、樹脂サッシ + ペアガラスを基本 西面大開口のみトリプルガラス
■右図:改修後の仕様と性能
![]() 壁セルロースファイバー充填後可変透湿気密シートで気密をとる |
2階床根太間に充てんしたカネライトフォーム |
床貫通する煙突部にロックウールを入れ断熱材区画の欠損をなくす |
【 ゾーン断熱 】2階と揃えた壁線を基本に、階段から2階ホールまでを区画
![]() ●●● |
建具によるゾーン断熱![]() 建具を活用してギャラリーと客席を区画 |
2 二重建具 |
3 閉める |
冷房は壁掛けルームエアコン
客席2.8kW、厨房・事務所2.2kW
計3台設置
暖房は薪ストーブ12.0kW
●●●![]() |
バリアフリー・維持管理・メンテナンス
1階は車椅子やベビーカーのお客様も利用しやすい計画としました。また建物は維持管理がしやすい施工とし、室内には点検口を設置しています。外壁の木部は通気層の上にラフ板の県産杉を貼っており雨に濡れても乾きが早いのが特徴です。私たちが選んでいる素材のメンテナンスは難しくありません。点検をとおして建物に興味を持っていただければと思います。
バリアフリー![]() 車椅子とベビーカーのお客様に対応(駐車スペース・スロープ、1坪トイレ) |
維持管理がしやすい施工 外壁材(とやま杉) |
メンテナンスは難しくない 竣工後:オーナーさんと定期点検 |
環境への取組み

解体時にとっておいた木材をオーナーさんに洗浄していただき、室内の天井板や腰板として、またレジカウンターや造作棚の材料として使用しています。建具や照明器具も再利用し、お店の名前にもなっている“ループ”=循環を、建築でも表現しました。弁柄色の塗装、石、鉄、障子など、古くからあるものの味わいがお店の雰囲気づくりに一役買ってくれています。
![]() 照明器具と欄間を再利用 |
建具、天井板を再利用 |
再利用材:照明(ペンダント),棚,レジカウンター |
地域の工務店として
設計施工の工務店として、地元職人と連携しながらものづくりを行っています。
●● |
左官:丹波匡就 |
大工:島田和典 |
改修後の建物性能
![]() 住まいの診断レポート建物調査診断報告書 発酵カフェループ |
住まいの診断レポート建物調査診断報告書 発酵カフェループ |
Before・After
最後に
「発酵カフェループ」は、富山市婦中町に建つ昭和31年築の木造住宅を改修し、カフェ、物販店舗として再生した事例です。10年以上空き家となっていた建物でしたが、構造補強や断熱性能の向上により、快適かつ安全な空間へと生まれ変わりました。
今回の改修では、既存の建物がもつ時間を重ねた価値を見出し、それを丁寧に未来へつなぐことを大切にしました。解体時には建具や床板などを一点一点確認しながら取り外し、家具や収納、内装材として再利用しています。新材との組み合わせによって過去と現在をなめらかに接続し、空間に深みと豊かさを与えました。
機能面では、飲食・調理・販売という異なる用途を限られた面積の中で整理する必要がありました。オーナーの作業効率や視線の流れ、滞在するお客様の居心地など、多方向の視点から動線と空間のつながりを設計しています。特に、厨房やバックヤードの回遊性、空間ごとの天井高や開口部の扱いは、用途と雰囲気を自然に切り替える要素として意識しました。
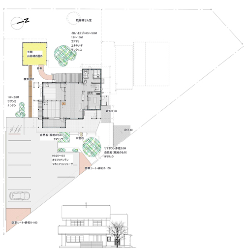
外構計画では、道路沿いという立地において、外からの見え方と内からの視線の抜けの両方を考慮しています。特にシンボルツリーとして配置した落葉樹のヤマボウシは、四季の変化を通じて訪れる人の記憶に残るよう意図しています。
私にとって、設計は完成した時点で終わるものではありません。むしろ、建物が日々の営みに馴染み、空間が使われていく中で見えてくることに寄り添い続けることも、設計者の重要な役割だと考えています。竣工後も定期的に訪問し、建物の状態を確認しながら、オーナーとの対話を重ねています。それは、空間が良い状態で保たれるためのメンテナンスであると同時に、信頼関係の継続でもあります。
過去と現在をつなぎ、日々の営みを受け止める器として、建築が静かに働き続けてくれること。そのためにできることを、これからも住宅医として積み重ねていきたいと思っています。
橘 泰一
Copyright©Flagship Inc, jutakui
No.0160 築68年の古民家の減築と性能向上改修 ~発酵カフェループ
LINK
・株式会社フラグシップ https://flagship-style.jp/
・発酵カフェループinstagram https://www.instagram.com/hakkocafe_loop

































































