住宅医の改修事例№164 ~築41年の分譲(中古住宅リノベ)30代家族の住まい
大畑 由美子(住宅医 / 静岡県)
ストーリー
アパートに住む30代のご夫婦は、お子さんの成長に伴い 新築戸建 を検討されていましたが、費用を抑える為に 中古住宅(土地・建物)を購入されました。
購入された昭和57年の分譲住宅は、住宅医の大畑さん・大工さん達による調査の結果、見た目をきれいにするだけでは問題がありました。今回の改修は、予算と性能向上改修のバランスが素晴らしい事例です。
土地・建物の購入費用は1200万円程、改修費用は2500万円程(2024年時)で、耐震・温熱などの性能向上改修が行われ、補助金も上手く活用されました。ご家族の希望が叶った 環境にも優しい改修事例です。(住宅医通信編集部)
建物概要
建物は大工が建てたものではあるが、裏の家と同じ時期に分譲で売られていたもの。リビングとダイニングが別々の部屋で使いにくい、浴室はタイル貼り、和室が二間続きで2階は子供部屋となっていたようだ。瓦屋根で南側に窓が多いため耐震は南側の耐力不足となった。また2階の下に耐力壁がないところもある。
屋根は、瓦葺でところどころに割れがあり。外壁は南西部分はリシン吹付で、何度か上から塗装している。北東部分はトタンでこちらも塗装をしてメンテナンスがされていた。錆や剥がれは見受けられず、内部に浸水した形跡もなかったのでメンテナンスを定期的にやっていたようだ。浄化槽地域で、単独浄化槽が建物の北側にあった。
既存建物詳細調査
詳細調査【外部・内部】
建物調査は2024年4月、小屋裏および床下、外観や設備機器などについて目視調査を実施。(躯体内など事前調査では確認できなかった範囲は、着工後に行った。)確認申請図書は残っていたが増築部分は記載なし。増築部分に鉄骨の梁があった。外壁の剥がれや屋根の割れがあったが、水漏れなどはなかった。基礎も乾燥していた。大工にきてもらい、レベルをはかり計測したところ和室やリビングの床は最高2センチほど下がっていました。
外部![]() 単独浄化槽(耐用年数が超えている) |
小屋裏![]() 雨漏れ無し |
室内![]() 玄関 |
![]() 階段の手摺なし |
![]() 室内の段差 |
![]() 在来の浴室 |
![]() 1階和室 |
![]() リビング (大きな開口はアルミサッシ単板ガラス) |
着工後
解体工事の際に壁体内など事前調査では確認できなかった範囲について追加調査を行った。
増築部分の下屋部分に鉄骨の梁があった。床下は乾燥していた。シロアリによる蟻道は見受けられなかった。
温熱性は外周部の壁のみグラスウール50㎜が入っており、天井と床下の断熱材はなかった。
増築部分の下屋![]() |
拡大![]() 鉄骨の梁を確認 |
床下は乾燥しており蟻道無し |
床下 |
改修前の建物の性能(既存建物)
| 既存建物 性能診断結果 (Before) ■ ![]() |
![]() 一社) 住宅医協会 住まいの診断レポート |
改修プラン
計画の経緯
依頼主のご要望は、使いやすい間取りへの変更と、水廻りの入替、耐震性能と温熱性能の向上でした。
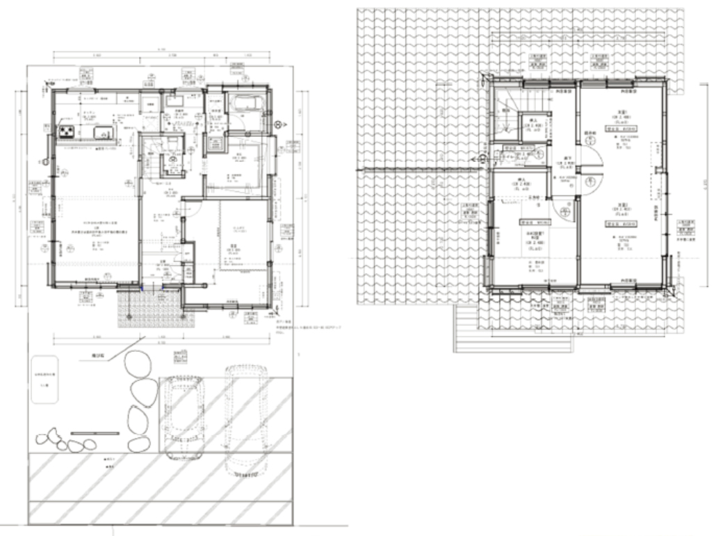
Before![]() 改修前 平面図 |
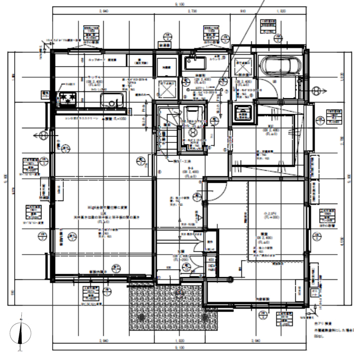
After![]() 改修後 1階平面図 |
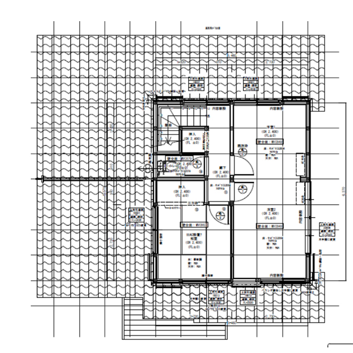
After![]() 2階平面図 |
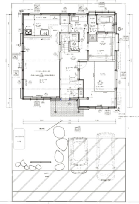
![]() 配置図 |
![]() 立面図 |
●キッチンは対面式に変え、水回りの動線は使いやすい間取りとした。
●自然素材を感じられるように、床材に桧(静岡県オクシズ材)を提案した。玄関やカップボードは造作の物を作った。
耐震性能と温熱性能はコストとのバランスを考え検討を重ねた。屋根は、2階部分の瓦をガルバリウム鋼板にやり替え、下屋の瓦は割れていた箇所を取替えコストと耐久性を考慮した。外壁は、トタン張りとなっていた箇所はガルバリウム鋼板とし、リシン吹き付け箇所は再塗装を行った。窓はアルミサッシのシングルガラスであった為、補助金を活用してペアガラスに変更。また断熱補強も行った。室内のプランは、1階は各部屋を回遊できる動線とした。寝室となる2階にはトイレを新設した。
構造計画
既存建物は瓦屋根で重く、耐力壁が少なく上部構造評点は0.38でした。
構造補強は間取りの変更と共に検討し、2階の外周部下部は耐力壁とし、耐力壁の下部には基礎を新設しました。既存筋違いは金物補強を行い、また梁や柱を適切に設けることで上部構造評点を1.04に向上させました。
Before![]() ![]() ![]() 上部構造評点 0.38「倒壊する可能性が高い」 建築基準法の想定する大地震動時を想定 |
After ![]() ![]() 上部構造評点 1.04「一応倒壊しない」 ホームズ君耐震診断Proにて検討 https://www.homeskun.com/products/homespro/ |
温熱計画
既存の断熱材は、壁面にグラスウール50㎜のみ
● 壁面:新しく筋交いを施工した壁を作る際に、高性能グラスウールを施工。
● 床下:根太間に、ネオマフォームを施工。
● 天井:高性能グラスウールを全体に施工。
● リビング:窓をシングルガラスからペアガラスに変更。
● 寝室と2階の子供部屋と階段室:内窓(プラマードU)を施工。
● 玄関扉を引き違いから断熱等級K4の片引き戸にした。
● 勝手口ドアを無くし壁とした。
![]() 天井断熱施工:アクリアマット高性能14k 155㎜ |
大壁間に断熱施工:アクリアネクストa高性能20K 105㎜ |
熱材施工:ネオマフォーム t40㎜ |
開口部
リビングの窓は内窓ではなく、障子をつけたいというご要望がありましたのでガラスの変更をしました。寝室などの寝る部屋は窓の変更と内窓の設置をしました。またプランでキッチンが暗くなってしまうので窓の新設をしました。
1階 開口部 |
開口部 2階開口部 |
外皮平均熱貫流率(UA値)計算表
焼津は7地域であるのですが、外皮平均熱還流率は0.76と平成28年度の基準はクリアしましたが、冷房期の平均日射熱取得率はクリアできませんでした。外部にスダレを設けることをご提案させていただきました。
改修前(既存) 3.16W/㎡K ![]() |
改修後 0.76W/㎡Kに改善
|
■
維持管理・メンテナンス
![]() 2階部分:瓦屋根からガルバリウム鋼板に |
トタン部分:ガルバリウム鋼板に |
単独浄化槽から合併処理浄化槽に |
他に給湯機の変更や、将来的なメンテナンスや点検に備えるために点検口を設置しました。
■
バリアフリー
![]() |
![]() |
![]() |
玄関段差を30㎝から20㎝に![]() |
階段に手摺を設置![]() |
浴室段差解消![]() |
●玄関土間とポーチのタイルからコンクリートを打設し洗い出しの土間を作り、框の高さを210㎜にした。
●1階は床をすべて取り払い、根太の調整をして床の高さを揃えた。
●階段は手摺がなかったので取付を行い、階段もカバー工法で貼る際に滑り止めを設けた。
改修後の建物性能
| 改修後 性能診断結果(After) ■ ![]() |
![]() 一社) 住宅医協会 住まいの診断レポート |
耐震を主に考えて、2階の屋根の瓦を剥がし、合板を貼り、ガルバリウムにした。1階は瓦を残し割れているところを取り換えた。もともと2部屋続きだった和室をリビングにし、リビングだったところを寝室にした。トイレ、キッチン、浴室を新しくして、耐力壁を増やし、グラスウールが傷んでしまってるところなどに高性能グラスウールを詰めた。
photo
■
■
■
■
最後に
静岡には、古民家とまでは言えないけれど、高度成長期に大工さんが建てた家が今もたくさん残っています。地元の山で育った木を使い、棟梁が知恵を絞ってつくった家。
住まい手の方が大事に暮らしてきたけれど、今は空き家になってしまった家も少なくありません。
そうした家をただ壊して新しくするのではなく、リノベーションで大工さんや住まい手の想いを受け継いでいけたら?? そんなふうにずっと思ってきました。
今回、同じ気持ちを持つお客様と出会い、焼津市でその思いを形にすることができました。
耐震や断熱に気を配りながら、ご要望に合わせた暮らしやすい間取りを考える中で、収納が足りなかったり、予算がオーバーしたりと、いろいろ悩む場面もありました。それでも試行錯誤を重ねることで、ちょうどいい住まいになったと思います。
育ち盛りの男の子が二人。
のびのびと気を遣わずに暮らしてほしい。
住み心地や暮らし心地は、新築にも負けません。
そして今回は、住宅医を学びながら現場監督も務めさせていただきました。頼りない自分を支えてくれた大工さんや業者さん、そして温かく見守ってくださったお客様に、心から感謝しています。
大畑 由美子
Copyright©Ohata Yumiko, jutakui
No.164 ~築41年の分譲(中古住宅リノベ)30代家族の住まい







































































