住宅医の改修事例№161 築42年 中古住宅 性能向上リノベーション+
宮本 善州(住宅医 / 宮本善州建築設計事務所 / 兵庫県)
ストーリー
宮本善州建築設計事務所さんの事務所と自宅の改修事例です。お子さんの成長に伴い戸建てを探されていた所、築古で資産価値が付かず「土地」として販売されていた物件と出会い。解体される予定の建物を不動産屋に掛け合い 上屋付き で購入されました。
その後、建物詳細調査を行い、コストを抑えた性能向上改修が行われました。築42年 それなりの問題を抱えた中古住宅の 耐震や温熱性能を向上させることで、安心・快適に。そしてお子さん達の成長に合わせた柔軟な間取りが計画されました。この改修は「住宅医スクールを受講した事がきっかけ」と伺いましたが、過去の増築により出来てしまった耐力の偏りを整え、また使用可能な建材の活用など、住宅医としての高い技術が詰まった改修です。(住宅医通信編集部)
既存建物詳細調査

2023年12月、WASH建築設計室さん + 宮本善州建築設計事務所にて、建物詳細調査を行った。この建物は阪神大震災を経験しているため構造体への劣化等を重点的に行った。
詳細調査【外部】
外壁や基礎にクラックを多数確認した。屋根瓦は震災後に葺き直されている。
![]() 無筋基礎 |
![]() 基礎にクラック |
![]() 屋根瓦 修繕状況 |
![]() モルタル壁にクラック |
詳細調査【内部】
西側以外の三方が隣家に囲まれており日中も薄暗い。また室内は寒く省エネ性能が著しく低い。
建物に若干の傾きがあったが、構造材に顕著な劣化は見られなかった。
![]() 洗面所 洗濯機が壁面に置けない |
![]() 洗面所付近 床のカビ |
![]() 段差が多い |
![]() 在来の浴室 タイルにクラック有り |
詳細調査【小屋裏・2階床・床下】
外壁面に筋交いはあったが、現行基準の金物は使用されていなかった。基礎は増築部に打ち継ぎがあり配管の貫通もあったが、適切な補強は無かった。
また外部からは確認出来ない部分に基礎のひび割れや劣化が見られた。
小屋裏![]() 現行基準の金物なし |
2階床![]() 顕著な劣化は無かった |
床下 床下 外部から確認出来ない箇所にクラックあり |
床下 人通口 中央に束 |
改修前の建物の性能(既存建物)
| 既存建物 性能診断結果 (Before) ■ ![]() |
![]() 一社) 住宅医協会 住まいの診断レポートM邸 |
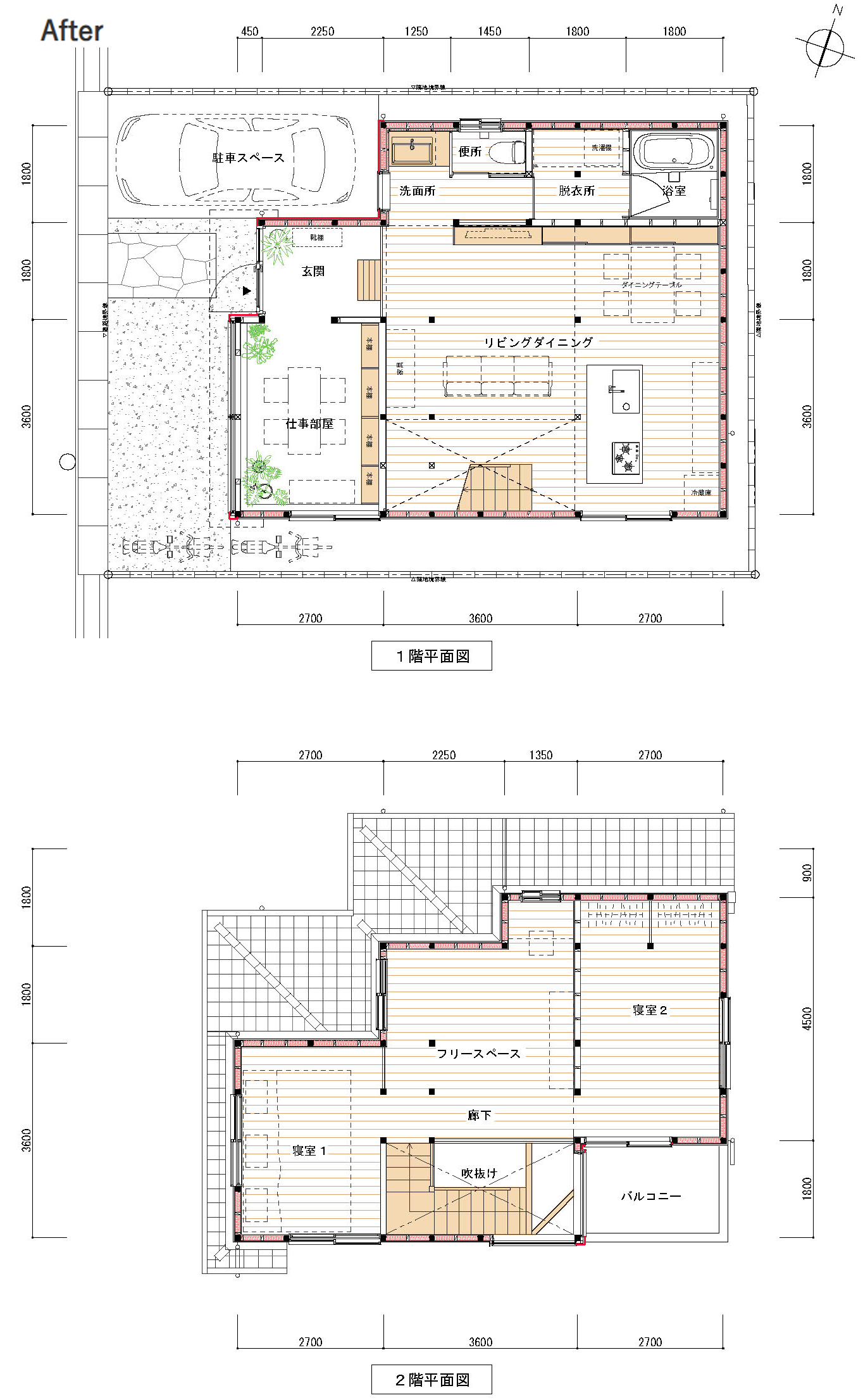
改修プラン
計画の経緯
道路に対して奥まった位置にあったリビングはうす暗い印象があり、風呂、洗面室が小さすぎて使いにくかった。また2階は部屋が細かく分断され、家族の目が行き届きにくい印象。阪神淡路大震災を経験した経緯と、築年数を考慮し、耐震補強と断熱改修が必要と判断した。
(右写真:周辺は同年代に建てられた住宅が立ち並ぶ)
Before![]() 改修前 平面図 |
・将来的に独立した子供部屋ができるスペース、来客に対応できる仕事スペース、明るくて開放性のある一体的な空間という要望を中心に設計。
・予算の都合上、外壁と屋根は既存を活用することを基本とする。
構造計画
基礎の補強

・既存の布基礎の立ち上がりにケミカルアンカーを用いて建物内部に基礎を増し打ち。
・立ち上がりと一体に土間コンクリ-トを打設。
施工写真![]() 既存基礎内側にケミカルアンカーを用いて増し打ち |
施工写真![]() 立ち上がりと一体となった土間コンクリ-ト |
上部の補強
内部は構造用合板にて新たに耐力壁を設置。床は下地に段差が生じていた箇所は根太を組み、新たに24㎜の構造用合板で水平構面を構成。
![]() 左図)1階床伏図 右)2階床伏図と小屋補強箇所 (ち)通り, 過去の増築による鉄骨梁を撤去し、新たに柱を追加し耐力のバランスを整えた。 ![]() |
Before![]() 上部構造評点 0.39「倒壊する可能性が高い」 建築基準法の想定する大地震動時を想定 |
After ![]() 上部構造評点 1.06「一応倒壊しない」 ホームズ君耐震診断Proにて検討 |
施工写真![]() 段差は根太で調整し構造用合板24㎜で水平構面を構成 |
施工写真![]() 新たな耐力壁を設置(構造用合板) |
温熱計画
改修後の仕様
・床断熱:スタイロフォーム90㎜
・壁断熱:高性能グラスウール24K 100㎜を基本とし、一部既存の筋交いや下地が撤去できず、厚みが不足するところはネオマフォーム使用。
・天井断熱:ネオマフォーム60㎜。既存の垂木間に納めた。
・開口部:1階はアルミ樹脂複合サッシを設置。2階は一部の窓をアルミ樹脂複合サッシに新設。その他は樹脂製内窓を設置。
断熱材施工![]() 床断熱:スタイロフォーム90㎜ |
断熱材施工![]() 壁断熱:高性能グラスウール24K 100㎜, 筋交いや下地によりネオマフォーム |
壁断熱施工 |
2階開口部:アルミ樹脂複合サッシを新設 |
改修後の断熱性能![]() 改修後の外皮性能 (赤はM邸) 図左:UA値 図右:部位別のU値 (環境デザインサポートツールを使用) 外皮平均熱還流率UA 0.66W/㎡K 熱損失係数Q値 2.29W/㎡K |
改修後の建物性能
| 改修後 性能診断結果(After) ■ ![]() |
![]() 一社) 住宅医協会 住まいの診断レポートM邸 |
photo
■
■
■
■



















































