住宅医の改修事例 №130 育まれてきた住まいのストーリーを大切に〜古民家ゲストハウス
山﨑 健治( 住宅医 / 有限会社こころ木造建築研究所 / 静岡県 )
設計概要
設計依頼〜調査、基本設計
■2017 夏、藤枝市にてお茶農家を営まれているKさんより相談があった。「毎年海外からたくさんの方がお茶仕事体験に来ている。周辺に宿泊施設が無い為、所有している古民家を改修して民宿をつくりたい。」
古民家は20年程前に近所の方から購入し、3年程前に屋根と外壁、窓の改修工事をしたが、内装は手付かずとなっていた。また、当時は市役所に相談に行ったそうだが、開発審査会の許可が難しいと言われ、申請が曖昧となっていた。
■設計依頼を受けて建物調査。劣化、耐震、断熱、いずれにおいても問題点多々あった。特に基礎無しの構造に対し、耐震設計をどのように進めるか構造設計者に相談して検討を進めた
■基本設計、概算見積もりをしながら計画内容を決めていく。お茶仕事の体験プログラムと合わせ、宿泊季節を限定して予算に合わせるよう検討していった結果、窓の改修は行わず、耐震工事を行いながら内部改修を中心に行うこととした。
建物ストーリー
■“ 昭和8年 新 12月 ”と書かれている棟札が出てきた。今から 89年前に建てられたと見られ、大きな改築や増築も無く農家の家として使われていたようだ。 Kさん曰く、「20年程前まで使われ、最後はお婆さんが一人で暮らしていた。その後Kさんのお父さんが購入したが使われることは無く、そのまま放置されていた。この地域には今でも同じような民家が建ち、まだそのまま暮らしている方もいる。昔から当たり前の景色だが、段々と変わりつつあり、この建物もこのままでは解体することになるかもしれないと思い活用を考えた。」
実測調査
■設計相談を頂いた後に下見を行い、その後、実測調査を行った。梁組、矩計、開口部、床下、小屋裏など。特に梁組について確認し、旧来の木組みを生かしながら耐震補強を行う方法を検討した。内部は土壁が剥がれ落ちている箇所も多く、柱や梁の痛みも目立つ箇所があった。床下は基礎が無く、所謂石場建てだった。シロアリ被害は見られず乾いた印象だった。床下地が改修されており、新しい根太が入っていた。また、屋根、外壁板は3年ほど前に取り替えたと聞いた。
![]() 外壁・屋根 |
![]() 小屋組み |
![]() 内部仕上げ |
![]() 床下地 |
平面計画
■静岡県農林漁家民宿とする為、住居用スペースと客室スペース、共用スペースの3つのゾーンに分けてそれぞれの面積を検討しながら平面計画を行った。1組だけの宿泊を基本に考え、友人や家族4人を想定している。近くに飲食店がない為、事前に買い出しをして自炊してもらうスタイル。近くに市が運営している温泉があるので、浴槽は設けずシャワー室とした。お茶仕事体験と、ゆっくりとこの地域の自然を楽しんでもらう宿泊施設として計画を煮詰めていった。

↑平面図(ブルー:宿泊施設、黄色:共用部分、ピンク:住宅用途、赤矢印:避難経路)
■
申請業務 開発、農林漁家民宿の確認、調整区域内の用途変更
施設設計に移る前にいくつかの許可申請を行う。申請は大きく3つ。
■①静岡県開発審査会による市街化調整区域内の建築行為について
■②農林事務所による静岡県農林漁家民宿の確認
■③市街化調整区域内における用途変更。
①のハードルが高く、相談に行った時点では静岡県での事例がなく、申請をしてみないと許可が出るかわからないとのこと。近年の状況から審査会において議決され通過した。②は協力的な団体の為①が許可になれば問題ないとの回答、③の①、②の許可が出れば問題ないという事で全ての申請が許可になった。
■
構造設計 基礎
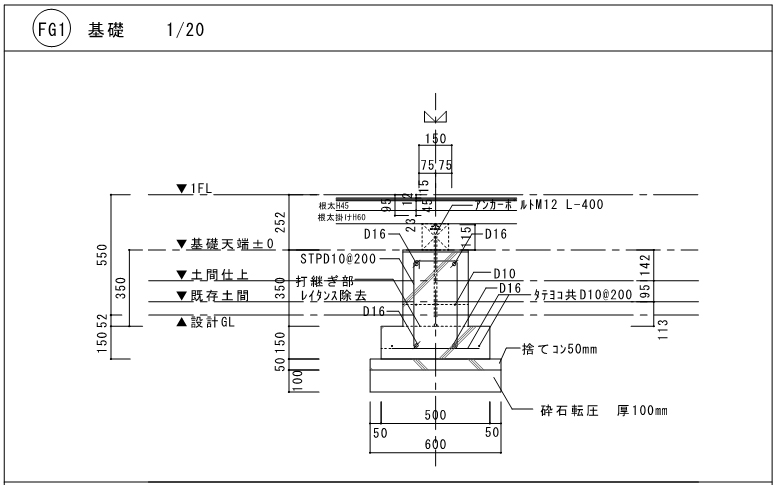
■設計依頼を頂いた後、基本設計と同時に構造設計者に相談。石場建ての建物についての基礎設計や、耐力壁、金物設置計画を依頼した。(構造設計:桜設計集団構造設計室 佐藤さん)
■基礎に関しては、全ての基礎を作るのではなく、耐力壁配置に合わせた効率的な基礎を作る計画とした。住宅医スクールで学んだ、型枠を大きくし、土台の脇から打設する基礎のつくり方を採用した。
![]() 土台施工後配筋工事 |
![]() 配筋全景 |
![]() 土台よりふかして型枠 |
![]() 脱型 |
構造設計 耐力壁・面剛性
■耐力壁については、構造用合板を主体とし、木組みに合わせた補強を計画した。
差し鴨居と梁の間や小屋梁の壁など、細かな区画に分かれた壁を軸組に起こして一箇所づつ検討して倍率の違う耐力壁を計画した。床面は構造用合板24㎜にて面剛性を確保した。屋根面は以前の改修時に構造用合板12㎜が張られたていた。
![]() 耐力壁 |
![]() 床剛性 |
構造設計 金物位置と選定
■耐力壁の配置に合わせて接合部の金物を選定した。重ね梁や束と梁など、複雑な構造に対して構造設計の佐藤さんに相談しながら金物種類を決めて行った。
実施設計 既存建具の配置計画等
■申請の進捗に合わせながら実施設計を進めていった。ほとんどの部屋を改修したが、小屋裏などはなるべく既存の姿のまま利用し、コストやデザイン、ストーリーを大切にした設計を心掛けた。中でも古建具の調査は発見も多く、組子やガラス、鍵など、なるべく雰囲気を損ねないように工夫して採用した。
Kさんのお父さんが古建具を全て残して別の場所に保管していた。サイズや状態を見ながら使用場所を決めて行った。古建具は洗い、補修、ガラスや鍵の交換を最小限行い、なるべく昔の雰囲気を残した。
基礎工事、耐力壁工事、金物設置
■基礎工事は土台を先行して取付 → 鉄筋工事 → アンカーボルトを吊るす → 型枠工事 → 土台の脇から打設
基礎屋も初めての施工だったが順調に進んだ。耐力壁は構造用合板の受材仕様とし、既存の柱が現れる真壁の仕上げを心がけた。
![]() |
![]() |
![]() |
![]() 狭い室内での打設は苦労も多かったが、ポンプと基礎屋のチームワークで順調に進んだ。柱は鋼製束を使ったりジャッキアップしたりと様々考えた。 |
■
仕上げ工事〜塗装工事、左官工事、建具工事
■基礎工事、耐力壁工事を終え、床や壁などの内装工事を行った。梁や柱は色が様々で艶がなかった為、綺麗に掃除してから見える範囲に古色塗りをした。壁は土壁主体とし、懐かしさのある雰囲気を残した。施主のお父さんが保管していた建具を使い、金物やガラス、壊れた組子を直しながら8割程度を再利用した。
外部は、漆喰壁を塗り直し、板壁を一部貼り直した。板壁は3年ほど前に柿渋を塗ったと聞いたがほとんど落ちていたので、綺麗に洗いを掛けてそのままとした。
完成〜土間玄関( 改修前 → 改修後 )
■改修前は既に建具が取り払われ内部はガランとしていた。区画はほとんど建具で仕切られていたと見られ、用途が明確ではなかった。施主の希望と木組みから間取りを決定した。メイン空間である玄関土間は古建具を再利用して従来の雰囲気を残しつつ、新しい土壁や古色塗りをした梁組を活かした空間とした。一部天井を外し、小屋組、野地板の見える吹抜け空間をつくった。


玄関とギャラリーを兼ねる土間スペース。障子や格子戸、ガラス戸などの古建具を多く再利用した。
■
完成〜土間ギャラリー( 改修前 → 改修後 )
■玄関土間スペースに、施主家族が生産しているお茶や、地域の特産物、地元の作家による陶芸や木工作品を展示する小さなギャラリーを作った。農家民宿での体験の中で、この地域を知ってもらいたいという思いが込められている。杉のテーブルは、この地域の木工や家具を作っている方に依頼した。
■
完成〜寝室・キッチン( 改修前 → 改修後 )
■寝室は、ベッド2台を置けるスペースとし、宿泊人数が多い時は、隣の和室も布団で寝てもらう計画。
キッチンはコンパクトな広さとし、作業テーブルを使ってワイワイ自炊を楽しんでもらう。宿泊者がいない時は、地域の方に開放して料理教室なども行う予定。地域の交流の場としても活用したい。
■
完成〜小屋裏・吹抜け( 改修前 → 改修後 )
■数年前に行われた、屋根瓦の葺替えと合わせて合板の野地板が貼られて室内から見えていた。合板ではあるが、垂木や荒野地板の雰囲気が面白いと思い、そのまま利用し天井とした。一部の1階天井を外して吹抜け空間とした。隠れてしまう小屋裏部分の床は構造用合板で面剛性を高めている。
■古民家の醍醐味は何と言っても梁組。力強さや優しさ、自然の形をそのまま活かしたデザインはやはり美しいと思う。
完成 広間・座敷
続き間となっていた和室、吹抜けのある板の間と座敷に分けて仕上げた。古材と新しい材料のバランスを考えた。
■
完成 広縁・寝室・小屋裏
限られている予算の中で全体をまとめるのはなかなか難しい。既存を最大限生かし、最小限の改修で止めた。
■
完成 水廻り
キッチンなどの水回りは現代的な設備も取り入れて使いやすさを重視した。
■
完成〜外観 ( 改修前 → 改修後 )
■屋根瓦、一部の板壁が3年前に改修されていた為、外部はなるべく手をつけず既存を利用した。一部の壁を漆喰で塗り直し、板壁は高圧洗浄で洗いをかけた程度。
■農家民宿は、「Naturali tea 椿邸」と名付けられた。完成後すぐにコロナになり外国の方の宿泊はまだ少ないが、現在は地域の交流の場として活躍している。
■外観はほぼ変わっておらず、漆喰や板壁が綺麗になった印象。この場所に昔から建っている当たり前の風景、でも改修前と違うのは、この建物に人が集まり、昔ここに家族が暮らしていた時のような活気が感じられる事。小さな古民家は、様々な人々がこの地域に訪れるきっかけとなり、人と人をつなげる場としてこれからも活躍する事を願っている。
LINK
・有限会社こころ木造建築研究所 http://www.kokolab.jp/
・Naturali tea 椿邸 (Facebook) https://www.facebook.com/NaturaliTeaTubakiTei/
住宅医協会information
・住宅医の仕事紹介(オンライン) https://sapj.or.jp/movielist/















































