住宅医の改修事例№167「継承のパッシブ・ベースin高知」記憶を継ぐ改修と、未来に備える耐震技術
萩野 裕一(住宅医 / CROSS建築設計事務所 / 高知県)

Photo by サンカメラ建築写真部
改修までのストーリー
今回の住まい手さんは、住宅医の萩野裕一さんが、かつて設計された「自立循環型住宅(パッシブエコハウス)」で育った施主の息子さんからのご依頼だそうです!
住まい手さんご家族は当初、新たに土地を購入し新築する計画でしたが、予算の都合と、祖母が遺した家の立地や環境から「祖母の家」を受け継ぐ決断をされました。パッシブエコハウスで育った息子さんが、時を経て…どんな暮らしをされる事となるのか、萩野さんが豊富な計画資料と共にまとめて下さりました。(住宅医通信編集部)
既存建物詳細調査
住宅医による3次インスペクション調査
住宅医による性能向上診断、劣化対策、耐震性、温熱性、省エネルギー性、バリアフリー性、火災時の安全性など、3次インスペクション調査を行った。
![]() 強度の計測 |
床下調査 |
小屋裏調査 |
調査の様子
調査時の既存住宅は築29年、建築家の設計で意匠性が高い。外部木部の劣化や、外壁や軒天に雨漏れ跡がある。基礎は鉄筋探査と強度を測定。一部にジャンカはあるが全体的に良好。床下の調査では断熱材が落ちていた。(調査日:2023年12月13日 晴れ)
![]() 外観(西面) |
![]() 和室B |
![]() 基礎:ジャンカあり 全体的にクラックなどはない |
![]() 2階 西デッキ:木部劣化箇所あり |
![]() 基礎:コンクリート強度計測39N/㎜ |
![]() 基礎:鉄筋あり |
![]() 倉庫:ガルバの継ぎ目から雨漏り跡あり |
![]() 倉庫:雨漏り跡 |
![]() 床下:断熱材が落ちている |
![]() 小屋裏:筋交い、断熱材あり |
改修前 建物性能
Before![]() 改修前:住まいの診断レポート(性能診断結果概要シート) |
Before 改修前 所見 拡大表示 |
■
改修計画のポイント
1. 二代にわたる信頼と継承
今回の依頼者は、かつてパッシブエコハウスを設計した施主の息子さん。
親世代:自立循環型住宅としての設計実績(設計者キャリア初期)
子世代:元の家の良さを知るからこそ、再依頼へつながる
設計者として、時間を超えて価値を継承する稀有な機会となった。
2. 「過酷な日常を癒す家」を目指して
ご夫妻は共に看護師。勤務時間も長く、身体・心の回復の場としての住宅が求められた。
開放的な景観(田園と大型商業施設のはざま)を生かし、自然と利便のバランスを設計に反映。
3. 南海トラフ地震を見据えた耐震性能の確保
ハザードマップ上では津波浸水区域外
南海トラフ巨大地震を見据え、一般的な補強基準を大きく上回る評点1.6以上を目標値に設定。家族の命と、被災後の生活拠点としての機能を担保します。
ピロティ状のインナーガレージの拡張を行いながら、構造補強も兼ねる設計とした
床面積は増えないが、構造性能と生活の質は大きく向上
液状化 出典:高知県防災マップ液状化可能性予測図より(2025年時)液状化の可能性は低い。 |
土砂災害 洪水・土砂災害(2025年時)洪水による浸水0.5~3.0mと想定される。土砂災害の危険性はない。 |
水害 震度分布より(2025年時)0.3~1.0mの津波が予想される。〇〇〇 |
水害![]() 震度分布より(2025年時) 最大クラスの地震が発生した際、震度7が予想される。 |
4. 融資・予算との調整
住宅ローンの可否が当初の大きな課題だったが、段階的に設計案と資金計画を調整。改修でありながらも新築に近い快適性・性能を目指した。
5. 建築家の元設計を尊重
祖母が暮らしていた既存住宅は、以前建築家が設計したもので意匠性が高い。それを尊重しながら、現代の生活と性能に対応できる住まいへ変換。
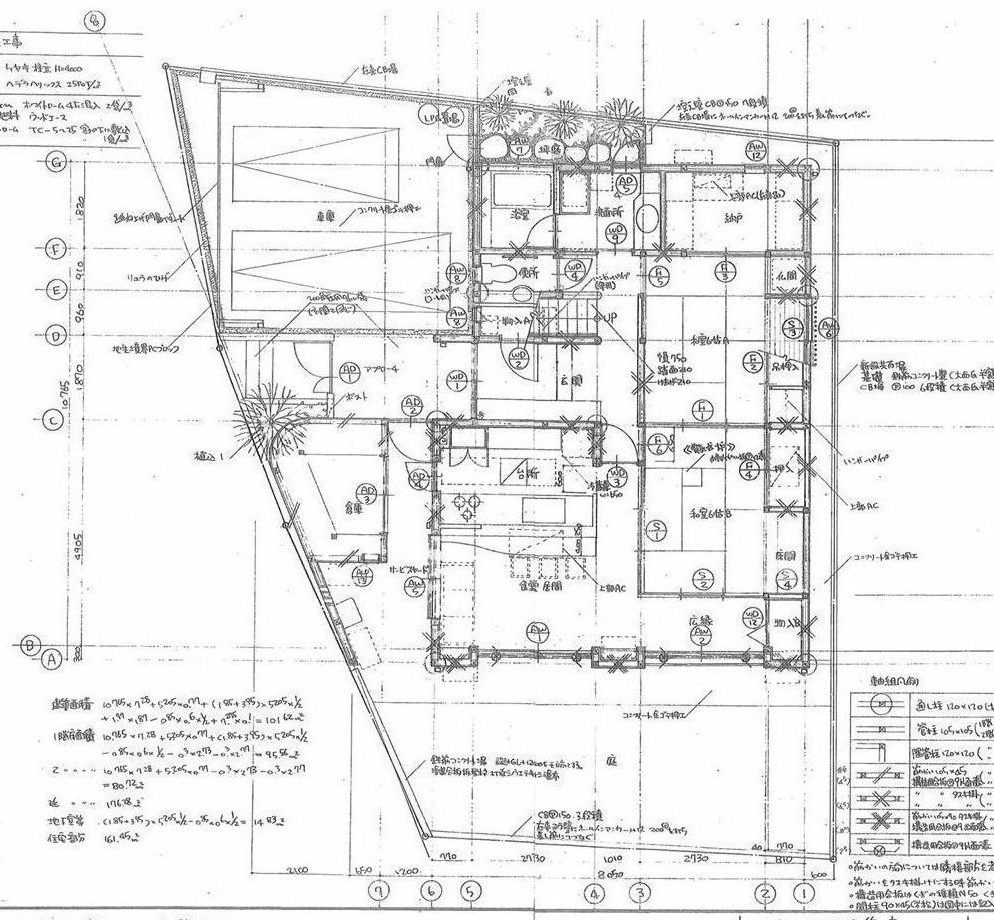
![]() Before 1階平面図 |
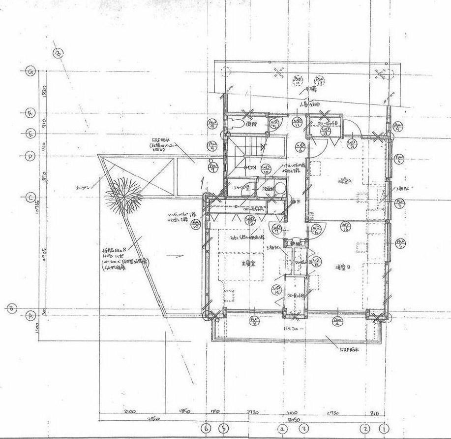
![]() 2階平面図 |
改修計画 プラン
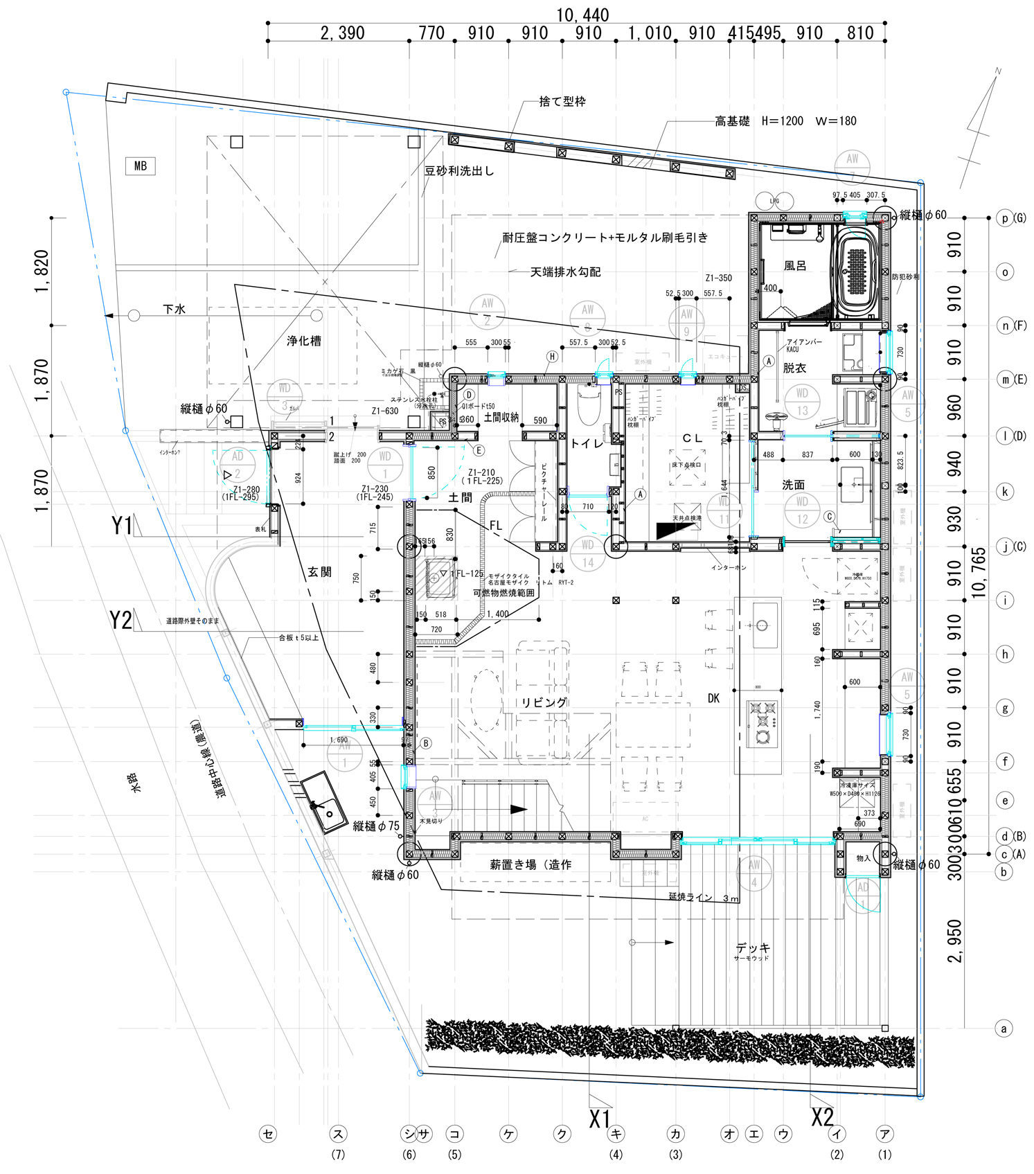
After 平面図![]() 改修後1階平面図 © CROSS architectural design office |
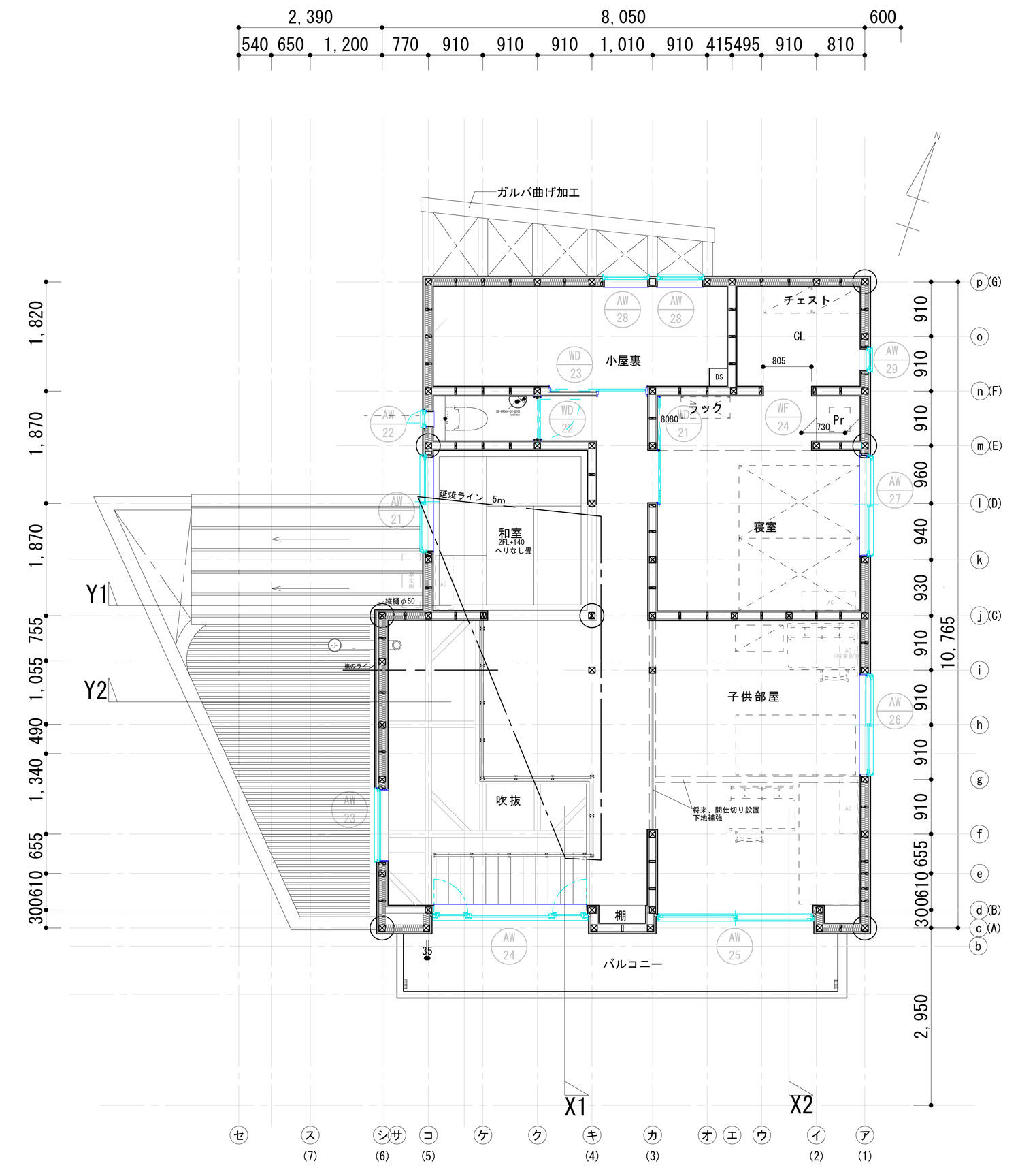
![]() 改修後2階平面図 © CROSS architectural design office |
![]() 改修後 X1 断面図 © CROSS architectural design office |
![]() 改修後 立面図 © CROSS architectural design office |
- 継承: 親子2代の縁、先代の建築家のデザイン、祖母の家、そして太陽光などの先駆的な思想をすべて受け継ぐこと。ピロティ拡張によるガレージ・半外部空間の利用。
- パッシブ: 住宅医として担保する「耐震1.6」の強靭さと、自立循環型住宅から続く「温熱性能」の両立。
- ベース(基地): 看護師として働くご夫婦が、料理や薪ストーブ、アウトドアを楽しみ、過酷な日常から解放される「癒しの拠点」であること。
建物の性能向上計画
●耐震計画
耐震補強を行う事により 上部構造評点Iw0.32 → 1.60 に向上。下記図は伏図。
| ■ Before ![]() 2階床伏図 , 小屋伏図 竣工図より |
After 2階床伏図 , 小屋伏図© CROSS architectural design office |
上部構造評点 改修前![]() 精密診断法による改修前の上部構造評点は 0.32 判定:倒壊する可能性が高い。 |
改修後![]() 改修後、精密診断法による上部構造評点は 1.6 判定:倒壊しない。 |
耐震 施工写真 ![]() 車庫腰壁 |
![]() 新設配筋状況 © CROSS architectural design office |
![]() 筋交い |
![]() 外壁下地耐力面材(タイガーEXハイパー) |
![]() アンカーボルト新設 |
筋交い |
金物補強:剛性火打ち |
● 温熱性能
温熱 施工写真![]() 基礎断熱:(A種押出法ポリスチレンフォーム保温板3種b)t=50㎜ |
![]() 壁 :高性能グラスウール 16kg t=105 天井:高性能グラスウール 14kg t=155 |
Before 部位別 熱貫流率 ![]() 天井 U値 0.51W/㎡K |
■白い文字 床 U値 1.24W/㎡K |
■白い文字 窓 U値 5.06W/㎡K |
After 部位別 熱貫流率![]() 天井 U値 0.20W/㎡K |
■白い文字 床 U値 0.36W/㎡K |
■白い文字 窓 U値 1.40W/㎡K |
主要部位の熱貫流率を改善することが出来た。開口部は窓リノベ補助金を活用している。
●災害への備え
私たちは今、災害という現実と隣り合わせの時代を生きています。だからこそ、この住まいには「美しさ」だけでなく、「耐え、守る力」を込めました。ここで育つ子どもたちが、変化の多い時代の中でも、しなやかに、そして逞しく歩んでいけることを心から願っています。
![]() 薪ストーブの背後の仕上げは特定不燃材 ガルバリウムスパンドレル ZiGを採用 検査時にサーモカメラで確認 |
![]() |
薪置き場は大きめにスチール角パイプで製作した軽四2台で3往復してこの量です。10日ほどで前列の半分ほど使ったそうです。 |
● 省エネルギー 性能
![]() 照明:LEDに変更。消費電力の削減と長く使用する事が出来る。 |
グリーンファン:第三種ダクト式換気、換気性能の安定性と維持管理の容易さからいつも採用している。赤丸は給気、緑の丸は排気口 |
既存の太陽光パネルを活用写真は改修前の様子 |
下図は、光熱費の分析。標準値(統計値)よりも使用エネルギーを削減することが出来ている。電気使用量を大きく下げることにより光熱費の負担を減らし、環境にも寄与している。
![]() 図1:事例№167光熱費を分析 |
図1:「環境デザインサポートツール」(環境履歴書)を使用 ・書式:「すまいの診断レポート 」ver.2022
資料まとめ 2025年 CROSS建築設計事務所
温熱性能の比較
| 熱損失計算結果シート Before ■ ![]() 図2 事例 №167 改修前 熱損失計算結果 グラフは 部位面積と熱損失割合(換気除く, (換気含む) |
After![]() 図3 事例 №167 改修後 熱損失計算結果 省エネ地域区分7地域 玄関土間の堺を熱的境界として計算を行っている。グラフは 部位面積と熱損失割合(換気除く), (換気含む) |
| 日射熱取得率 計算結果 Before 図4 事例№167 改修前 (日射取得結果シート)よりグラフを抜粋■ グラフは Before冷房期:部位別 部位面積と日射熱取得割合, 方位別 部位面積と日射熱取得割合 |
日射熱取得率 計算結果 After 図5 事例№167 改修後 (日射取得結果シート)より抜粋■ グラフは After冷房期,暖房期:部位別 部位面積と日射熱取得割合, 方位別 部位面積と日射熱取得割合, 省エネルギー基準判定 |
一次エネルギー使用量計算 ■ ■ Before ■After ![]() 図6 事例№167改修前と後 判定を抜粋 ■ 改修後の判定は すべて「達成」 |
図1.2.3.4.5:「環境デザインサポートツール」(熱損失計算シート)(日射取得計算シート)使用/書式:「すまいの診断レポート 」ver.2022
図6: 国土交通省・国立研究開発法人 建築研究所「住宅版 省エネ計算プログラム」使用
資料まとめ: CROSS建築設計事務所 2025年
改修後 レーダーチャート
After![]() 改修前の建物性能:ピンク、改修後:ブルー 改修後:住まいの診断レポート(性能診断結果概要シート) |
After![]() 改修後 所見 拡大表示 |
改修後の建物性能は、耐久性(劣化対策):等級3、耐震性: 等級3相当、温熱性:断熱等性能等級5、省エネルギー性:一次エネルギー消費量 等級6、全ての性能向上を行うことができた。
photo
■
■
■
■
■
■
















出典:高知県防災マップ液状化可能性予測図より(2025年時)









2階床伏図 , 小屋伏図






筋交い
金物補強:剛性火打ち


床 U値 1.24W/㎡K
窓 U値 5.06W/㎡K
床 U値 0.36W/㎡K
窓 U値 1.40W/㎡K

薪置き場は大きめにスチール角パイプで製作した軽四2台で3往復してこの量です。10日ほどで前列の半分ほど使ったそうです。
グリーンファン:第三種ダクト式換気、換気性能の安定性と維持管理の容易さからいつも採用している。赤丸は給気、緑の丸は排気口






























私たちは今、災害という現実と隣り合わせの時代を生きています。だからこそ、この住まいには「美しさ」だけでなく、「耐え、守る力」を込めました。
