住宅医の改修事例 №151 民家を福祉施設として再活用 地域のコミュニティセンターへ
村田知也(住宅医 / 山根木材リモデリング㈱ / 広島県)
改修の概要
都市計画区域外にある築約120年の古民家(住宅)を特殊建築物(福祉施設)へ用途変更しました。敷地内にある建物は複数あり、建築指導課や消防と協議を重ね様々な課題を整理し、地域の物語がつづくカタチをつくりました。この施設は利用者だけではなく、一部を周辺住民が活用できるようにして、地域の憩いの場としても運用されています。
ご要望は『古民家・空き家』を地域の親交の場として再活用したい
クライアントから【 建物 】の相談ごと
① 地震で壊れそう
■➡ 耐震診断・耐震補強
■※用途変更で構造規定の確認や審査はなかったがクライアントへ提案し実施
② 冬は寒く、夏は暑い
■➡ UA値計算
■※用途変更後は住宅ではなくなるが既存住宅ということでUA値計算
③ 不朽や劣化が心配
■➡ 一部解体も提案 ※住まいの診断レポートで詳細に報告
④ 古民家の雰囲気や構造材を活かした空間づくりとしたい
■➡ 鴨居や天井は低いが再利用
■※古民家では、高さと真壁について検討事項になる
【 運営計画 】
① 居宅介護施設をベースにした施設にしたい
■➡ 用途変更(確認申請必要)
② 運営、維持していくのにランニングコストを考慮したプランにしたい
■➡ 断熱性能の向上他
③ 利用者だけではなく地域住民も活用できる場所にしたい
■➡ 庭の設置と子供用トイレの設置
【 法的検討事項 】建築指導課
① 法的整理(確認申請)
■➡ 確認申請書、検査済証がないため、現状の報告を求められた
② 福祉施設・居宅介護施設への用途変更(確認申請)
■➡ 12条5項報告のようなものを求められた(都市計画区域内で検査済等あれば、現状の報告は不要となる)
③ 福祉のまちづくり条例(ふくまち)への対応
■➡ 努力義務
■※行政の基準よりも、介護士さん達の意見を重視した
消防署
① 用途変更建物の消防法適用
■➡ 確認時:設置計画届
■完了時:設置届(完了検査)
② 周辺建物(納屋等)のあつかい
■➡ 緩和規定等について助言あり
現況調査・ 建物詳細調査
建物詳細調査
敷地と敷地内にある、母屋、納屋、蔵、診療所、離れの調査を行った。
■納屋、離れ、蔵は、雨漏り等で痛みがひどかった。
■診療所は継続して利用されることから、同一敷地内の建物とせず、調査は行わなかった。
調査メンバー
・床下,小屋裏班 2名
・敷地班(測量)2名
・建物(測量,劣化確認) 5名
・屋根,外壁班 1名
※屋根の確認は最近ドローンを使うこともある。
住まいの診断レポートを活用し調査を実施した。
■過去、改修や増築をしており、伝統構法と在来軸組工法が混在した建物であることが判明した。
■診断結果はすべての項目で基準を下回り、性能向上を含めた改修を実施することを提案した。
■土壁の垂れ壁部分では、一部、柱が折れているものがあり、差し替えが必要と報告した。
既存室内![]() 天井、鴨居が低い |
既存室内 床の高さがバラバラ |
既存室内 配管経路がとれていない |
アスベストの調査![]() 検査サンプル採取前に散水 |
アスベストの調査![]() 採取 |
石綿含有建材調査者により建材を採取した。
2006年以前の建物ではアスベストが使用されている可能性があるため、各部位ごとに調査を実施した。この現場でも、分析会社からアスベストが混入している部位があると報告が届いたので、掲示板を設置して有資格者による撤去作業を行った。最近は分析費用が安価になってきているので、時々取引業者以外の単価の確認を行っている。
法行政との事前相談
建築基準法
① 現況調査の内容を既存図面、既存仕様書として整理し、建築指導課と事前打ち合わせを行った。
確認申請等の資料がなかったので12条5項報告というカタチで現状、住宅としての適法性について審査が行われた。尚、住宅としての不適合部分は改修時に是正するよう指導された。
② 用途変更後の用途名は 小規模多機能型居宅介護施設とされ、特殊建築物となるが、現状のままでは不適合となる部分を整理し、是正計画を作成した。
主な不適合部分は排煙、非常用照明、内装制限など、防火関係の項目が多かった。
一方で、不適合部分と判断された部分でも、是正が難しいという理由で、行政から緩和策について助言があった。
緩和された例(敷地設定)
新築時や増築時の確認申請時には、既存ブロックの仕様規定の適合性が確認される。不適合であれば、適合させるか、ブロック2段を残し、上部はアルミフェンスにするなどの対策が求められる。この案件では現場の周囲に塀(一部ブロック)があるが、塀の内側を敷地境界とすることで、塀が審査対象外となった。都市計画区域外だから?
消防の緩和
消防の政令区分と面積からスプリンクラー設備の設置が必要であるとクライアントへ事前に説明していたが、消防署の予防課に事前相談すると、使用しない部分は面積カウントをしないので、スプリンクラーの設置は不要にできると助言があった。その旨をクライアントに伝え、減築や閉鎖空間を設け、スプリンクラーの設置は不要とした。
消防に相談に行くと、ベテランの方は、現実に見合った助言をくれることが多い。この案件は300㎡を超えていたので自火報を設置したが、他の案件では、助言により、面積を300㎡未満に抑え、特定小規模施設用自動火災報知設備を採用した。消防設備士さんへの依頼が不要となり、工事においては配線が不要でコストの大幅な削減が実施できた。
劣化対策・維持管理
・母屋北側の突起部分は以前の増築部分で、おさまりにムリがあり、雨漏りがひどく、改善が見込めないため減築
・南西にある離れは庭にある池の影響で地盤沈下し建物の傾きがひどく、修繕にコストがかかりすぎるため減築
・北東の納屋は、将来減築とすれば、消防設備機器の一部を適用除外とすると助言を受けたため減築予定
建物の減築![]() 解体前 |
建物の減築![]() 解体後 |
広縁の柱と化粧大引の取り換え
・柱に大入れで化粧大引きが施工してあったが、柱は横揺れ時の影響か、割れが発生していた。また、化粧大引きは一部が腐朽していて、強度が弱くなっていた。
・上部の梁にサポートをいれて、傷んだ柱と化粧大引きを撤去して、新しい柱と桁を設置した。
木部補修![]() 劣化部分 |
![]() 部材取換え後 |
耐震補強
● 耐震補強(IW値の向上)
調査は非破壊のため 一般診断で行い、解体調査後、補強計画は 精密診断で行った。荷重は、事務所の積載荷重を見込んで計算した。
ある論文で、層間変形角が 1/15ラジアン まで見込めると記載されていたので、耐力壁は24㎜の合板を使った。
用途変更のため、確認申請上は 構造補強は不要であった。伝統構法の場合、限界耐力計算の採用も考えられるが、増築部や改装部が在来軸組工法であったので、一般診断法で診断を行った。
耐力壁![]() 壁補強(24㎜合板) |
![]() 基礎Ⅲ(以前改修分を再利用) |
● 耐震補強(座屈)
左写真の中央付近の柱が座屈していた。
柱寸法は120角であるが、鉛直荷重の負担が大きく、また、水平力がかかった際に柱へ負担がかかったと推測される。
下(左)の写真は柱と横架材で補強をした部分で、下(右)はダキ柱とタレ壁を設置して補強した部分。
躯体の補強![]() 柱と横架材により補強 |
![]() ダキ柱とタレ壁により補強 |
● 耐震補強(水平剛性)
小屋裏を覗くと、梁のスパンが大きく、また、部材が少ないため、不安定な状況であった。
荷重が適切に耐力壁に流れるようにタナカのオメガメタルブレースと構造用合板で水平剛性を高めた。
また、一部で束が座屈しており、少し傾いていたので、小屋組みの補強を行った。
![]() 断面: 端部金物とめつけ(現場にて検討) |
![]() 1階、2階小屋部分桁補強 ブレス(1間半 × 1間半以内を推奨) |
水平ブレス補強![]() |
水平合板補強![]() |
小屋組補強![]() |
温熱改修(健康に配慮)
確認申請で建築物省エネ法の報告対象外と言われた。用途変更後は住宅ではなくなるが、用途変更前が住宅であったことから、外皮計算を実施した。
改修前のUA値は 3.25W/㎡K、改修後は 0.81W/㎡Kと、基準値よりも温熱性能を向上させた。ηA値は改修前9.7を改修後3.6とした。用途変更のため、既存のままとする部分があること、また、既存のおさまりにより、断熱補強の難易度が高かった。
■
温熱性能の向上
■
床の傾き調整と断熱材の施工![]() |
壁の不陸調整と断熱材の施工![]() |
写真左:床に傾きがあったので、大引きや根太受け材でレベルを調整し、その上に根太(60㎜)を設置した。断熱材は根太間施工とした。
写真右:土壁の部分は内側にネオマフォームと防湿シートを設置した。タテリを調整材(60㎜)を設置し施工した。
(用途変更のため建築物省エネ法適合不要)
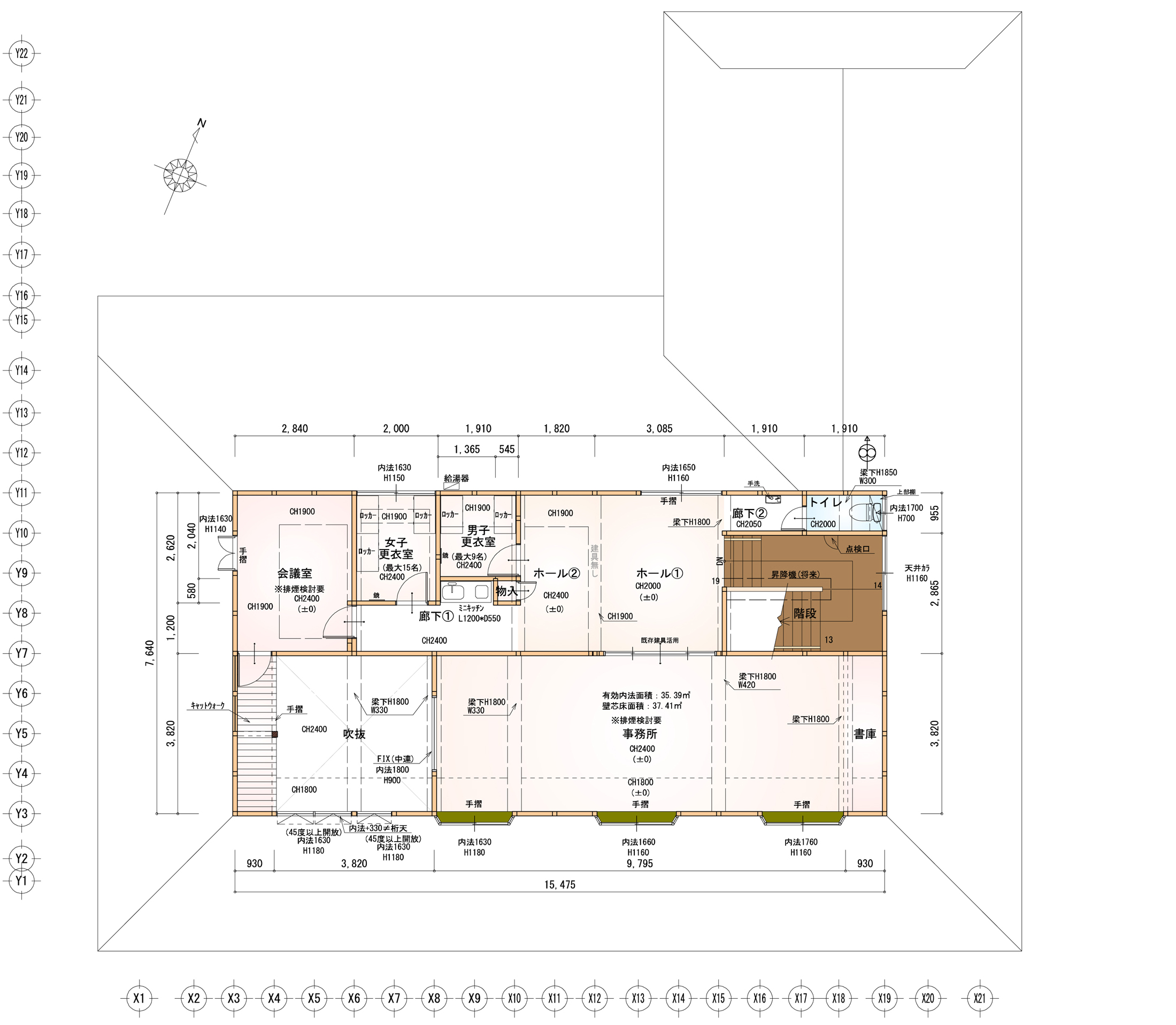
改修後 プラン
全体を段差なしにすることが要望であったが、どこを基準にするかでクライアントと協議を重ねた。構造や建物の傾きなどもあり、最終的には、和室から -60下がった部分を 基準FL とした。打合せの際にイメージパースで確認していただいた。
この建物の傾きは北側が下がっていたのでレベルの調整ができたが既存が多く残る部分の床のレベルが低いと、バリアフリーにするのに、大引きなどの構造材の調整が必要になる。
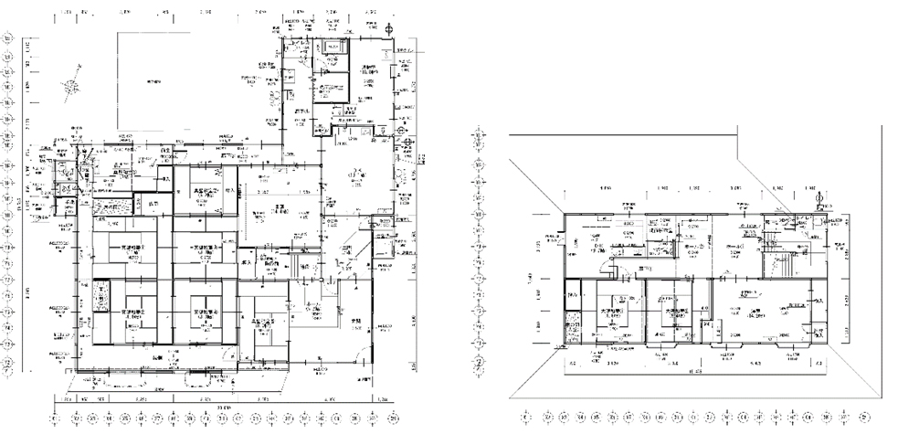
Before![]() 既改修前 1階平面図 2階平面図 |
After![]() ■改修後 1階平面図 |
After![]() ■改修後 2階平面図 |
Before![]() 改修前 南立面図 |
After![]() 改修後 南立面図■©Yamane mokuzai co.,Ltd.■ |
■
住まい手さんからは「展開図は解りづらい」と良くお聞きするので、展開図は現場用として、空間のご説明はイメージパースを利用しています。既存梁や鴨居を活用した見え方や家具や内装、照明などもパースだと伝わりやすいと感じます。
| イメージパース | ![]() 土間:施設と地域のコミュニティの場となる |
![]() サロン:天井や梁の見え方 |
![]() キッチン:配置の確認 |
バリアフリー改修
トイレ
幅広上吊り引戸を採用し、有効開口は1m。大型サムターンも取り付けた。幅広建具を使用する場合はモジュールに注意。
洗面所
不特定多数の方が使用するため、昇降洗面台(積水ホームテクノ)を採用した。自動と手動がある。感心したのは、ボウルの先端に、つかみやすい、取ってがあること。
浴室
入浴リフト(日本基準寝具)を採用した。下地補強が必要だったので、梁補強で対応した。採用したタイプは入口でロープを付け変えるタイプ。商品によっては一気通貫のものもある。
宿泊室と水廻り
現場の方からの要望でトイレへシャワー椅子スペースを設置。人手不足のため、介護しやすいというのも大事なこと。尚、建築側としては水が外に出にくいように20㎜の段差をつけたが、介護側としては、20㎜の段差に最後まで懸念があった。
花壇
工事中に依頼されてつくった花壇。大勢の利用者の方に利用してもらいたいので、座らずに利用できる花壇にした。北欧の施設の写真を見て、つくってみました。
火災時の安全性確保
● 114条区画
廊下と宿泊室の壁を準耐火構造の壁とした。建具の仕様は不問であるため、木製の幅広上吊り建具を設置した。
● 無窓階検討
消化活動上有効な大型開口部(直径1m以上の円が内接する又は幅75㎝以上かつ高さ1.2m以上)を確保
● 排煙窓の設置
排煙の有効高さの上部起点はマド側の天井が下がっている時は、その天井から下部の80cmが有効となるとされ、既存の窓が使えた。
● 非常用照明の設置(建築)
特殊建築物となるため非常用照明を設置した。器具の配置表に天井高による配光範囲が記載されているので、参照し、設置個所を設定した。
● 誘導灯・自火報・消火器の設置(消防)
前段でも触れたが、300㎡未満であれば、自火報を特定小規模施設用自動火災報知設備とすることができる場合がある。
別件であるが、民泊案件で消防と協議をすると、基本的に特定自火報の利用について助言してくれる。
![]() 誘導灯・自火報・消火器設置図 |
● 水道工事

① 既存の給水・給湯・排水管経路の確認
■➡ 既存配管経路図を作成(一部不明箇所有)
■※再活用できるものとできないものを判別
② メーターや井戸ポンプ等の確認
■➡ 設備機器増の為メーターを20㎜から40㎜へ
■※井戸はポンプ等を移設して庭だけに使う
③ 新規配管経路を計画
■➡ 新規配管経路図を作成(一部不明箇所有)
■※基本的に床下配管とする(点検口を設置)
■※外部配管は距離を縮小し、管を取り替えた
● 電気工事
① 機器増設のためメーターと幹線取り換え
■➡ 電柱からメーターまでは電力会社
■➡ メーターからの費用はクライアント負担
② 火災予防のため配線の取り換え
■➡ 既存利用する部分の施工が困難
■※良い方法がないかいつも悩む
③ エアコンをビルトインとして先行配管
■➡ 壁掛エアコンの配管経路確保が難しい
■※新しい提案が必要
竣工写真
解体すると大きな梁が出てきた。近くの山から切り出してきた地松でしょう。良く見るとチョウナで刻んだような跡がある。100年を超えて、お披露目された。
古民家改修の見どころの1つとして、古材や昔の職人さん達の技巧をいかに活かすかであるが、サロンはクライントの理解も得られ、うまく表現できた。

壁は漆喰塗りとして、明るい空間とした。壁には映像を映し出すことができる箇所を設定し、映画や音楽を楽しんでもらっている。
宿泊室
以前、増築された部分で、外壁部分は桁落ちしており、天井高さや、マドの高さに制限があった。このあたりも、事前に説明し、家具や内装、照明を提案した。北側寝室の梁下端はFL+1800程度
宿泊室は、利用者さんが部屋の認識がしやすい様に、部屋ごとに変化をつけている。
季節の良い時期には駄菓子屋などを呼んで近所の方向けにお祭りをしている。その時は、この土間が、近所の方へ開放され、地域コミュニティーの場となっている。
庭のデッキスーペースと子供用トイレは、地域の方々が活用出来る場所となった。
最後に
今回紹介した案件は、古民家を福祉施設へ活用した事例ですが、法律やコストなど、さまざまな課題が発生しました。
一方で、プロジェクトを進めていくうちに、難攻不落な課題ではないことも分かってきました。行政や消防、その他の関係者としっかりコミュニケーションを図れば、最適解を一緒に導くことができると確信したのです。これまでも、100を超える、リフォームに関わる申請を行ってきましたが、熱心な態度を見せると、こちらの思いを汲み取ってやろうという、前向きな回答を、多くいただきました。
コスト面では、すべてを刷新するのではなくて、さまざまな部材を再利用しました。古民家はポテンシャル(潜在能力)が高い建物です。土壁や貫板は耐震性に優れています。軒の長い庇は太陽光を遮へいし、省エネ効果があります。木材は地元の山で育った材が使われており、多くの二酸化炭素を保持してくれています。こういった良い材料を再利用することで、壊す、捨てるを削減し、コストパフォーマンスを向上させました。
価値ある古民家が、適切に評価されて、再利用されていくには、住宅医の力が必要であると感じます。古民家は日本の宝の 1つかと思いますので、1つでも多く、後世に引き継がれるよう、活動していきたいと思います。
村田知也
©Murata Tomoya, jutakui
No.0151民家を福祉施設として再活用 地域のコミュニティセンターへ
LINK
・ 山根木材リモデリング㈱ https://lp.remodeling-yamane.jp/
・画像クリックで動画が再生「民家を福祉施設として再活用 地域のコミュニティセンターへ」村田知也一
・ 各地の住宅医の日々「№07 〜土砂災害特別警戒区域と改修」村田知也 https://sapj.or.jp/jutakuinohibi2021-07/





























































