住宅医の改修事例№170 築80年の歴史を生かす「性能向上改修」で 3世代と地域の人々が集う住まい
岡本 博行(住宅医 / 株式会社OKUTA / 埼玉県)

Photo by © H2studio
ストーリー
歴史あるこの家に暮らす三世代は、親族や地域の人々の交流が多いが、間取りや性能について今の暮らしと合わないところがあった。耐震や温熱など総合的な性能向上改修のための建物詳細調査(性能向上インスペクション)を行うことで、非常にバランスの良く無駄の無い性能が実現されている。また将来のバリアフリーを考えた施工が行われており、建物のメンテナンスもしやすく家族にやさしい。住まい手の願いと歴史を大切に、次世代につなぐ性能向上改修の事例です。(住宅医通信編集部)
既存建物詳細調査 ①
2024年9月より3回に分けて建物詳細調査(性能向上インスペクション)を行った。1回目は施主様より 建築時、増築時、改修の経緯をヒアリングし 既存資料と実際の建物寸法の確認と内外の劣化診断を行った。母屋は伝統工法の平屋で築80年、小屋組みは新しい[材もあり]複数改修が行われている。建物東側は、43年前に増築された在来軸組工法 2階建て。「築80年の母屋」と「築43年 増築部」(写真右)に三世代の家族が暮らす。今回の調査は、情報を整理し建物全体を適切に改修する為、初回調査を進めた。
【 小屋裏】![]() 小屋裏(母屋):新旧の構造材で組まれている。既存は接合金物無し。増築時に建物意匠の一体化と修繕を目的とし小屋組みから やり替えたとのこと |
![]() 小屋裏(母屋):土壁と梁の隙間から ラス板が見える |
![]() リビング(増築部):冬寒い。ガスファンヒーターや火鉢が置かれる |
![]() 和室(母屋):縁側の使用は少なく、下屋の一部に雨漏れあり |
![]() 玄関(増築部):段差あり |
![]() 1階(増築部):寝室から離れている。窓は単板ガラスで冬は寒い。段差有り手摺なし |
【 基礎・床下 】詳細調査 ② ③
2回目の調査は、非破壊で小屋裏・床下の調査。3回目は、天井を開けての破壊調査と初期検討後の追加調査を行った。「母屋(伝統工法)」は、石場建て、敷石 + 土台、土壁塗り。部分的に無筋RC基礎で複数改修がされていた。[劣化は]南西外周入隅の土台が腐朽していた。「増築部(木造軸組工法)」の劣化は、内装の経年劣化のみであった。(写真右:床下での詳細調査 [野帳に調査内容を記録])
【床下】![]() 床下の改修履歴(母屋):土壁や竹小舞が一部見えている |
■![]() 床下の改修履歴(母屋):奥に外壁のラス板が見える |
![]() 床下(母屋):床下の土が入隅に堆積しており土に接する部分の土台が腐朽している |
![]() 床下(増築部と母屋):布基礎はジャンカあり、一部に鉄筋反応はあったが構造は無筋で評価した |
![]() 床下(増築部):根がらみ欠損、配管保温材脱落 |
![]() 床下(増築部):土台雨染み(進行形ではない)・基礎の欠損など |
改修前の建物性能
Before 【一般診断法 耐震診断平面図】![]() 改修前 :ホームズ君耐震診断Pro Ver.5図に概要を追記 |
・土壁は片面塗りとして評価・瓦土葺きのため建物重量は「非常に重い」
・接合部は全て釘打ち以下(増築部だけ、かすがい程度) ・筋交いはあるが、胴差まで届いていないため 45×90を15×90として評価 ・母屋は石場建て、増築部は無筋コンクリート基礎一部鉄筋の反応あるが、無筋で評価 |
| Before【改修前 性能診断結果】
|
Before![]() 事例№170 性能診断結果 バーチャート(改修前) |
ご要望は、既存建物の外観、構造材、造作材など「家の歴史を可能な限り残したい。大勢集まる来客者が使いやすく、建物の性能を向上させたい。」改修後の性能目標を以下とし計画を進める。
・耐震性の向上(上部構造評点1.0以上へ)
・温熱性能の向上(断熱等性能等級4~5へ)
・省エネルギー性は要望なし(こちらから適切な性能で設備のご提案を行う)
・バリアフリーに配慮した計画(将来身体能力の低下や介護に備えて元気なうちに)
計画・図面
Before【改修前平面面】右側の母屋は築80年(伝統工法)、左側は43年前に増築(在来工法)![]() 改修前 敷地配置図 1階,2階平面図 ©2026 OKUTA一級建築士事務所 |
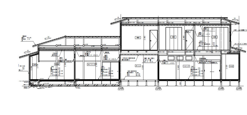
After【改修後 平面図】![]() |
After【改修後 断面図】![]() ©2026 OKUTA一級建築士事務所 |
■母屋のプラン
玄関と玄関ホールは、既存の意匠を生かし内装工事だけとした。母屋は施工前と後の和室天井高を同じにしたいご要望があった。和室の造作部材は再利用はできなかったが、各部材の寸法を確認して、材料は新しくしたが同じ納まりとした。化粧組子入りの襖も張り替えて再利用。セカンドリビングは施主様が寛いだり来客の用途によって使ってもらう。(法事の席でも着座の方が多い)。水回りは施主様の生活エリアから格段にアクセスしやすくなった。
■ 増築部のプラン
ダイニングキッチンは来客時に多くの方が利用できるテーブルとしベンチ収納も使える。腰壁には nijimokuさんの小波板を現場塗装した。リビングは真壁のようになっているが、実際は大壁納まりに付け柱としている(構造用合板の納まり、気密、意匠の兼ね合い)ダイニングは北側に位置しているので、採光と通風を兼ねた開閉できる欄間窓を計画している。
建物の性能を向改させる。「耐震性能」
耐震診断により、上部構造評点 Iw0.09から1.01まで向上
耐震診断は施工前は一般診断法、施工後は精密診断法を採用。
| Before
<地震被害想定3次元CG> 図・CG:ホームズ君耐震診断Pro Ver.5.1使用 |
After
<地震被害想定3次元CG>
|
・偏心率を1.2階とも改善させた(1階Y方向のみ 0.17 )。増築部は元々直下率が良くなく、プランの可能な限り直下率を上げた。
・圧縮、引張の両方に効かせたいが筋交いたすき掛けでは引き抜きが大きくなるため面材補強をメインに計画した。
・母屋、小屋束、小屋梁について金物で接合部を補強し、丸太梁など矩でない取り合いは構造ビスを併用した。柱頭柱脚金物は全数取付。
・下屋は全て構造用合板で水平構面を補強した。
・母屋は鋼製火打ちを随所に追加して、火打ち梁区画を構成するための梁も新規で設置した。
・間取り変更に伴う柱撤去は、枕梁を施工した。梁成を抑えたい補強梁は120角+構造ビス+両面構造用合板にボンド併用 N50縦横@100 の充腹梁とした。
上記図とCGは(改修事例№170):ホームズ君耐震診断Pro Ver.5.1.0.0「耐震診断」より抜粋 2025/12
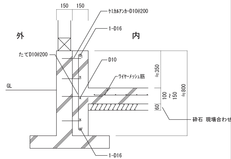
基礎改修:曳家・揚屋を行わず全面改修
小屋組みの荷重を考慮し先に支保工を建てるのは下がるリスク有りと現場の判断。
・礎石と敷石に柱を残したまま砕石、転圧を丁寧に行い、防湿フィルムを施工する。
・異形鉄筋とメッシュ筋を配筋し、防湿コンクリート(Fc18)を150mm打設する。礎石と敷石にはケミカルアンカーでコンクリートと定着を取る。
・小屋組みを支保工と梁材で支持しつつ、柱下端を切断して土台を入れ込み、鋼製束を入れて土台を支持する。
・主筋等の継手、アンカーボルトを設置し、立上りのコンクリートを打設。
・小屋組みを支持する柱の本数を増やし、できるだけ荷重が分散するようにした。
・基礎の通りは既存の主要な柱位置を起点にして、できるだけ区画で閉じるようにした。
![]() 西・南外周部 |
西・南外周部 |
![]() 土台を順次入れる |
西・南外周部 |
施工説明 |
After【改修後 新設基礎納まり】![]() FG1 ©2026 OKUTA一級建築士事務所 |
FG2 |
![]() FG3 |
FG4 |
After【改修後 基礎伏図】![]() ©2026 OKUTA一級建築士事務所 |
![]() ▲階高が高い耐力壁は構造用合板で対応した ![]() ▲西側の窓を撤去し耐力壁にした。下屋は構造用合板で水平構面補強。経年美化した化粧垂木だったが構造を優先 |
After【改修後 耐力壁・柱頭柱脚金物図】![]() 図 ホームズ君耐震診断Pro Ver.5 一部追記 ©2026 OKUTA一級建築士事務所 |
![]() ▲ほぞ加工不要の柱脚金物 ![]() ▲新規筋交い(旧筋交いは欠損等により評価しない) ▲2階の床上納まり |
After【改修後 2階床伏図・小屋伏図】![]() ©2026 OKUTA一級建築士事務所 |
![]() ▲充腹梁と鋼製火打ち ![]() ▲丸太梁仕口の処理 ▲新規梁と火打ち |
「温熱性能の向上」
After【外皮・設備仕様】
屋根:ネオマフォーム 60㎜+30㎜ / 外壁:グラスウール16K 105㎜ / 天井:グラスウール16K 155㎜ / 床:グラスウール24K 90㎜+42㎜(大引根太間) / 浴室:基礎立上り XPS3種 30㎜ / 耐圧上 XPS3種 30㎜
窓:サーモスⅡ-H Low-E複層ガラス(ガス有) / インプラス Low-E複層ガラス(ガス有) / 南は日射取得型、東西北は日射遮蔽型 / 玄関:カバー工法(LIXIL リシェント) / 木製両引戸(既存利用)
換気:第一種ダクト式熱交換換気(panasonic 気調システム) / 空調:壁掛けエアコン / 給湯:エコジョーズ24号 / 配管:ヘッダーユニット配管 / 太陽光発電:なし(構造優先)
©2026 OKUTA一級建築士事務所
内窓を利用する
外壁の工事が発生するため、既存サッシの状態を確認して内窓をメインに改修した。西面(短辺方向)のサッシを一部塞ぎ、耐力壁とした。道路側にはなるが、境界塀と植栽があるため 通りからの見た目の変化は少ない。過去案件で、アルミサッシ+シングルガラスの状態で気密測定をすると、ものすごい漏気が起こる。内窓施工後は気密の効果で漏気が止まる。
![]() 壁面:グラスウール16K + 調湿気密シート |
![]() 廊下天井:ネオマフォーム |
既存内窓 + Low-E複層ガラス(南側は日射取得型) |

「省エネ性能の向上」
シミュレーション結果
居住者の年齢幅が広いので、一括冷暖房では無く個別エアコンでの暖冷房とした。下図は、室内温度のシミュレーション結果。
| After シミュレーション 改修前:暖房23℃設定 23時~翌6時まで暖房OFFにしたときの温度シミュレーション。寝室の温度「5.6℃」 ![]() 図1 改修前のシミュレーション |
Before シミュレーション 改修後:同左条件にて 寝室の温度「15.4℃」 ![]() 図2 改修後のシミュレーション 左右共にQPEX 使用 |
断熱改修で、快適性を向上させ エネルギー消費量を削減させる
エネルギー消費が減ったということは、きちんと冷暖房が効くことになるため、寒暖差の身体的なストレスが減る。完全ではないが、ある程度の気密工事を行ったことにより床下からの外気流入が抑制できるという想定のもと。また、24時間換気はダクト式で若干正圧に調整しているので、これも若干の外気流入の抑制を期待している。
夏期は高湿な空気を流入させない目的も兼ねている。換気量が調整できるので来客が多い時は、一時的に風量を増やすこともできる。
| Before シミュレーション 暖冷房エネルギー,燃費計算結果(改修前) 年間 397,477円(1kwh 35円 下記条件の場合) ![]() 図3 改修前 QPEX使用 |
After シミュレーション(改修後) 年間 142,281円(1kwh 35円 下記条件の場合) ![]() 図4 改修後 |
| Before シミュレーション 一次エネルギー 計算結果(改修前) 省エネ法「非達成」143.4GJ ![]() 図5 改修前 住宅版 省エネ計算プログラム使用 |
After シミュレーション(改修後) 省エネ法「達成」100.2GJ ![]() 図6 改修後 |
図1,2,3,4(改修事例№170):一般社団法人新住協 年間暖冷房費計算プログラムQPEX Ver.5.0「性能計算結果」抜粋 2025/12
図5,6(改修事例№170):国土交通省・国立研究開発法人 建築研究所「住宅版 省エネ計算プログラム」Version3.9.0「2.判定」抜粋 2025/12
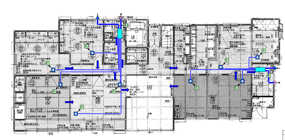
■空調計画
熱交換型ダクト換気を採用
間仕切りが多く、三種換気では換気ムラ・温度ムラが出てしまうことが考えられるため部屋ごとに風量が確保できる熱交換型のダクト換気を採用した。本来はC値を1.0以下(少なくとも2.0以下)にしたいところだが、予算と工期の兼ね合いで3.0前後を想定とし、正圧気味に調整することによって、外気の流入を防ぐように配慮した。(panasonic の気調システムを採用)
![]() 改修事例№170 換気経路図 ©2026 OKUTA一級建築士事務所 |
「バリアフリー性能」
以前は寝室から遠かったトイレを近くに配置し、将来の介助のしやすさも考慮している。今後、手すりが必要と思われる箇所には下地材の施工を行っているため、いざという時に安心。また可能な範囲の段差解消も行っている。
「火災時の安全性」
母屋の既存の和室造作を残しつつ、漆喰や珪藻土などの不燃材料を多用した。内装は準不燃以上を使用し板張りの面は石膏ボード下地とし、火災報知器を規定室の全てに取付。天井断熱でグラスウールを採用しており、小屋裏への延焼を少しでも抑える。また、小屋束や柱を増やしたことにより、万が一の延焼時に小屋組みからの倒壊を防ぐ目的もある。
「耐久性・メンテナンス性能」
母屋は全面に防湿コンクリートを施工し基礎を新設。増築部の基礎ひび割れは、エポキシ樹脂で補修。土台や柱の腐食部を交換し、全体にホウ酸防蟻処理を行った。また耐用年数を考慮し宅内の給排水管は全面やり替えを行いヘッダー方式とし、床下点検口を増やしメンテナンス性能を向上させている。
改修後の建物性能
After![]() 赤:改修前の建物性能 / 青:改修後 一社)住宅医協会「すまいの診断レポート」事例№170 レーダーチャート |
After![]() 赤枠:改修前の建物性能 / 点線:改修後 事例№170 性能診断結果 バーチャート(改修後) |
●伝統的な日本家屋の外観や内観をできるだけ残しつつ、住宅の基本性能を上げることができた。
●三世代が暮らすことになるので、それぞれの価値観の違いを合わせるのが難しいように思えたが、親子間で意思の尊重がきちんとできており、意見がまとまらないことはほとんどなかった。
●訪問客をおもてなす機能を残しながら、温熱性能の向上によって、住人と来客者共に心地良い空間になった。
●断熱と機械換気によって、冷暖房エネルギーも抑えられるようになっている。
住まいの歴史と継承

80年前の記憶を次世代に継承し、今後も長く使い続けることが出来る様に意匠やメンテナンス性能を検討しました。木製の玄関戸は、過去の強いアク洗いで素地が傷んでいた。お父様もアク洗いを希望したものの、本当に大丈夫か悩まれていました。お父様、職人とも話し合い、丁寧にペーパー掛けを行いオイル保護塗装としました。(写真右:木部の素地調整中の玄関戸)
After:既存の意匠を生かした玄関 |
![]() After:以前の雰囲気のままの性能向上改修 |
![]() ▲Before ▲After:化粧組子入りの襖は張り替えで再利用 |
photo
■
まとめ・最後に
一番のご要望は「耐震補強」ですが、母屋が伝統工法のため伝統工法として耐震補強するかどうかの決断が必要でした。調査による劣化状況とご要望を総合的に考えて、新規基礎・柱・梁・耐力壁を追加して軸組工法として耐震補強することを決めました。住宅医スクールの学びをリアルタイムで実践しました。三澤先生の「改修工事に完璧はない」は私にとっての金言で、限られた条件の中でも挑戦する勇気を頂きました。理屈をしっかり落とし込んでから施工監理・職人さんと補強の考え方を共有し、機能が果た
将来改修する技術者のためにも、アクロバットなことはできるだけせず、基本に忠実な性能向上改修を行っています。今回の調査・改修資料はデジタルとして残りますので、この記録が役に立ちます。
ひと冬を過ごされて「本当に暖かくなった」と喜ばれており、普段の暮らしや近況を聞くたびに私達も嬉しく思います。
間取りやデザインについても、元の家のかたちに馴染む素晴らしいものとなりました。
43年前の増築に併せて大改修を行い、現代の大改修で私達が関わらせて頂き、数十年後に次の世代がどのように改修するのかとても楽しみです。
岡本 博行
Copyright © 2026 Okamoto Hiroyuki , jutakui
No170 築80年の歴史を生かし「性能向上改修」で 3世代と地域の人々が集う住まい
LINK
・株式会社OKUTA ホームページ | LOHAS studio facebook | LOHAS studio インスタグラム
























西・南外周部
西・南外周部
施工説明
FG2
FG4









▲

既存内窓 + Low-E複層ガラス(南側は日射取得型) 








After:既存の意匠を生かした玄関

▲After:化粧組子入りの襖は張り替えで再利用



セカンドリビング
■■■■■■







