住宅医の改修事例 №146 「東山崎の家改修工事」築51年 中古物件の性能向上リノベ
長尾 賢(住宅医 / コトとワ。デザイン / 香川県)
背景・要望
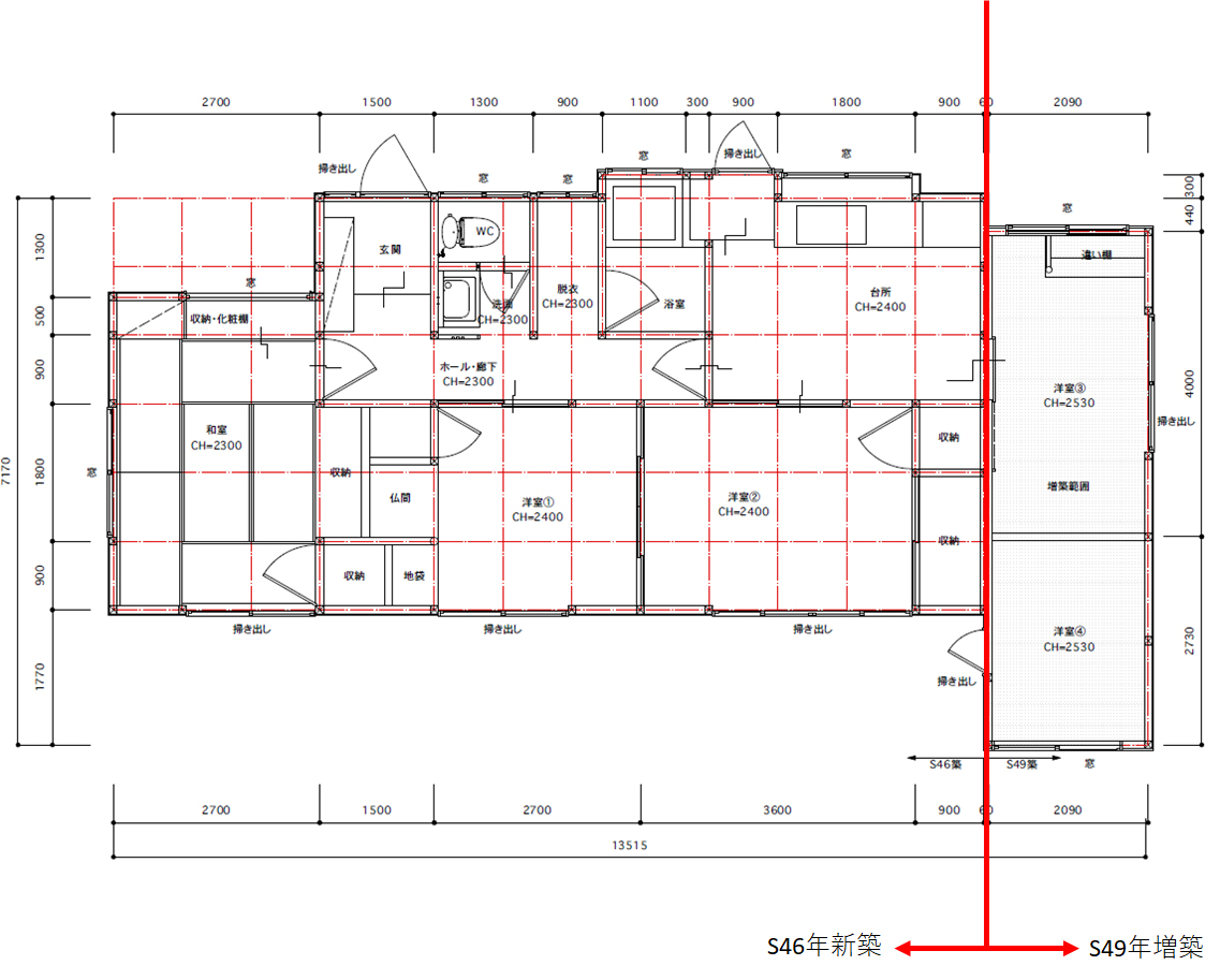
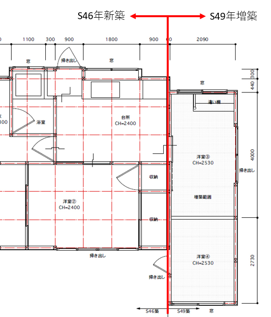
自邸として1971年(昭和46年)築51年の中古住宅取得をきっかけに築古空き家の性能をどこまで向上出来るか、フルリノベーションの計画がスタートした。既存の庭を残しつつ現在の生活スタイルに合わせた間取りと省エネルギーで「我慢することなく暮らす」を目標にした。この建物は後から東棟が増築されている。
![]() 物件情報 |
![]() 立面図(既存) |
![]() 平面図(既存) |
建物調査
建物の南側と北側には緑豊かな庭が残されている。
建築後、生活スタイルの変化による付け足しや改修等によりどこまでが新築当時のままかわかりませんが、化粧母屋・板金庇・破風鼻隠し等の劣化が見られました。
![]() 北庭 |
![]() 南庭 |
![]() 破風鼻隠し 木部の劣化が見られる |
![]() 南面 |
![]() 東棟(北側) |
![]() 東棟の屋根 |
【 内部 】
建物内部は基本的に真壁納まりで和室がメインであったと思われる。
中央二部屋と東棟北側は後に畳からフローリングへ改修したと思われる。
既存平面図にもあるように調査の結果、柱芯々が900㎜と厳しい寸法であるということが判明しました。
![]() 東棟(洋室3) |
![]() 中央(洋室1) |
![]() 中央(洋室2) |
![]() 和室 |
小屋裏・床下調査は目視で確認できる範囲のみ調査を行いました。理由はフルリノベーションが前提であったためです。小屋裏は平屋だとしても、材が細くスパンも飛んでいる状態でした。母屋が外れかけている箇所があり地震があれば屋根が壊れる恐れがありました。
一方で床下は、ジメジメした感じもなく健全でした。
小屋裏1![]() 母屋が外れかけている |
小屋裏2![]() 母屋が外れかけている |
床下1![]() |
床下2![]() |
改修後のプラン
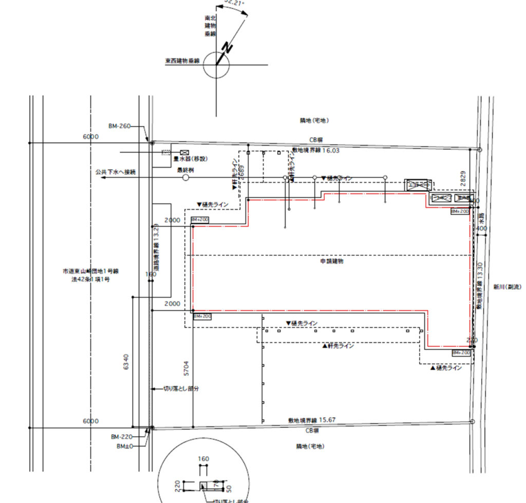
![]() 配置図(改修後) |
![]() 立面図(改修後) |
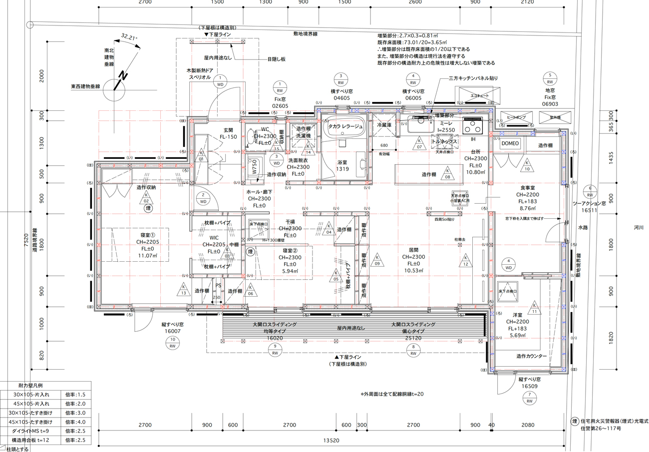
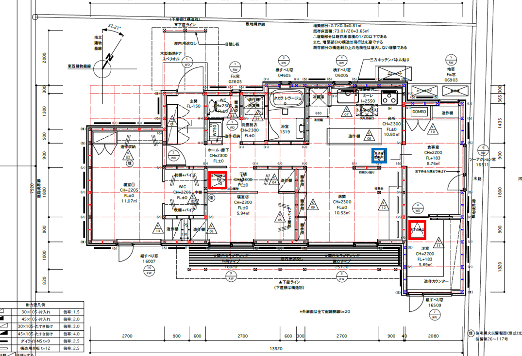
![]() 平面図(改修後) |
既存建物の外殻と間取りをほとんど変更せずに今の生活様式に対応する計画にしました。室内の温湿度や換気の事を考え建具は必要最低限としました。キッチン部のみ0.8㎡ほど増築しています。また、分断されていた屋根はシンプルにやり替え水平構面を確保しました。
耐久性の向上
東棟には床仕上げにまで蟻害があり床下の状態が悪いことは想像できたが調査が出来なかったので解体時に再調査としました。
解体時の調査では、増築時の工事でに筋交いを切ったままとしていたことが判明、蟻害も想像以上に広範囲に渡っていて増築部の構造材は取り替えることになりました。
東棟は昭和49年に増築 |
東棟:床の蟻害跡 |
東棟:解体時に筋交いの切断跡が見つかる |
■
改修内容としては、床下高さを確保するために土を鋤取った後で土壌処理を実施し防湿フィルム施工後、土間コンクリートを打設しました。
外部化粧母屋の腐朽部も撤去しました。脆弱であった小屋組みは屋根のやり変えで刷新することで解消しました。
土の鋤取り、土壌処理 |
防湿フィルム施工 |
土間コンクリート打設 |
屋根(小屋束・母屋工事) |
外部(木下地) |
外部(木下地) |
| 点検口新設
赤枠:床下点検口(それぞれの基礎区画) |
耐震性能の向上
既存建物の上部構造評点は、0.46
目視調査から算出した数値でしたが、この建物は過去に床上浸水があり、その修繕跡から土壁が撤去されていたことが解体時に判明。実際の評点は更に下がると思われる。
屋根 |
小屋裏では土壁が梁下まで届いていたが |
土壁が撤去されていた(解体後に判明) |
| 改修前(既存) |
改修後の上部構造評点は、1.54
フルリノベーションならではの外部耐力面材貼り、柱脚柱頭金物を設置し、不足していたアンカーボルトはあと施工アンカーにより補強しました。屋根面で水平構面を確保し構造一体性を考えました。
屋根:水平構面を高める |
壁面:耐力面材の施工 |
土台にアンカーボルトの増設、柱頭柱脚部に金物施工 |
改修後![]() 改修後「◎判定」上部構造評点は1.54 |
断熱性能の向上
改修前の外皮性能は、UA値4.26 ηAC値11.7
既存建物断熱構成ですが、天井・壁・床全て無断熱でしたサッシは当然ながらアルミシングルガラス。
夏は暑く冬は寒い生活をしていたことが想像出来ます。あらゆる暖冷房機器を使っていたであろうと思います。
小屋裏・天井(無断熱) |
壁(無断熱) |
床(無断熱) |
改修前![]() 【改修前】 棒グラフ赤色部分 外皮性能UA値4.26 ηAC値は11.7 |
改修後の外皮性能は、UA値0.24 ηAC値1.1
断熱改修の構成内容は、
・屋根 :高性能GW105 + ネオマフォーム100
・壁 :高性能GW105 + ネオマフォーム50
・床 :ネオマフォーム100
・サッシ:樹脂サッシAPW430
断熱材施工 屋根(高性能GW105 + ネオマフォーム100) |
断熱材施工 壁面(高性能GW105 + ネオマフォーム50) |
断熱材施工 床(ネオマフォーム100) |
外部 |
内部 |
内部 |
気密測定(1回目:施工途中)![]() |
気密測定(2回目:完成時)![]() |
気密測定 結果 完成時:C値0.4㎠/㎡ |
改修後![]() 【改修後】 棒グラフ赤色部分 外皮性能UA値0.24 ηAC値1.1 |
省エネルギー性
【 改修前 】表1
給湯機器、冷暖房機器は従来の省エネルギーに配慮していない物を使用していたり、とても低い断熱気密性能により、暖冷房負荷がかなり大きくなっていることがこの表からもはっきりとわかりました。
【 改修後 】表2
HEAT20 G3相当まで行った断熱改修により暖冷房負荷が小さくなり省エネに配慮したエコキュートの使用。全ての照明器具をLED化することで一次エネルギー消費量をおさえることが出来ました。
太陽光発電システムを4.26KW載せていますが売電目的ではなく自家消費率を上げることが目的です。
【 改修前 】表1![]() エネルギー消費計算プログラム 建築研究所 |
【 改修後 】表2![]() エネルギー消費計算プログラム 建築研究所 |
バリアフリー性
【 改修前 】
玄関・廊下の幅は問題なし、浴室の広さはありましたが短辺寸法が短い。洗面やトイレでの介護は不可能。
生活様式に合わせた改修工事により、トイレ・洗面等には手摺が設置されていた。
基本的に和室で構成されていたからか廊下と各室に30㎜程度の段差がある。
![]() 廊下 |
![]() トイレ |
![]() 脱衣 |
![]() 浴室 |
【 改修後 】
建物のモジュールが900ということは調査によりわかっていましたが元々は真壁で改修後大壁化することで有効寸法が確保出来なくなったが、廊下と各部屋の段差を解消する事が出来た。既存の間取りをそのまま流用している。
![]() 廊下 |
![]() トイレ |
![]() 洗面 |
![]() 浴室 |
火災時の安全性
【 改修前 】
火源付近の内装制限は許容できる内容となっていたが、火災警報器の設置は無かった。
屋根瓦はスレート瓦葺きで、地域の防火関係規定は22条地域である。隣地境界線には隣地住人のDIYによる物置等があり、火災時の不利条件となっている。
台所 |
台所 |
屋根(スレート瓦葺き) |
【 改修後 】
火源付近の内装制限は適法とし加熱機器をIHとすることで安全性高めました。
屋根はガルバリウム鋼板葺きとしました。外壁はネオマフォーム(旭化成)の防火認定仕様を遵守しました。
キッチン(IH設置) |
外壁下地(防火認定仕様) |
屋根(ガルバリウム鋼板葺き) |
レーダーチャート
| 改修前 | 改修後 |
フルリノベーションの利点を活かし、新築同等の耐震・断熱改修を計画・実行することが出来たので省エネで、我慢することなく快適な空間を造ることができました。
写真
After 外観

外壁(徳島材):杉板貼り 無塗装として経年劣化を楽しむ。
■

■
■
■
■
■
まとめ
既存建物の間取りをほとんど変えることなく今の生活様式へ変化・対応させることが出来ました。
フルリノベーションの利点を活かし築古の中古物件を、新築同等の耐震・断熱改修を計画・実行することが出来たので、省エネで我慢することなく快適な空間を造ることができ、地震が来ても安心して暮らすことが出来る住宅となりました。中古住宅を取得すれば、その土地・建物・庭を手に入れることになります。
あるものをうまく活用することで、この場所でこれからも時間を紡いでいくとこが出来ると想っています。
■
長尾 賢
©Nagao Masaru, jutakui
No.0146「東山崎の家改修工事」築51年 中古物件の性能向上リノベ
LINK
コトとワ。デザイン( 長尾 賢 )https://kotowa-design.com/
住宅医リスト































































































