住宅医の改修事例 №143 KIP(kato Innovation Project)パッシブリフォーム・建具開発
徐 裕晃(住宅医 / (株)杉坂建築事務所 / 東京都)
KIP
建具メーカー役員の施主、住宅技術評論家南雄三氏、杉坂建築事務所による、建具 + 断熱 + 建築 の専門家が手掛けた「パッシブリフォーム」「パッシブ建具開発」の改修事例です。築40年の民家を住宅兼建具ショールームとして、さらには地元作家が個展を開き、地元とつながる場所となりました。住宅医の長期優良住宅先導事業採択事例です。
建具 + 断熱 + 建築の専門家
建具メーカー役員の加藤さんが住宅エコポイントの施行をきっかけに木製内窓の開発を住宅技術評論家の南雄三氏の協力のもと完成させる。
その出会い後、住宅のリフォームを南氏に相談したところ パッシブフォーム、パッシブ建具開発、そして会社の新たな事業として広げる構想を南氏が提案した。
東北の大地震があり加藤さんはこの計画は社会的使命でもあると考え、実施することを決意された。
建物詳細調査
この家は小屋裏にあった幣束(へいぐし)によれば昭和46年(1971)竣工で40年が経過している。長期優良住宅モデル事業に採択された「既存ドック」システムに従って現状調査を行った。
小屋裏の状態はとてもよいが、小屋裏で一部の梁及び野地板に白色腐朽菌がみつかり、特に北西角の一帯で、後日屋根を剥がしたところ3mの高さまで白蟻の被害が激しかった。
床下は、既存床を 合板+無垢板を張るリフォームをした部屋の床下で、白色腐朽菌がみつかった。また、玄関脇の土台で多数の蟻道があり、土台をつつくと簡単に割れて中は激しく白蟻に喰われていた。
建物詳細調査![]() 住まい手の加藤さんと共に床下を調査する(右 南先生) |
床下(居間の下)![]() 合板に白色腐朽菌がみつかった。居間 床は数年前にリフォームし、下地は合板で仕上は無垢の檜張り。 |
床下![]() 幾つもの蟻道が大引や土台に絡まっている。 |
床下![]() 太い蟻道のある土台を叩くと穴が空いてスカスカの状態。 |
基礎![]() 基礎下を掘りフーチングの有無を調査 |
基礎![]() フーチングのないことがわかった。 |
壁の内部![]() 壁の中は部分的にグラスウールがある程度で、断熱がないに等しい状況。 |
小屋裏![]() 小屋裏の状態はとても良く、妻の換気口から光りが入る。 |
1階の下屋![]() 下屋は金属製の瓦棒葺きだが、母屋、桁、野地板に白色腐朽菌がみえる |
![]() 下屋の妻(東側)にも換気口は造られていたが西側には換気口はない。北側、西側の軒天にも換気口はなく、白色腐朽菌の原因は通気性が無いためと思われる。 |
下屋(北西側)![]() 木材腐朽と蟻害 |
下屋(北西側)![]() 木材腐朽と蟻害 |
日射の状況
建物の敷地は、南面に駐車場と3階建てマンション、東面に元工場がある。建物の形状は、1階に下屋が廻り セットバックして2階が乗っている。写真は北が上。建物への日射しの状況写真をいただいた。
【 冬至 】

建物南側は、朝8時頃より日射しがあり1階の欄間に13時頃まで日射しが入る。二階の窓は14時頃から日蔭になる。
【 春分 】
![]() 春分・南・ 8時 |
![]() 春分・南・16時 |
![]() 春分・西・16時 |
![]() 春分・リビング・15時 |
南面は朝から16時まで、西は16時でも悠々、1階リビングには16時になっても陽が差している。高度が高くなっているので部屋の奥までは入らないが、高い分集合住宅の日陰ができない。パッシブ設計で必要な日射がとれることが確認できた。
パッシブ建具開発の取組み
パッシブ建具開発
南雄三氏の提案で定期的に建具開発のワークショップを行った。
| 【 パッシブ窓に求められる性能 】 ① 冬は日射を取入れ、夏は日射を遮蔽する。 ② 冬に日射を取入れながらもプライバシーは確保する。 ③ 日差しがある場合は取り込みたいが、なくなれば断熱になる。 ④ 夏に窓を開けながら防犯、プライバシーを確保する |
■
【パッシブ窓で求めたいことと矛盾】
① 冬は日射を取入れたいが、夏は日射を遮蔽したい。→A 格子入りFIX
② 冬に日射を取入れたいが、プライバシーは確保したい。→A 格子入りFIX
③ 冬に日差しがある時は取り込みたいが、なくなれば断熱したい。→B 空気循環断熱戸
④ 夏に窓を開けて通気をしたいが、防犯、プライバシーも確保したい。 →C ガラリ+断熱戸
①冬は日射を取入れたいが、夏は日射を遮蔽したい。
②冬に日射を取入れたいが、プライバシーは確保したい。
![]() |
A ![]() 2階南のFIX窓は木枠の両面に5㎜のガラスを接着剤で固定するもので、中に木製ガラリを挿入してプライバシーの確保と日射遮蔽を実現する。 |
③冬に日差しがある時は取り込みたいが、なくなれば断熱したい。
![]() 断熱内戸の上下に通気口を設け、閉め切っても日射熱を室内に循環することができるようにして③の課題を消化、日射がなくなれば一方の開口に設置逆止弁が窓と断熱戸の間に起こる下降気流を防いで結露を防止する。 |
B![]() |
④夏に窓を開けて通気をしたいが、防犯、プライバシーも確保したい。
C![]() 2階南の窓はFIX窓の脇に断熱通風戸を設置して、夏は通風、冬は閉めて断熱を図る。 |
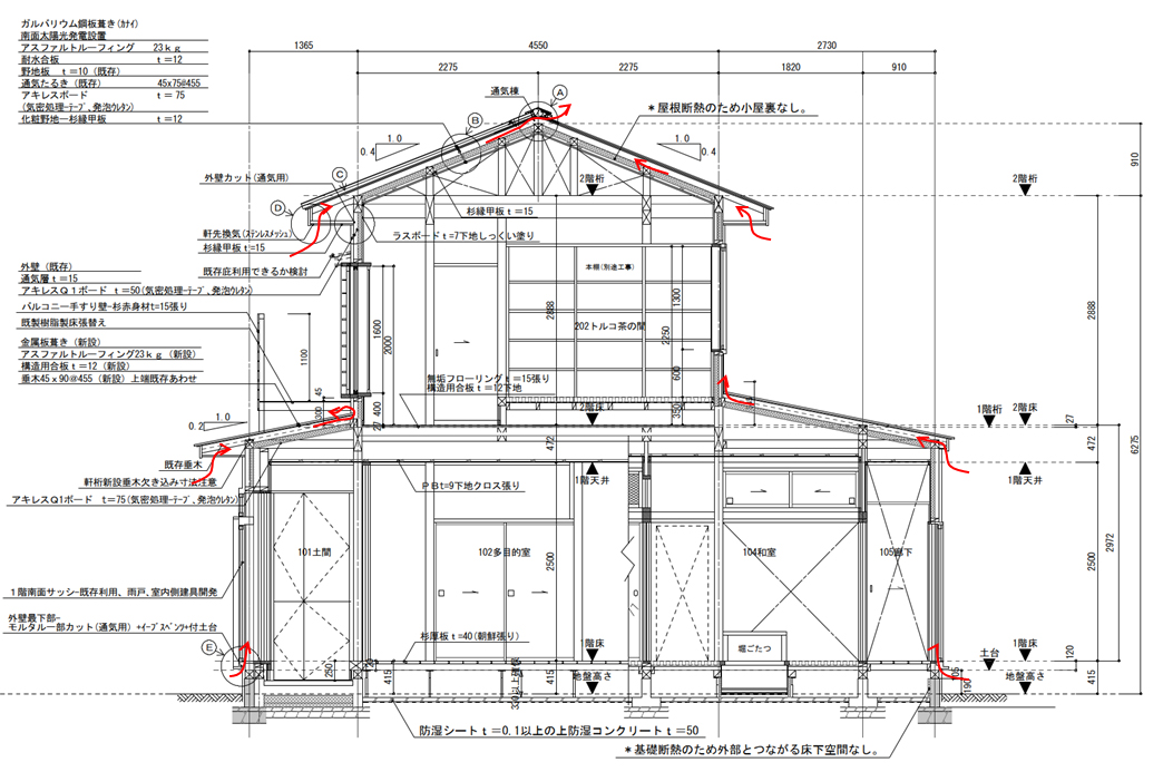
1階 建具
↑画像をクリックで資料を拡大
plan
~解放と閉鎖を両立する間取り~
断熱性能を上げることにより日と風を全体に配る開放的な間取りに、断熱戸で冬は熱が逃げるのを防ぎ、夏は日射を遮る閉鎖的な仕切りができる。
改修前の間取りは、各部屋への動線が悪く部屋が分断されていたた。改修後は各部屋へのつながりと使いやすさが改善した。1階西側の和室は高齢者の寝室としても使われていたが箪笥が並んでおり箪笥の収納場所を増築した。茶の間からは北側の庭を眺めることも出来る。1階南側半分は来客者も利用する共有スペースとなった。
2階中央の床は、スノコ状になっており採光・通風が出来る。夏の夜は天窓を開け廃熱としても利用する。中央の「トルコ茶の間」は南先生のトルコ伝統住宅のイメージ。
土間と室内は断熱戸で区切ることが可能。土間と室内は段差があることで冷気が多目的室に入り込まない。
外壁面に透湿性の無い塗装がされたばかりで、外壁は触らずに建物内部から断熱材の施工や壁内に入る湿気を通気する方法を検討した。
壁内通気・床下換気
[ 半身通気工法 ]
断熱材や横架材が壁内の通気を邪魔しない施工とした。
断面図:通気を邪魔しない工夫。
平面図:壁面内の半分に断熱材(ウレタンフォーム)を施工し通気スペースを確保。
半身通気工法 ![]() 室内からの施工 |
半身通気工法 ![]() 通気と気密を確保するために丁寧な施工を行った |
床下の換気
耐震性能の向上
基礎の補強
人通口、換気口をふさぎ基礎を連続させ、基礎梁として機能させる。
基礎梁間が大きい部分、耐力壁、新設壁部分には布基礎を新設する。
基礎梁間が大きい部分、耐力壁、新設壁部分には布基礎を打ち増しする。
南面には土間がくるため基礎立上がりがなくなる、ベタ基礎補強し土間の下地としても利用する。
維持管理
維持管理、更新の容易性
床下の点検口
床は朝鮮張りになっており、可動式にしておけば簡単に床板が外せるため点検もしやすく、大容量の収納となる。
バリアフリー
バリアフリー性 高齢用
バリアフリー 建具
高齢者寝室のそばにある便所、介護が必要な際には引き戸が全解放し、介護補助がしやすくなっている。
性能評価
長期優良住宅先導事業(性能向上レベルの明確化)
建設時に住宅性能評価を受けていない既存住宅に対し、現状の性能を把握した上で、基本性能目標を超長期住宅先導モデル事業に示される基本性能の基準とすることにより住宅ストックの質を確保することを目的としている。
Before After
最後に

伐採体験をする加藤さん、KIPでは西川材や飯能でつくられた手仕事の品が使用されている。
地域活性化 飯能の発信の場
施主の加藤さんは、地域の方々とのつながりを大切にしている。
森に入って自分で伐採体験をし西川材の森林組合の木を大黒柱に使い、飯能の紙ですいた草花をちらした和紙が照明、障子に使われ、飯能の土で焼いた手洗いがぬくもりを伝える、飯能のステンドガラス作家の作品が目を楽しませてくれる。加藤さんは「KIP」を新たに「木っぷ」と名付けた。多目的広場では和紙、陶器の展示会、見学会、セミナーが開かれてパッシブ改修、パッシブ建具開発を伝え社会、環境に貢献するとともに西川材、飯能の魅力を伝える発信基地となり地域の人々をつなげる場になっている。
徐 裕晃
©Jo Hiroaki, jutakui
No.0143『KIP(kato Innovation Project)』
LINK
・ 株式会社 杉坂建築事務所 https://www.sugisaka.co.jp/
・住宅技術評論家 南雄三 http://www.t3.rim.or.jp/~u-minami/
・加藤木材工業 株式会社 https://www.katomokuzai.co.jp/
住宅医協会information
・住宅医の仕事紹介(オンライン) https://sapj.or.jp/movielist/




























































