住宅医の改修事例 №159 2世帯住宅 離れの性能向上フルリノベ+
勝部 宏 (住宅医 / (株)勝部建築 / 島根県)
story
住まい手さんご夫婦は、出産を機にご実家で暮らす事となり 当初は実家の離れを「簡単にリノベ」とお考えだったそうです。11月 詳細調査を行った勝部さんは、とても寒い家だったので 「性能も向上させる改修をしませんか?」とのご案内がきっかけで、離れのフルリノベを行うことになったそうです。築22年 築浅で問題が無い様に思われましたが、隙間が多く 雨漏れによる劣化があり、自社の大工さんの丁寧な施工が行われたそうです。改修では難しいとされる気密性能(C値)からも丁寧さが伺えます。また耐震や温熱計画も事前にシュミレーションを重ね、建物の資産価値を上げる改修が行われました。住まい手の若夫婦は、エコで安全な暮らしに大満足のご様子です。(住宅医協会編集部)
既存建物
改修前![]() 外観(離れ) |
改修前![]() 内観(1階和室) |
既存建物の状況
建物詳細調査
天井裏は駆体の劣化などは見られませんでしたがとにかく隙間だらけでした。柱頭柱脚、筋違に金物なし。基礎は鉄筋入りで顕著なひび割れは無い。近隣の地盤は一帯が固い地盤。
解体をすると大きな蜂の巣が見つかりました。着手前に気密測定を行いましたが圧が上がらず測定不能(このまま平均的に圧が上がったとしたらこれくらいになるというあくまでも推測の数値としては14.54㎠/㎡と計算してもらいましたが実際はもっと悪いだろうとの事でした。)
![]() 天井裏 |
![]() 小屋裏に蜂の巣 |
解体中
解体後に雨漏りからの腐食が発覚。断熱材の裏側をつたっていた水の為、内部での症状はまったくなかった。
野地板、筋交いはボロボロ、柱も痛みがかなり進んでいる上に筋交いの欠き込みがあったため取り替えに良いタイミングで気づけて良かったと住まい手さんと話しました。
![]() 雨漏りからの腐食(壁面) |
![]() 筋交いはボロボロ、柱も痛みがかなり進んでいる |
![]() 雨漏りからの腐食(柱) |
![]() 雨漏りからの腐食(柱拡大) |
耐震性(既存建物)
既存建物の上部構造評点は 0.18。このあたりに筋交いがあるだろうと計算した数値から解体後に目視確認して正確な筋交位置を入力し算出。ここから1.5を目標に改修計画を始めました。
図[総合評価]: 既存建物の上部構造評点は0.18 建築基準法の想定する大地震動で
「× 倒壊する可能性が高い」判定となった。
■
既存建物6つの性能は
| 改修前(既存建物) ■ 住まいの診断レポート建物調査診断報告書 K邸 |
改修プラン
改修前 母屋は親世帯、離れ(配置図の赤枠部)に若夫婦が住む。浴室以外は分離している。

■
施主の要望は
・暑さ寒さを感じない家。
・電気代の安い家。
・地震に強い家。
・おしゃれなLDK。
・母屋とのつながりとプライバシーの考慮。
■
■■■■■■■■■■■■■
改修プラン
改修計画は
・屋根と外形は手をつけずに離れの玄関部分だけ増築、その際に既存の瓦棒屋根を撤去して増築部も含めた屋根を タルキック + 構造用合板で水平構面を確保。
・明るく広いLDKと続きの畳スペース。
・納戸はランドリースペースで洗濯機と幹太くんを設置。
・2階は子供室。
耐震計画(性能向上を検討)
改修後の上部構造評点は1.52。健全な基礎とはいえ強い引抜き力を負担できるかは分からないため柱頭柱脚金物Ⅱで検討。その為倍率の高い耐力壁でも低減されてなかなか評点が上がらなくて大変でした。リノベーションだったため面材が貼れたのが大きかった。耐力壁付近のアンカーボルトの補強と金物も10KNまではN値計算の金物を設置しました。
耐震計画
|
耐震計画
|
図[総合評価]:改修後の上部構造評点1.52。建築基準法の想定する大地震動での倒壊の可能性は
「◎倒壊しない」判定となる。
■
耐震工事
既存筋交いが柱欠込みだったので筋交いの干渉した部分の柱は、とても欠損が大きかったため取り替えました。耐力面材はハイベストウッドを使用、2階は下屋根が取り付いていた為外壁面に面材は貼るが耐力には入れない。面材は室内側に施工この部分だけは面材を貼る前に断熱を施工しました。面材と筋交いで剛性と偏心率を高めました。
施工写真![]() 欠損が大きかった柱は取替(しまね県産木材 使用) |
施工写真![]() 室内側(断熱材施工の上 面材施工) |
![]() 1階 外壁面 |
![]() 2階 外壁面 |
耐震金物
2階床は構造材の補強と追加材を入れて厚床合板四周釘打ちとして水平構面を固めました。屋根の改修は行わなかったため小屋部分には水平ブレースを設置。下屋根部分にも水平ブレースを設置して上下階の耐力壁が揃っていない部分の壁からの地震力が 1階に流れるように設計した。
![]() 水平ブレース(コボットブレース)配置図面 |
![]() 水平ブレース施工写真 |
制震装置設置
地震による揺れを軽減し、更に基礎への負担を減らすためevoltzの制震ダンパーを6本設置。このダンパーを選んだ理由は速度依存型なので建物の変形する速度に反応して効いてきます。
建物がガタガタ揺れた時に揺れる速さに応じてダンパーが効いてくるのが速度依存型なのでガタガタ揺れた時にオイルダンパーが地震力を吸収し続けます。建物を柔らかく揺らす事が出来るから力を100%発揮させなくても維持できる。
![]() 制震装置エヴォルツ配置図面 |
![]() 制震装置エヴォルツ施工写真 |
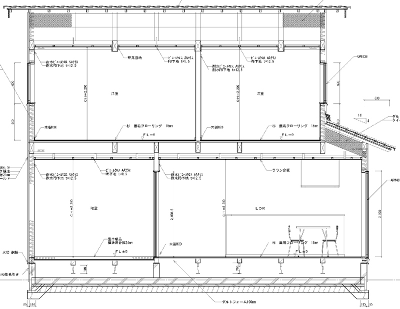
断熱性能(性能向上を検討)
床:ダルトフォーム吹付け100㎜
玄関土間立上り断熱:ミラフォーム3種b50㎜
壁:ダルトフォーム吹付け100㎜
防湿シート0.2㎜施工
屋根:ダルトフォーム吹付け300㎜
玄関周辺は高さが低かったためネオマ100㎜
玄関:YKK コンコード
サッシ:APW430
換気:第3種換気
断熱改修 施工写真
断熱材:ダルトフォーム吹付 |
天井断熱材:ダルトフォーム吹付 300㎜ |
壁面断熱材:ダルトフォーム吹付 100㎜ |
天井断熱材: ネオマフォーム100㎜ |
床断熱材:ダルトフォーム吹付 100㎜ (点検口の断熱材は取外し可能) |
開口部:APW430(全ての窓にハニカムブラインド設置) |
1階は山と隣家の影響で冬の日射取得が難しかったため全て遮熱low-e
2階は南面の引違いには断熱low-eを採用
結露計算による内部結露の確認
結露計算を行い、最寒日(-3.8℃76%)壁のみNG(×)が出たため、壁面に防湿シートを施工した。

図上下:環境デザインサポートツールより結露計算シート使用 K邸
夏や冬の平均気温等、何パターンかで結露計算をして断熱構成での結露判定を確認。
最寒日の壁のみNGが出た為に防湿シートを貼る事でNGをクリアした。(下図)
■
空調計画(暖冷房で使用するエネルギー量の計算)
暖房負荷は年間1386kwhも減りました。
あくまでもシミュレーションなのでエアコンの効率もあり一概には言えませんが、仮にこの冷暖房負荷で電気料金が38円/kwhだった場合は57,418円/年 の差となり35年のローンが終わる頃には 200万以上の光熱費で差が出ることになります。昨今の電気代高騰を考えると更に変わってきますので断熱の工事代金を差し引いても完全にお得になる事は目に見えているのです。
改修後の年間暖冷房負荷(夏季)![]() 暖房期 |
改修後(冬季)![]() 冷房期 ホームズ君省エネ診断エキスパート使用 K邸 |
1階の給気口はLDKエアコン上部に設置 2階はそれぞれ居室のエアコン設置予定位置上部に設置した。キッチンのレンジフードは連動給気シャッターをキッチン横に配置。
負荷計算を行い冷暖房負荷を決めました
今まで使っていた14畳エアコンを使いたいと言っておられましたが、家全体の負荷計算でも十分な容量であることが確認出来ました。浴室がないため冬場の加湿は加湿器が必要になることを伝える。出雲の平均気温だと6L/日だが最寒日には約13Lの加湿をしなければ、この湿度を保てないことをお引渡しの段階でお伝えしました。
| 既存AC 能力(kW) ・暖房:5.0 (0.8~6.6) ・冷房:4.0 (0.8~4.9) |
冷暖房負荷計算シート 夏季 ミライの住宅負荷計算シート使用 K邸 |
冬季 ミライの住宅負荷計算シート使用 K邸 |
気密性能
改修前は測定不能であった気密性能(C値)は、改修後0.9㎠/㎡となった。
当社は大工 工務店なので現場での気密施工も毎回同じ人の手で行います。新築で高気密住宅をやっているのでリノベでも同様に気密の施工をします。断熱と換気をうまく機能させるためにも気密性能も重要視しています。
耐久性・維持メンテナンス
雨漏れによる腐食材は取換え 屋根と外壁に通気層を設置した。
外壁は透湿防水シートの上に通気胴縁を設置してその上にラス下地を行う。地域特有のコウモリ、ヘビ、ネズミ等が入れないように上下部分には防虫ベンツを設置。屋根は垂木下での屋根断熱になるため軒先の面戸板には通気の穴を開けて裏からステンレスの防虫網を設置。また点検口を床下と天井に設置し維持管理がしやすい設計とした。
![]() 外壁・屋根には通気層を設置 |
屋根:地域特有の防虫対策を行う |
左:床下点検口 右:天井点検口 |
改修前後の性能を比較
断熱等性能等級判定 改修前![]() ・平成28年省エネ基準は「× 不適合」 ・総合判定は等級2 |
改修後![]() ・平成28年省エネ基準は「〇 適合」 ・総合判定は等級6 ■ホームズ君Pro使用 K邸 |
上図は、外皮平均熱貫流率(UA)値と 冷房期の平均日射熱取得率(ηAC)値と結露防止の基準の各等級で 最も低い等級を「断熱性能等級」としています。
改修後 6つの性能は…
改修前![]() ■ |
改修後 住まいの診断レポート建物調査診断報告書 K邸 |
Before・After
最後に
子育て世代である住まい手が命と健康の心配をしなくても暮らせる住環境を作れたことにとても満足しています。
生活を始めた住まい手からも「全てにおいて本当に快適です!」と満足し
壊して建て替えるという選択肢を簡単に選ぶのではなく、まだまだ使える木造住宅を生き返らせて有効活用する。
そんな技術と知識を持ち合わせて住まい手の最善策を見出していけ
勝部 宏
COPYRIGHT©Katsube Hiroshi, jutakui
No.0159 2世帯住宅 離れの性能向上フルリノベ
LINK
・(株)勝部建築 https://www.soumu-katsuken.com/



















































