住宅医の改修事例№155『思い出を繋ぎ、新しい暮らしを歩む』築34年 内部からの性能向上リノベーション+
山﨑 健治( 住宅医 / 有限会社こころ木造建築研究所 / 静岡県 )

COPYRIGHT © Kokoro-Mokuzou-Kenchiku-Kenkyujo
改修までのストーリー
幼いころから両親と共に暮らした我が家。結婚してアパートに暮らし、子供達の成長と共に狭さと今後の不安を感じるようになった。両親の事もだんだんと心配になり同居を考え始めた。主人も同居に賛成してくれ、私の両親との二世帯同居生活が始まった。同居は色々な問題もあり、父が亡くなった後母がリフォームを考えてくれたが、その母も亡くなってしまった。
家は広くなったが両親の使っていたスペースはそのままになり上手く使えない。主人と子供達は二階から降りて来ず、1階は私だけが居ることが増えた。少し寂しい。
母が夢を見ていたリフォームをして、家族みんなで楽しく暮らしたい。
母が残してくれた資金もあり、リフォームは問題ないだろうと憧れていた設計事務所を訪ねる。私の希望もたくさん伝え、でも資金的には大丈夫だろう・・・大丈夫では無かった。
この金額だと新築も考えてみては?と設計士から。でも両親が残してくれた建物を壊すなんて考えられない。主人も本当は新築が良いのかも? でも主人が一言言ってくれた。足りない資金は俺が出すから、この家を活かして好きなようにやってみたら。
憧れの薪ストーブも計画に入れ、両親の残してくれた家を活かしたリノベーション計画がスタートした。
既存建物 詳細調査
建物詳細調査 [設備]
建物周りの設備の調査を行った。浴室のリフォームを行ったり浄化槽を取り換えたりと、排水経路が複雑になっていた。井戸は今後も使っていきたいと希望があった。
■
[外部・内部]
スタッフ2名と共に調査を行った。外観の状態や間取りを調べる。奥様の要望も聞きながら、各部屋の状態を調べつつ使いにくい場所や困っている点などを聞いた。

■
[外部・2階内部]
2階は主に寝室とご主人のリモートワーク部屋となっていた。1階と比べると明るく日差しが差し込んでいた。納戸の上に小屋裏収納が有った。使っているのかいないのか? 大きさの割に収納物が無かった。
■
[小屋裏・床]
小屋裏と床下の調査を行った。小屋裏は1階の下屋のみ確認出来、床下は床収納から見える範囲のみで行った。
既存建物の性能は
耐震性 [現状] 耐震性 評価は「 × 倒壊する可能性が高い」ホームズ君 |
断熱性 [現状] 断熱性 判定は H28年省エネ基準は「 × 不適合」ホームズ君 |
調査と診断から見えてくる問題点と改善点
耐震性
既存の建物は布基礎+在来軸組工法、耐力壁は筋交いが入っているものとして(確認申請図と現状間取りから推察)、外壁材(耐力壁)は不明確な為耐力を評価せず計算。
耐震診断(一般診断法)の上部構造評点は0.24。筋交いや構造用合板等の耐力を増やす必要が有り。また、柱や筋交の接合部には、現行基準の金物が設置されていない為、接合部の補強も必要。
▼
■改善方針
■■新しい間取りに合わせた耐震壁を設置し、上部構造評価点1.0以上とする。柱脚金物、筋違い金物などの構造金物を設置する。
断熱性
断熱性能はUA値1.95、ηAC値4.3と、H28年度省エネルギー基準を満たしていない。壁の断熱材に隙間が見られ、しっかりと充填出来ていない。
| 外皮性能 [現状] 外皮平均熱貫流率 UA値1.95 等級1 冷房時の平均日射熱取得率 ηAC値4.3 等級2 |
▼
■改善方針
■屋根・外壁・床下、開口部の断熱工事を行い、等級4以上とする。
設備
衛生設備機器に問題は無いが、洗面やキッチンは老朽化している。また、屋外の排水経路が複雑になっており、排水が他の敷地を通って離れた箇所に出されている。
▼
■改善方針
■衛生設備機器の取替。屋外給排水経路の見直しと放流先の再検討
建物の外周部
瓦屋根、外壁共に数年前に改修工事が行われており、顕著な劣化は見られないが、基礎表面のモルタルや犬走に一部ひび割れがある。また、軒樋の一部が割れている。
▼
■改善方針
■基礎や土間のひび割れ補修と軒樋の交換
小屋裏
雨漏り、腐朽等は見られなかったが、金物や断熱材が不十分。
▼
■改善方針
■構造計画に合わせて適切な金物を設置。断熱計画に合わせて断熱材を充填する。
床下
防湿コンクリートは無く土のまま。基礎立上がりに換気口が複数あり、ひび割れもあり。
▼
■改善方針
■床下全面に防湿コンクリートの打設。構造計画に合わせた基礎補強と新しい基礎の設置
住まい手さんのご要望
ヒアリング(空間)
改修プラン
■■■■■■■■■■■改修後 1階平面図■■■■■■■■■■■改修後 2階平面図
性能向上改修の検討
耐震 (既存) 建物の性能
既存建物の耐震診断(一般診断法)の 上部構造評点は、0.24。筋交いや構造用合板等の耐力を増やす必要が有り。また、柱や筋交の接合部には、現行基準の金物が設置されていない為、接合部の補強も必要。
![]() ホームズ君耐震診断Pro |
既存時 地震被害想定 |
上部構造評点は0.24「× 倒壊する危険性が高い」 |
![]()
耐震 (1) 設計時の計画
改修後は大きな間取り変更は無いが、既存の壁にプラスして新しい耐力壁を設置。新しい耐力壁は構造用合板とし、既存の筋違いも適切な金物を取り付ける事で計算に入れた。2階は寝室の床を外して吹抜けとした。その他の床に24㎜の合板を張ることで床剛性を上げる計画。改修前に比べて上部構造評価点が上がり。1.04となった。
![]() ホームズ君耐震診断Pro |
設計時 地震被害想定 |
上部構造評点は1.04「〇 一応倒壊しない」 |
![]()
耐震 (2) 解体後、最終調整を行う
解体工事が終了した所で 改めて耐震診断を作成。解体して初めて見えてくることも有り、“ここは柱が無かったから耐力に含めず、ここは柱を入れえ耐力壁にする” など、 補強計画の最終調整を行った。上部構造評価点は1.12となった。
![]() ホームズ君耐震診断Pro |
最終 地震被害想定 |
上部構造評点は1.12「〇 一応倒壊しない」 |
断熱性能
改修工事方針
● 耐震
・数年前に外壁の改修工事を行っている為、外壁材(ガルバリウム鋼板)をそのまま残し、 耐力壁は室内側より 構造用合板12.5㎜貼りとする。
・柱脚・柱頭、梁の接合部は全て所定の金物を用いて接合する。
・上部構造評価点1.0以上を確保する。
● 断熱
・屋根、壁にはパーフェクトバリア13kg 厚100㎜を施工する。床は全て撤去し、ポリスチレンフォーム1種 30㎜を施工する。新規の窓はアルミ樹脂複合サッシを用い、全てペア硝子とする。省エネ等級4以上とする。
● 設備
・浄化槽、屋外配管を全て撤去し排水経路を変更する。駐車場を建物東側の敷地に移動し、浄化槽を設置する。
● 素材
・無垢の木材と漆喰を使い、極力自然素材の仕上げとする。内外共に耐久性のある素材を選び、今後のメンテナンス負担を極力減らす。
実施設計のポイントは現場に解りやすく
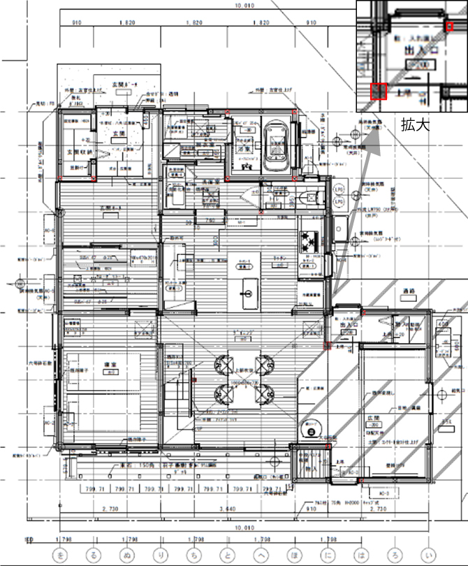
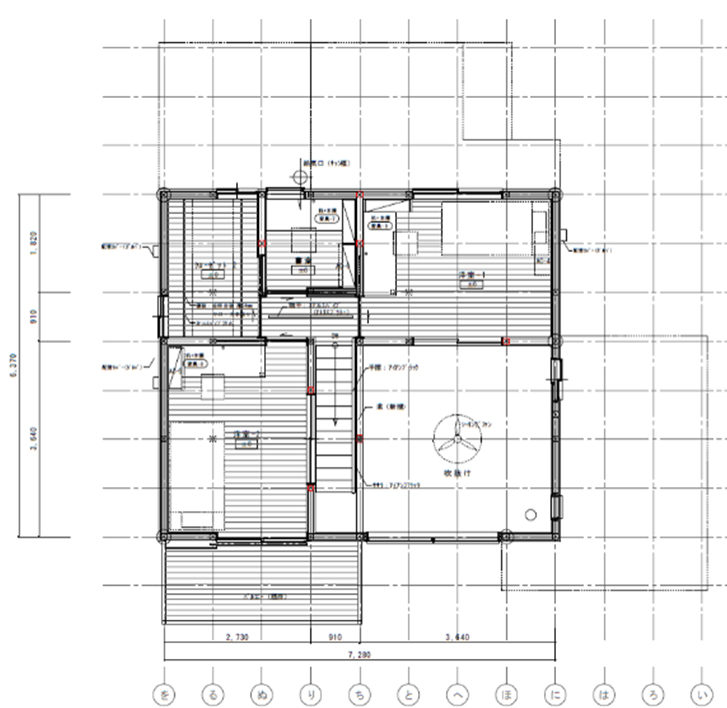
柱の追加、撤去をわかりやすく記載
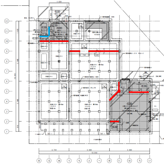
平面図でのポイントは、柱の追加や移動、撤去をわかりやすく示すこと。
改修工事の図面は、改修前と後がわかりにくく2枚に分けて書くこともあるが、一枚でわかりやすく記載する事が現場は解りやすい。
![]() 改修後 1階平面図 |
![]() 改修後 2階平面図 |
既存と新規をわかりやすく表現
既存のままなのか? 新規で制作するのか? 撤去するのか?
色分けなどでわかりやすく表現する。特に金物は種類も多く混乱するので、一目でわかる工夫をすることが重要
![]() 基礎伏図 |
![]() 土台伏図 |
軸組図で高さや位置を示す。
平面や伏図では高さの字情報がわかりにくい。軸組図で梁の高さや合板の位置を示す事で一目で情報が伝わる。
調査段階では軸組がわからない箇所も多いので、解体後に再調査して作成する事を心掛けている。
![]() 軸組図 |
施工の様子
[ 養生 解体工事 ] 現場にわかりやすい指示
解体工事は、範囲の指示を的確に行い、図面だけでなく現場にシールを貼ったり直接記入したりしながら業者に正確に伝える指示を行った。配線や給排水、インターネットなどの設備面も複雑で、それぞれの職人を入れながらの作業となった。
![]() 解体時の小屋裏 |
![]() 解体時の床下 |
[ 基礎工事 金物取付 ] 作業のしやすい環境づくり
床下の土を100㎜程度鋤取り、防湿コンクリー100㎜を打設した。耐久性だけでなく、足場が良くなり作業がしやすい。
状態を見て金物の取り付ける場所を検討する。
柱脚柱頭、筋違金物などを設置した。柱の欠損、土台やアンカーボルトの位置を確認して的確に入れる。
![]() 防湿コンクリート打設 |
![]() 補強金物の取付 |
[ 補強工事 ] 柱や梁の入れ替えや追加
間取りの変更に伴い、必要に応じて柱や梁などの軸組補強を行った。図面の指示だけでなく、痛みや構造的欠陥が無いか確認し、問題があるときは補強などを加える。
柱や梁の追加は仕口がつくれないケースも多い。
取付方を工夫し、金物も併用して強度が確保出来る納まりとする。
![]() 柱や梁などの軸組補強 |
![]() 梁の新設 |
[耐力壁・断熱工事] 性能が担保される施工
外周部の耐力壁は室内から 構造用合板12㎜を施工した。土台から床梁、床梁から小屋梁に確実に固定。継目の無い 3’x10’ 板を使用した。
壁・天井にはパーフェクトバリア13k 100㎜を使用した。床下の大引き間にポリスチレンフォーム1種 30㎜を施工した。
床下地の組み方に一工夫。根太まで撤去し、大引き間にボードタイプの断熱材を入れて床を24㎜合板で固定する。作業性も良く、性能も担保される納まり。
![]() 耐力壁 構造用合板12㎜ 3’x10’板 |
![]() 断熱材施工 |
【煙突工事・天井貼・左官工事 】職人の経験と技術に頼り、現場納めをまとめていく。
瓦屋根の煙突工事は納まりが難しい。薪ストーブ屋の経験を元に雨仕舞の良い施工を行った。
自然素材を使った仕上げ
杉板や漆喰など、極力自然素材で内部を仕上げていく。
![]() 瓦屋根の煙突 |
左官工事 |
天井仕上げ 杉本実板12㎜ |
【家具・アイアン工事 】下地との取り合いを考慮して現場に合わせていく
壁との取り合いを検討しながらキッチンやアイアンの階段などを取り付けた。新築に比べて下地の不陸や傾きが多い傾向がある。おさまりに余裕を持ち、現場で調整出来る工夫をする。
![]() 家具工事 |
![]() アイアン工事 |
写真
■
■
■
■
■
新しい暮らし
新しい暮らし新しい住まいが出来、明るく暖かな家になった。内部は殆ど改修したので以前の面影は少ないが、外観はほぼそのままで愛着がある。木や漆喰の快適な空間に包まれ、耐震や断熱補強のおかげでこの先も安心してくれして行けそう。新しい家になり、今では1階の空間に家族が集まるようになって毎日が楽しい。両親が残してくれたこの家、私たち家族の好みに変わったけど、両親もきっとこの家を好きになってくれたと思う。(住まい手さんより)
山﨑 健治
©Yamazaki Kenji, jutakui
No.155『思い出を繋ぎ、新しい暮らしを歩む』築34年 内部からの性能向上リノベーション
LINK
・ 有限会社こころ木造建築研究所 https://www.kokolab.jp/
・「ここらぼ通信」 https://www.kokolab.jp/magazine/
住宅医協会
・住宅医の仕事紹介(オンライン) https://sapj.or.jp/movielist/
・住宅医の改修事例No.0152「再び母と暮らす家」築34年の実家改修 山﨑 健治 https://sapj.or.jp/kaishuujirei2024-152/
・住宅医の改修事例No.0130「 育まれてきた住まいのストーリーを大切に〜古民家ゲストハウス」山﨑 健治 https://sapj.or.jp/kaishuujirei2022-130/
・住宅医の改修事例No.088「T邸 木造平屋 築23年改修工事」山﨑 健治 https://sapj.or.jp/kaishuujirei-2019-88/
































































