改修事例№0154 「6畳に孫7人が寝る家」から、14人の快適な家に。
松永務(住宅医スクール講師 / 一級建築士事務所アトリエMアーキテクツ / 静岡県)
After 住まい手の好きな南仏風をイメージしたスイス漆喰の外観に
大家族のストーリー
大改造!! 劇的ビフォーアフター のスペシャル「6畳に孫7人が寝る家」でご紹介された事例です。段上敷地に建つ建物は、一部腐食した鉄骨ガレージの上に在来の平屋が載る様々な問題を抱える建物でしたが、低コストで構造補強や温熱性能など性能向上を行い、大家族が楽しく過ごすための工夫が詰まった改修事例です。住まい手さんの要望を得るには番組のため「通常の設計以上にアンテナを張る必要があった」との事ですが、竣工1年後の住まいを訪ねる アフター・アフターでは、暮らしを楽まれているご家族の様子も伺える素敵な改修事例です。(編集 住宅医協会)
![]() 外観:東側アプローチ |
![]() 外部:南側テラス |
![]() 室内:食堂 |
既存建物の問題点
構造的な問題点
A. 木造の南側に筋交いが1箇所しか存在しない・・・解体するともう一箇所は換気扇設置のおりに切っていた
B. 鉄骨のガレージに木造が910㎜掛かる形で載っていて、不安定な構造形式
C. 鉄骨上部のデッキプレートに雨漏り腐食による穴が2箇所あり、下部の鉄骨も腐食
D. 玄関脇の在来浴室廻りから水が漏れて、周囲の構造躯体が腐食して床が傾く 外部柱も腐食して、屋根が落ちる可能性がある
E. 段上の敷地のため、平屋のアプローチが斜路と階段となっていて、スベりやすい
・ 富士山の溶岩盤の段上的な地盤にあるため、地盤自体は良好
![]() 既存平面図 ©Copyright Atelier M Architects |
![]() 既存ガレージ ©Copyright Atelier M Architects |
![]() A. 切り取られていた片筋交い |
![]() C. デッキプレート腐食 |
![]() D. 屋根、柱の腐食 |
リフォームプラン
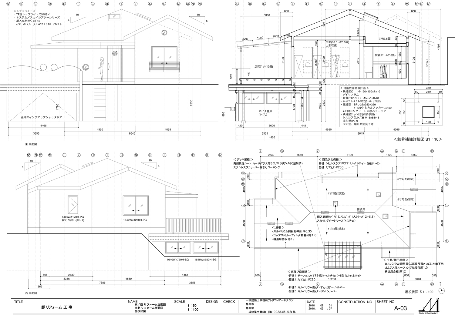
![]() 改修後 立面図・断面図 ©Copyright Atelier M Architects |
![]() 改修プラン 平面図 ©Copyright Atelier M Architects |
![]() 小屋裏空間 |
![]() ガレージ |
<リフォーム内容>
①. 大広間を中心に、本来の娘三人のための子供室を個室化するのではなく 「勉強コーナー」と「寝るコーナー」に分けて、広間に付属させています。
既存の住まいでも、北側の6畳個室二つを寝室部屋と勉強部屋とに分けて一緒の空間だったこともあり、各々の個室ではなくこうした三人の関係ができる空間が欲しいという要望ありました。また勉強コーナーのベンチクロゼット部が可動して2.5畳のスペースが大広間にできるのは、空手の練習をするためのスペースを確保するための工夫から生まれました。寝るコーナーの上には小屋裏空間があり、週末に集まった子どもたちの隠れ家的なお気に入り空間となっています。
②. 西と北に両親と長男の寝室が2つあります。
③. 客間は長女や次女が帰った時に泊まる部屋と奥様の個室美容ケアの部屋としています。このため、洗面台が設けてあります。
④. 週末の大家族のために、便所(2)、洗面(3)、浴室(シャワー2)となっています。
⑤. 大家族に対応するため造作食器棚内に引出カウンター2箇所と既製のオープンキッチンの広間側に展開できるカウンター3箇所を用意して料理の配膳や子どもたちがお手伝いできるように工夫しています。
⑥. 厨房横の勝手口には近接してゴミ置き場と屋根付き物干しスペースがあります。一日に三回 洗濯機を回されるので、洗面ユーティリティから直線移動できる場所で作業性と利便性を考えています。
⑦. 広間のデッキには屋根を架けて、セカンドリビングとなるようにしています。
パティオは週末によくおこなわれるBBQ用のスペースです。
⑧.玄関脇のシューズインクロークは週末14人の大家族用の収納量を確保しています。シューズインクロークには換気扇もありますが、大家族のために入口前にはエアカーテンを用意して玄関ホールへの臭いの対策をしています。
⑨.3箇所に設けられたトップライトは暗がりを無くし自然光を取り込むためですが、熱負荷を軽減するために天井部に多重中空構造ポリカーボネート板・タフネスを設置して、トップライトと天井との間に空気層を創り出しています。
建物性能を向上させる
既存ガレージの状況は
鉄骨のガレージに木造が910㎜掛かる形で載っており、
構造事務所に相談すると、鉄骨の補強方法は決まっているので、解体しないと無理との見解でしたが、予算上成り立たないので、現在の構造の中にもう一つの構造フレームを造って、それが支えるようにできないかという提案をして、それならやりようがある、ということで成立。既存鉄骨は、錆を落とし塗装。新たな鉄骨は、インナーフレーム(新たに鉄骨骨組みを挿入)で支えると同時に、鉄骨柱から腕木を出し側面の擁壁も補強しつつ棚として活用している。また既存鉄骨と新設鉄骨の接点は防振ゴムを介して調整している。
鉄骨工事:新たな下支え鉄骨 |
![]() 鉄骨工事:鉄骨柱縦入れ確認 |
![]() 鉄骨工事:インナーフレーム |
![]() 鉄骨柱から腕木を出し擁壁も補強し棚受け材としても活用 |
性能向上【基礎補強】
鉄骨造のガレージの上、デッキプレートという鋼板材の上に、打っているべきコンクリートが無い状態。そこに木造のろうそく基礎が90cm載っている。
木造部は、ベタ基礎で補強すればよいのですが、この90cm足をかけている部分は他と同じというわけにはいきません。そこで、地盤に載っているベタ基礎から、キャンティレバー(片持ち出し)で鉄筋を配筋して、既存基礎の内側に立ち上げ、建物の重量が既存基礎に伝わりそのまま直下の鉄骨に架かる重量を、持ち出しのベタ基礎の版で負担して、鉄骨に架かる荷重を軽減するという基礎補強をおこなっています。
![]() 基礎工事:ガレージ上部の配筋 |
![]() 基礎工事:地盤から支える部分を多くする |
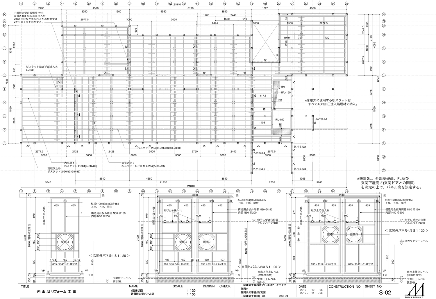
性能向上【 耐力壁に使用した国産杉枠組材と床根太材 】
信州材国産材2×4材枠材開発の補助事業に参加しており、杉材の物件がなかったので提案し採用され使用しています。業務報告会を一般向けにまとめるまでが事業。この事業により杉枠組材は無償供与となっています。
壁のスタッドとなる杉の縦振動的ヤング係数平均は7.12KN/m㎡。5KN/m㎡以下の材は二枚合わせのダブルスタッドとして、W900mm×H2750mmで土台から桁までを構造用合板厚9で縫い込む壁倍率2.5の壁パネルによる補強、床根太材には同じく杉材の加圧注入処理材を活用しました。
また、私の設計でお願いするパネル工場が現場から15分の所にあったため、パネル化と搬入に最適でした。工場でのパネル製作は2日間、現場でのパネル設置は2日間で、延べ52枚のパネルによる構造補強をおこない、大幅な工期が短縮できてコストダウンにつながりました。
![]() 信州材(杉)をパネル工場でパネル化 |
![]() 信州材杉パネル(壁倍率2.5倍)釘打ちのため周囲の構造用合板を余長 |
![]() 敷地裏の駐車場よりクレーンでパネル搬入 |
![]() パネル搬入の様子 |
![]() 柱新設の様子 @910 |
![]() 壁面:信州材杉パネル施工 |
![]() 柱、梁の新設 |
![]() 小屋:補強の様子 |
この番組の放映は、2011年3月20日・・・東日本大震災後の放送でした。完成して入居後に、東日本大震災がおこりその直後、富士宮市でも震度5強の地震が襲いました。私も直後に電話を入れましたが、建物は、「もの一つ落ちないでまったく問題ありません」とのお話しで、ホッとした経緯があります。もしも、リフォームをしていなければ間違いなく傾くほどの大きなダメージがあったと思いますが、本当にギリギリ間に合って良かったと思いました。
性能向上【断熱性能】
寒くかった建物の断熱性能を向上させる
![]() ガレージのバイク置場天井:セルロースファイバー吹付 |
![]() 内部床:スタイロフォーム敷込 |
小屋裏:セルロースファイバー吹込 |
![]() 天井・壁:セルロースファイバー吹込 |
ソーラーウォーマー
勉強コーナーの窓下に設置されたソーラーウォーマー(デンマーク製の補助暖房装置)は、太陽光が当ると内部のソーラーパネルが電気を発生し、その電力で換気扇を作動させます。パネル内で温められた空気を換気扇で室内に送り込む電気もいらない温風暖房機。勉強コーナーは、広間の一画にあり、エアコンが効きにくい場所ですので、補助暖房として採用。壁に100Φの穴をあけるだけでリフォームにも向いています。その温風を3つの勉強コーナーに導くため、扉に通風用の丸メッシュを取り付け、各引戸を閉めた状態でも温風が流れるように工夫しています。
快適に 楽しく暮らす工夫
勉強・就寝スペース
娘三人のための子供室を個室化するのではなく「勉強コーナー」と「寝るコーナー」に分けて、広間に付属させています。既存の住まいでも、北側の6畳個室二つを寝室部屋と勉強部屋とに分けて一緒の空間だったため、個室ではなく三姉妹の関係を損なわないような部屋が欲しいという要望がありました。
勉強コーナーは、可動式で2.5畳のスペースを大広間にすると、空手の練習をするためのスペースとなります。寝るコーナーの上には、小屋裏空間があります。
また寝るコーナーの両側には、ひかりかべというFRPグレーチングと専用金物で壁倍率2.5倍となる耐力壁を三箇所に設けて壁で区切られない工夫をしています。三姉妹が飾り付けを楽しむ壁です。
![]() 3 組6つの箱の家具イメージ(勉強コーナー・寝るコーナー) ©Copyright Atelier M Architects |
| 勉強コーナー | 箱部をスライドさせ、空手の練習スペースに |
ベンチ収納部:丸窓から広間の様子を眺めたり読書をしたり |
机部:製作した椅子の下からも、引き出して使う収納があります |
| 寝るコーナー | 上ベッド:ベッド下にクロゼットそれぞれロールスクリーンで区切れるようにしています |
少し年の離れたお姉さん単独のベッドとクロゼット |
ハシゴで上部の小屋裏空間へ上がれます |

リフォーム中に産まれた赤ちゃんのベビーベット
簡単に組み立てられるように、上下をそれぞれ 2枚1組みの4枚と、底板1枚を組み上げるだけ。ダボ栓とファスナーで、組み上げれば頑丈になる単純なものに。また、各部の角を丸く落として、安全に。上下はそれぞれ分割式。ベッドの後は、伝え歩きようのゲージとしても活用できます。さらに、片方は子犬のゲージにも転用できるという裏技も・・・。少しでも長く愛用される思いを込めた折り畳みベッドです。
南庭のツリーデッキ
南庭に三本あったマキの木を利用して、見晴らしデッキと子どものアス
敷地の南と西と北に、庭としての外部がありましたが、

左:アスレチック場は安価に手に入るものでご両親と一緒に作りましたがこれが子供には大好評でした。 右上:ツリーデッキ挟込
もともと使い込まれた立派なバーベキュー台がありましたが、さらにパワーアップ。キャスターを付けて動かしやすくし、下には網棚を追加と定番作業。その周囲には折り畳み式サイドカウンターを追加しバーベキュー台をより使いやすく。さらには、焼きそば用の鉄板蓋、これをスライドできるようにして、下部にある焼き肉用の網と同時使用が可能なように。つまり、焼きそばを焼いてスライド、焼き肉を焼ながら、焼きそばもと、大食漢の子どもたちへ対応させています。
写真 Before・After
■
After
南仏風の外観が好みの住まい手さん。波のような手摺と白い外壁はスイス漆喰を使用。
■
■
After
■
最後に
大改造!!劇的ビフォーアフターでは、施工者にかかる負荷が大きくなります。このため、私が請け負う決断をするためには、施工者の決断も必須となります。今回は、平和建設さんと富士で大型住宅の施工をしていただいている同時期でしたので、まずは社長に現地をみて判断して欲しいと依頼しました。私は番組から現場DVDをいただき、そこからおおよその図面を作成、現場へ行く時は現場検証の撮影とその後、再度既存調査というプロセスのため、事前に現場を見ることができないという特殊な状況があります。社長が現場を見て、『松永さんやりましょう!』と言われたのですが、やはり赤字になることもありますし、やるとなれば短期間でトコトン図面も現場もおこなわなければなりません。その点、同時期に大型住宅が並行しており、現場も近く同じ監督が担当してもらえるというタイミングがあるから成立した仕事でした。
信州材タテ枠材の試行を始めとして、協賛にある多くの企業の方々から大なり小なりのご協力を得ながら、半年間の工期でおこなうことができました。もちろん、普段から私の住まいの素材として使用している材料なのでその辺りの関係性も大いにあります。ここに、あらためまして厚く御礼申し上げます。
また、ご家族のお母様と私の誕生日が奇しくも同日で、完成後にサプライズとして子どもたちから手作りTシャツのプレゼントと寝るコーナーに設置した白板にもたくさんのコメントをいただきました。大変な仕事でしたが、ご家族の皆さんが生活を楽しまれる姿にこちらも元気をいただきました。そのお母様は画を描くこともご趣味で、リフォーム期間中にご家族の姿を描かれていたので、以前使っていたテーブル材を額にして、玄関に飾っています。これは番組側からいただいたアイディアでしたが、リフォーム後半にそのことを知らされて、そういうことまで考えたのかと感心させられました。 ( 松永 務 )
●●子ども達からの手作りTシャツとプレゼント / 「寝るコーナー」に設置した白板 こどもたちの絵 / お母様の描かれた絵 ご家族の姿
No.0154 「 6畳に孫7人が寝る家 」から、14人の快適な家に。松永 務
Copyright© Atelier M Architects , Society of Architectural Pathologists Japan
LINK
・ 一級建築士事務所アトリエMアーキテクツ https://atelier-m-architects.seesaa.net
・2011年3月20日OA.『6畳に孫7人が寝る家』 https://www.asahi.co.jp/beforeafter/old/list/d00062pray.html
・2012年7月15日OA.『6畳に孫7人が寝る家』その後・・・ https://www.asahi.co.jp/beforeafter/old/after/d00096crna1.html








































































