住宅医の改修事例№107~中古住宅の性能向上フルリノベーション「大浜のリノベ」
報告者:神谷義彦(住宅医/一級建築士事務所 神谷スタジオ/愛知県)
愛知県碧南市南部、愛知県のほぼ中央を流れ三河地方を東西に分ける矢作川の河口に位置する大浜地区。江戸時代には江戸廻船の基地である大浜湊があり海運で栄えた地域になります。
住まい手自身が古民家の改修にかかわる仕事をされていた関係で、ご自身の家も新築より中古物件のリノベの方が楽しそうだなと考えられていたそうで、たまたまご近所を散歩中にこの家が売りに出されているのを発見し、内見をした結果、柱や梁などの構造がしっかりしている印象をうけたため(勢いで)購入に至ったそうです。
概要
所在地■:愛知県碧南市
主用途■:一戸建ての住宅(中古住宅を購入)
築年数■:築34年(S61年築)
規 模■:1階床面積 89.84㎡(リノベ前)→97.30㎡(リノベ後)
■■■■■2階床面積 26.50㎡(リノベ前)→26.50㎡(リノベ後)
■■■■■延べ床面積 116.34㎡(リノベ前)→123.80㎡(リノベ後)
詳細調査:2018.10.12
工 期■:2020.2.1~2020.9.27
設計・監理:神谷建築スタジオ
施 工■:Oz works株式会社
調査協力:一般社団法人インク
家 具■:oguma
造 園■:小笠原庭園
木 材■:野地木材工業株式会社
既存
詳細調査はいつも岐阜県美濃市にある「一般社団法人インク」に協力をしてもらっています。
調査をした結果は経年劣化による外壁等のクラック、シミはあったものの構造的には大きな不具合箇所はなさそうな感じでした。
ただ下屋の取り付く2階壁部分には土壁に雨染みらしきものが確認できたため、解体時に再度確認をして現況の瓦屋根を葺き替えるのかどうかの判断をすることで住まい手に了解を得ました。
既存平面図



既存レーダーチャート

既存写真
・耐震性能への対応
リノベ案を検討するにあたり、コスト的な意味合いでも既存の瓦屋根をどう扱うかが大きなポイントになりました。わかりやすく瓦の割れ、ズレ、雨漏り等の不具合があれば(桟瓦への)葺き替えや板金屋根への更新を決断できますが、大きな不具合がない場合コストバランスを考えると屋根に手を付けるのは躊躇します。既存の耐震診断をした結果、評点は「0.31」と大変低いものになりました。耐震性能を上げるためにも屋根の軽量化はとても重要なファクターです。今回は住まい手に屋根を軽量なものに葺き替えた場合(評点1.45)と葺き替えない場合(評点1.02)の2パターンでリノベ後の評点を提示し、コストと照らし合わせて検討することとしました。結果、屋根面は葺き替えず必要箇所のみの補修となりました。
・断熱性能への対応
リノベ前の断熱性能は築年数相当であり、無断熱の状態(UA値:2.91W/㎡・K)でした。今回リノベをするにあたり耐震補強も含めて躯体をいじることが前提となるので、断熱性能を現状の基準レベルより上、うちが新築で行っているHEAT20のG2レベルの断熱性能を持たせることを目標として断熱計画を行っています。
新築と違いリノベの場合は下地の不陸等を含め、すでに色々なものが施工されている状態での断熱処理となります。コストを考えればグラスウールが一番ですが施工時の欠損、気密の確保が新築以上に難しい工事となります。今回施工が比較的容易な屋根、天井、床面は高性能グラスウール16kgを、外壁は発泡ウレタン吹付けで対応しています。またもっとも熱損失の大きい開口部に関しては既存のアルミサッシ+シングルガラスを樹脂複合サッシ+複層LowEガラスへ総入れ替えすることとしました。
工事写真(基礎)
![]() |
![]() |
![]() |
![]() |
基礎補強に関しては構造設計事務所より既存基礎+新規ベタ基礎抱合せでの対応を提案されましたが、コストバランスを考え既存基礎+新規布基礎抱合せでの補強(+防湿コンクリート)を採用しています。
リノベ後の耐力壁の配置を考慮し、新規基礎に力が伝わるように必要箇所には新たに軸組を組んでいます。
工事写真(耐震補強)
![]() |
![]() |
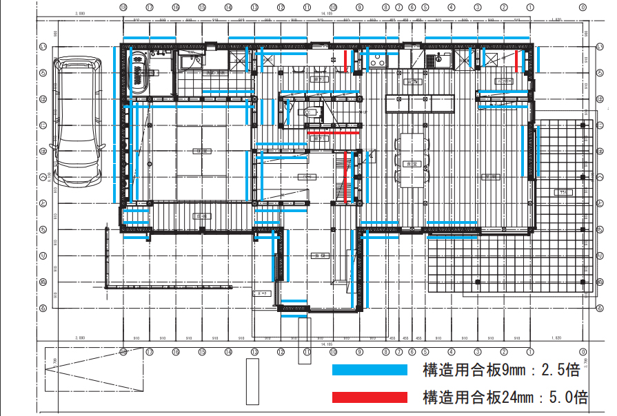
耐力壁の構成に関しては、新築時と同様に面材(構造用合板)での耐力壁を構成しています。
2階の耐力壁については、下屋屋根が取り付くため外部からの施工は耐力面の一体化が困難なため室内側から施工をし、床梁まで面材を張り上げています。
リノベ耐力壁図面


水平構面に関しても面材での構成を基本としています。今回屋根を葺き替えないこととなったため、屋根面の構面は内側より施工することとなりました。下屋部分は下地を組むことが容易だったため面材で対応し、主屋根部分は小屋組等があり、面材の施工が困難だったため鋼製ブレースでの構成としています。
既存で火打梁が施工されていましたが、火打梁の床倍率は低いのと、有効性が不透明だったため全て撤去しています。
工事写真(屋根補修)
![]() |
![]() |
![]() |
![]() |
調査時に懸案事項だった下屋屋根が取り付く2階壁の雨染み問題ですが、2階の壁を解体した結果屋根のルーフィングの立ち上げが不十分(ほぼない)状態でした。状況を住まい手に報告し壁際ののし瓦と水上の瓦数枚を剥がし、新たに施工する壁の防水シートを屋根面に被せた後瓦を復旧する処置を了承していただきました。
工事写真(断熱補修)
![]() |
![]() |
![]() |
![]() |
![]() |
![]() |
断熱性能の確保に関しては先述の通り、気密性能の確保の観点も含めて2種類の断熱材を採用しています。床面には高性能グラスウール16kg-100mm、外壁面には現場発泡ウレタン吹付け-100mm、屋根面には高性能グラスウール16kg-100mm+100mmとなっています(一部増築部分はフェノバボード90mm)。
木造に対してのウレタン吹付けは色々と議論があることも承知してますが、リノベーションの場合新築以上に断熱材の充填が難しい部分もあり、性能確保のためには吹付けは大変有利です。セルロースファイバーの充填という選択肢とともにコスト面も含めて検討していきたいところです。
renovation
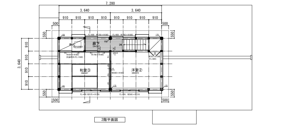
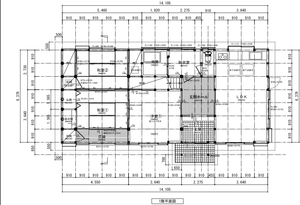
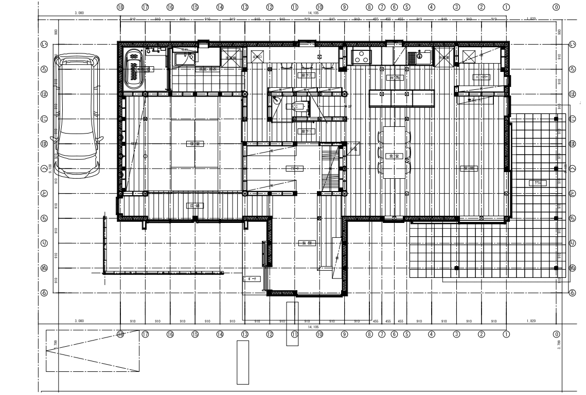
リノベ平面図



遅ればせながらリノベ後の平面図です。
リノベ前の平面はよくある田舎づくり。玄関が内部空間を分断していてとても使いにくい間取りになっていました。そこでリノベ案の計画はまず玄関の問題を処理することから始めました。生活空間(LDK)を一室空間にするためにリノベ前は大きな面積を占めていた玄関のボリュームを増築することで外に出し、新たに設けた土間でつながるクロークで生活空間とプライベート空間との距離を取っています。また玄関を外に出したことにより、道路側(図面左側)から敷地奥への視線に対しての物理的な壁となり生活空間のプライバシーを守っています。これによってこちらも増築をした軒下空間のテラスとともに庭と一体となった開放的な生活を可能としています。この軒下空間は我が家を見学された住まい手たっての希望だったので実現できてよかったです。
階段の位置は2階との兼ね合いから移動が難しかったのでそのボリュームを利用してトイレを階段下に配置し、階段を中心としてグルグル回れる動線を確保しました。この動線以外にも複数の動線のサーキュレーションを確保しています。建物の気密性能が確保できればトイレや水廻りに換気用の窓は必要なくなるので空間構成の自由度が増します。
2階に関しては将来的な個室化への対応を考慮しつつ、最低限の整備にとどめています。

リノベ後レーダーチャート
リノベ後の性能評価です。
耐震性能は評点0.31→1.02へ
断熱性能はUA値2.91W/㎡・K → UA値0.41W/㎡・K(HEAT20 G2レベル:0.46W/㎡・K)
へと大きく改善にしています。「バリアフリー性」と「火災時の安全性」以外は長期優良住宅認定レベルの性能を確保できています。「バリアフリー性に関しては玄関アプローチや廊下巾で減点、「火災時の安全性」に関しては消火器を設置していないので減点・・・といった感じです。
耐震性能をもう少し上げたかったというのが本音ではありますが、既存の土葺き瓦屋根をそのまま残しているのでこれが限界かもしれません。
竣工
外観は板金張りになった以外は大きく変わっていませんが、増築された玄関、テラスが変化をもたらしています。


玄関によって道路と距離が取れているので奥の庭が落ち着いた雰囲気になり、これから住まい手の手によって進められる庭づくりが楽しみになりました。
居間に面したテラスも深い軒下空間を提供してくれているので住まい手が望んでいた「庭と一体となった生活」がこれから展開されていくのだと思います。
増築された玄関部分です。

広い土間をもった玄関は住まい手の生活を深い懐で受け入れてくれます。また土間続きとなっている2坪のクロークも収納量一杯。実はこのクロークは住まい手の趣味であるドラム演奏のためのスペースでもありまして、壁と天井には防音処理のためセルロースファイバーが充填されており、建具もグラウウールが充填された建具が2枚ずつ用意されています。
庭に面したリビングダイニング。



当初の計画ではコストのこともあり、他の空間と同様のフラットな天井の予定でした。解体時に現しになった小屋組をみて住まい手からなんとか現しにできないと相談を受け、現場で小屋組現しに変更した経緯があります。結果空間に変化が出来てよりのびやかな空間になりました。既存の小屋組と杉板の取り合いの納めは大変だったかと思いますが、大工さんが頑張ってくれました。
オリジナルのキッチンです。


新築時と同様にいつも大阪の家具工房ogumaさんと共働しています。新築以上に寸法の融通が利かないリノベーションだからこそ、可能な限り現場に合わせて製作家具で納めていきます。
台所横の書斎スペースです。

このカウンターは住まい手が所有していたタモのテーブルの天板を流用したものです。足らない部分はそれに合わせてogumaに用意してもらいました。
このご時世、ご夫婦の在宅ワークにフル稼働となるスペースです。またお子さんが小さいうちはリビングスタディとともに有用な場所となるかと思います。
もともと座敷だったところを寝室としています。

広縁に面した雪見障子はリノベ前のものを調整して流用しています。鴨居を吊っている吊束は玄関で装飾材として使われていた絞り丸太をカットして使っています。伝統的な古民家ではないため流用できる材は少ないですが、少しでもリノベ前の素材を流用できたらと思っています。
寝室前広縁です。

リノベ前は暗くジメジメして黴臭かった水廻りも広くさわやかな空間になりました。

他の空間で使用している造作材はほとんど杉ですが、水廻りだけは無地の桧を使用しています。桧のほんのり薄ピンクの肌が清潔さを求められる水廻りにぴったりです。
2階キッズスペースです。

将来的な個室化を想定してシンメトリーな空間として整えてあります。
さいごに
持ち家志向の高い愛知県ではまだまだ既存住宅のフルリノベーションは極少数派かと思います。その影響で残しておきたいと思えるような立派な家がどんどん解体され、土地も細かく細分化され次の世代へ引き継ぐことが困難なミニ開発、建売住宅が乱立していっています。
土地価格の上昇によって既存の区割りのまま引き継いでいくことが困難になっているということもあるかと思いますが、なんとか少しでも残せる建物は残していけるような状況になればなと日々感じています。
またこの「大浜のリノベ」の住まい手からも今回のようなフルリノベーションはコスト的にもハードルが高い部分があるのが正直なところなので、耐震、断熱と目的にそってメニューを選べるリノベーションの方法、コストがもう少しわかりやすく提示されるような体制ができればリノベーションがもっと広がっていくのでは・・・とご意見をいただいています。
実際の所はそれに加えてリノベーションに対する住宅ローンの間口の拡大や適切なリノベーションをした住宅の資産価値の見直し等の処置がもっと進まないと難しい部分はあるのかと思いますが、住宅医としてコツコツと地道に住宅ストックの質の向上に貢献できればなと思っております。



































